查看完整案例

收藏

下载

翻译
Hotel "UCU inn"
The Ukrainian Catholic University
Architects: Mariia Pavlyshak-Zadorozhna, Galyna Strypa
Location: Lviv, Ukraine
Project Area: 85 sq. mProject Year: 2020-2021
Photo credits: Lubov Chornenka
The Ukrainian Catholic University (UCU) is based in Lviv, Ukraine. UCU is one of the biggest private universities in Ukraine and also the first Catholic university opened on the territory of the former Soviet Union. In recent years entrants of UCU have had the highest evaluation scores in the country.
Buildings of the UCU
UCU’s buildings are located in three areas of Lviv. The Architecture of the university includes not only buildings but also the space that they create together. The purpose of the new campus is to stimulate trust and communication.
On the territory of the campus, there is currently a Training Center with a library, refectory, temple, and college. The Collegium consists of the old (2012) and new (2021) buildings connected together to form a courtyard.
The interiors which we designed are located in the new building of the College.
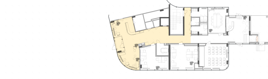
Functionally, there are the entrance hall of the hotel, the hall of the recruiting department with a conference hall, auditorium for presentations and office rooms.
All rooms are located next to each other in one block and are closely connected spatially and by common communications (stairs, elevator, bathrooms). Thus the main task was to keep the common style within all spaces but emphasize different functions and atmosphere as the Collegium is an integral whole.
Tasks:
- to create cozy and casual elegance;
- organise the space — as the space is angular and many walls converge here at different angles, and the outer window is radial;
- UCU is developing rapidly, so the space should be flexible, because over time the function may change;
- the corridor that leads to the hotel hall should be clearly separated, because it belongs to the office area, but should stay open;
- organise the space. There are a lot of doors in the hall — they divide space and make it difficult to navigate.
Solution:
- warm materials of soft colors with expressive textures were used in the decoration — panels with natural veneer, gray felt on the wall and furniture, and massive burgundy curtains. To add texture vertical segments to the wood panels were created and the felt was folded;
- the main blocks were highlighted with the colors and materials: reception and the way to the elevator — veneered panels, waiting area - felt, ceiling and floor — dark gray, the rest of the space — white walls;
- large areas without shredding and detailing, no additional partitions, all furniture except the reception desk is mobile;
- the lowering of the ceiling, the contour of which is repeated on the floor (along this border the shade of the tile changes) made it possible to clearly divide the spaces;
- doors to utility rooms are made of the same material and color as the veneered wall.
客服
消息
收藏
下载
最近






















