查看完整案例

收藏

下载

翻译
GUT Hotel with conference complex
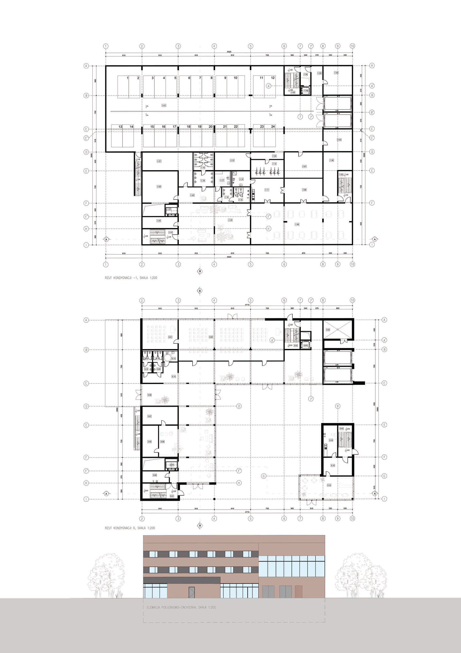
Tematem pracy jest projekt architektoniczno-budowlany hotelu konferencyjnego zlokalizowanego przy ul. Gen.J.Fiszera 2 w Gdańsku w dzielnicy Wrzeszcz, który będzie odpowiadał na potrzeby nieustannie rozrastającego i rozwijającego się kampusu Politechniki Gdańskiej. Głównym celem projektu jest stworzenie hotelu o funkcji konferencyjnej, który będzie obsługiwał znajdujący się w pobliżu kampus Politechniki Gdańskiej oraz pobliskie uczelnie. Budynek łączy w sobie funkcje mieszkalną oraz usługową, z której mogą korzystać zarówno goście Politechniki jak i studenci. Bryła budynku łączy ze sobą klasykę i nowoczesność, a jednocześnie nawiązuje do architektury kampusu. W obiekcie znajdą się duże sale konferencyjne, ale również zaplecze do kameralnych spotkań biznesowych, ogród zimowy biegnący przez dwie kondygnacje budynku, oraz duża sala bankietowa zlokalizowana na kondygnacji podziemnej.
Year: 2020
Location: Gdańsk
Design: Aleksandra Ciesielska
客服
消息
收藏
下载
最近









