查看完整案例


收藏

下载

翻译
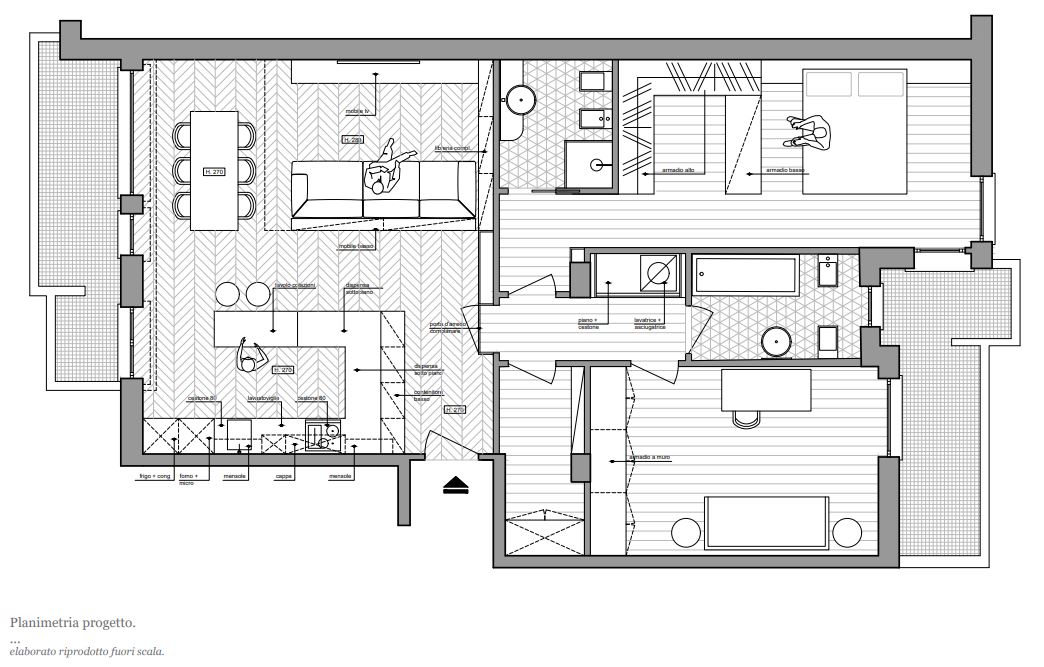
Analizzando il contesto storico e morfologico, la planimetria è tipica degli anni '70. Distribuzione degli spazi, materiali e finiture sono semplici e monotematiche conferendo al luogo che fu un’aria compassata e priva di emozione.
La nostra idea di progetto di interior design è quella di rivisitare in chiave contemporanea l’appartamento datato, con l’uso di materiali e rivestimenti attuali, riproponendo scelte di arredo e colori dell’epoca (ridisegnati), con un occhio rivolto alle esigenze e alle tecnologie di
oggi.
L’ipotesi progettuale prevede un lay-out che ottimizza dimensionalmente la zona giorno, trasformandola in un open space vista lago e ricco di luce, un luogo da vivere in piena armonia e assoluta libertà. La zona notte ricava spazi intimi e a misura per il cliente. La grande cucina con penisola delinea il perimetro della zona lavoro e di preparazione affacciandosi sul tavolo da pranzo vista lago e sul living composto da un divano basso per meglio interagire con gli ospiti e una ampia libreria che diventa un “portale” disegnato nella forma e nel colore tipico degli anni ‘70 lecchesi.
L’uso del legno nelle sua essenza e nella colorazione grigio-verde la fa da padrone e diventa il filo conduttore del progetto. Boisérie in legno, rivestimenti materici nei toni pastello, giochi tridimensionali in legno laccato, tessuti e complementi di arredo dal design rigoroso conferiscono un’immagine contemporanea per il nuovo appartamento nei pressi del lago
lecchese.
Year 2019
Work started in 2018
Work finished in 2019
Client Privato
Contractor Impresa Edile Giordano Rosario
Cost 150.000€
Status Completed works
Type Apartments / Interior Design / Custom Furniture
客服
消息
收藏
下载
最近













