查看完整案例

收藏

下载

翻译
CN04/ HOUSE DESIGN
Design by: 31 Grados Arquitectura
Visualized by: 31 Degrees Rendering
Location: Sonora, México
Year: 2024
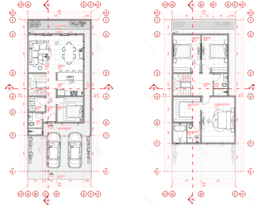
This 200m² two-story home is designed to maximize comfort and functionality on a compact 152m² lot. It features four rooms, including a master suite with a full bathroom, two additional bedrooms, and a versatile fourth room that can be used as a bedroom or a study.
The home also includes two additional bathrooms for convenience. The open-concept living, dining, and kitchen area creates a spacious and inviting atmosphere, while large windows fill the home with natural light. Its efficient vertical design makes it an excellent choice for families seeking a stylish and budget-friendly home.
客服
消息
收藏
下载
最近











