查看完整案例

收藏

下载

翻译
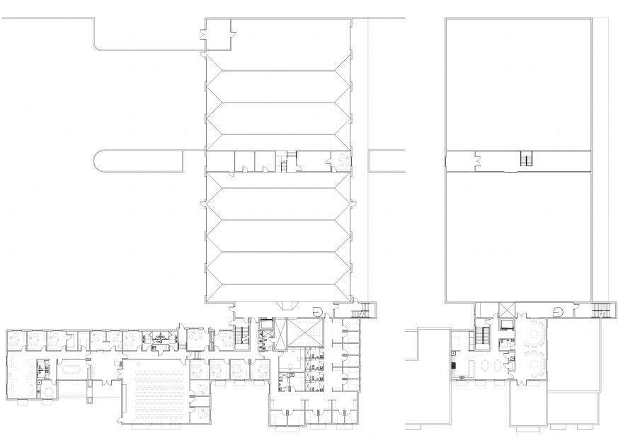
The city of Vineland came to MMPF Architects to design a brand new fire headquarters for their full-time fire department. The 36,000 sf building is to include a living area with enough bunks for up to twelve firefighters at a time, an administrative and training component, a new office area for the code and code enforcement department and a large industrial garage with enough space for eight full size fire or ladder trucks. The training area will also be equipped to transition to an full functioning Emergency Operations Center in the case of a major natural disaster.
In designing the station, it became apparent that efficiency would become a major theme through the project The size constraints of the site meant that space needed to be utilized extremely efficiently. A major aspect of design the plan became making sure that the firefighters had easy access to the garage from everywhere else in the building. Workingwith the city’s engineer, we were able to orient the building and site components to make use of the existing site conditions and utility constraints.
客服
消息
收藏
下载
最近








