查看完整案例

收藏

下载

翻译
House T&E
en.
• House T&E •
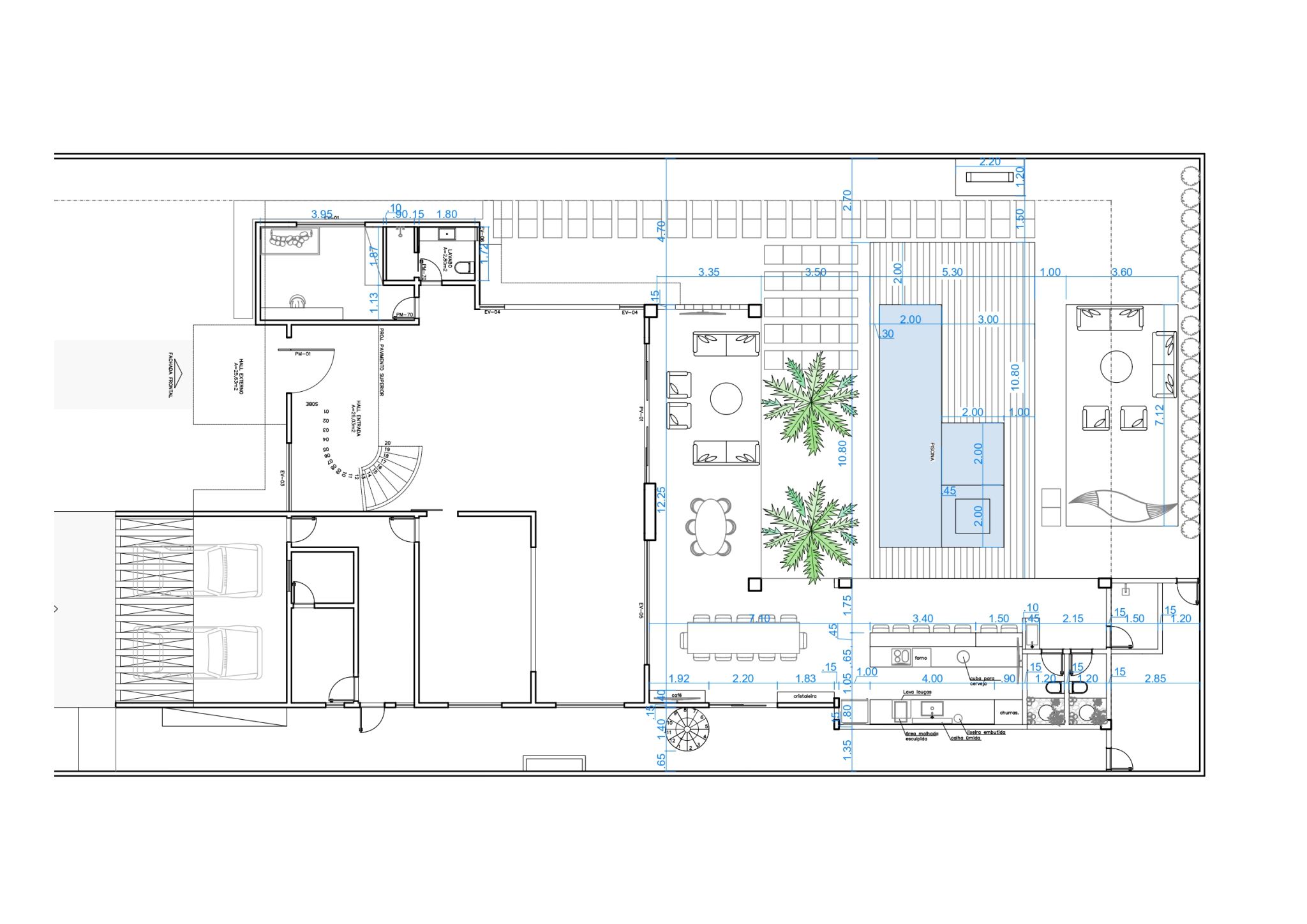
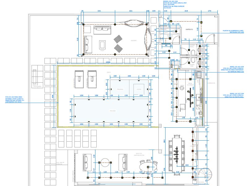
This project focuses on the outdoor area of this single-family residence. The clients highly value gathering with friends and family and wanted a spacious leisure area with a barbecue, a fully equipped kitchen, and a pool area.
Below, I showcase some images of this project, a video of the presentation, and a glimpse of the executive project.
pt.
• Casa T&E •
Projeto da área externa desssa residencial unifamiliar. Esses clientes prezam muito por reunir amigos e familiares e gostariam de uma área de lazer grande com churrasqueira, uma cozinha equipada e área de piscina.
A seguir mostro algumas imagens desse projeto, um vdeo de como foi apresentado e um pouquinho do projeto executivo.
客服
消息
收藏
下载
最近








