查看完整案例

收藏

下载

翻译
Dino Inn
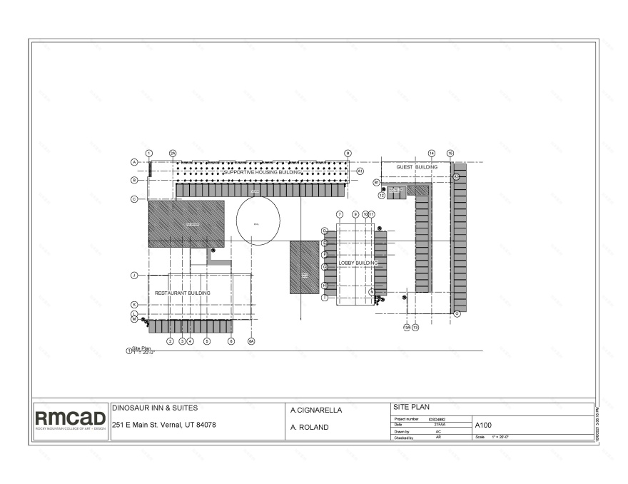
For my senior thesis, I have chosen to reimage the Dinosaur Inn and Suites in Vernal, Utah. Family-owned, with a rich community history, this inn has many layers, which is my concept. Layers refers to the history nearby of Dinosaur National Monument, the heritage of the Native Americans specifically the Ute Indian Tribe also nearby, the Vernal community, as the motel has been around since the 1960s, and lastly, the people layer as a roadside motel for passersby and an opportunity to connect and unwind.
The design intent for the rebranded Dino Inn is to be a more sustainable, getaway option for travelers. And equally important, it will serve as part supportive housing for the local Ute Indian population (less than 30 minutes away) providing access to technology and training in the hospitality industry.
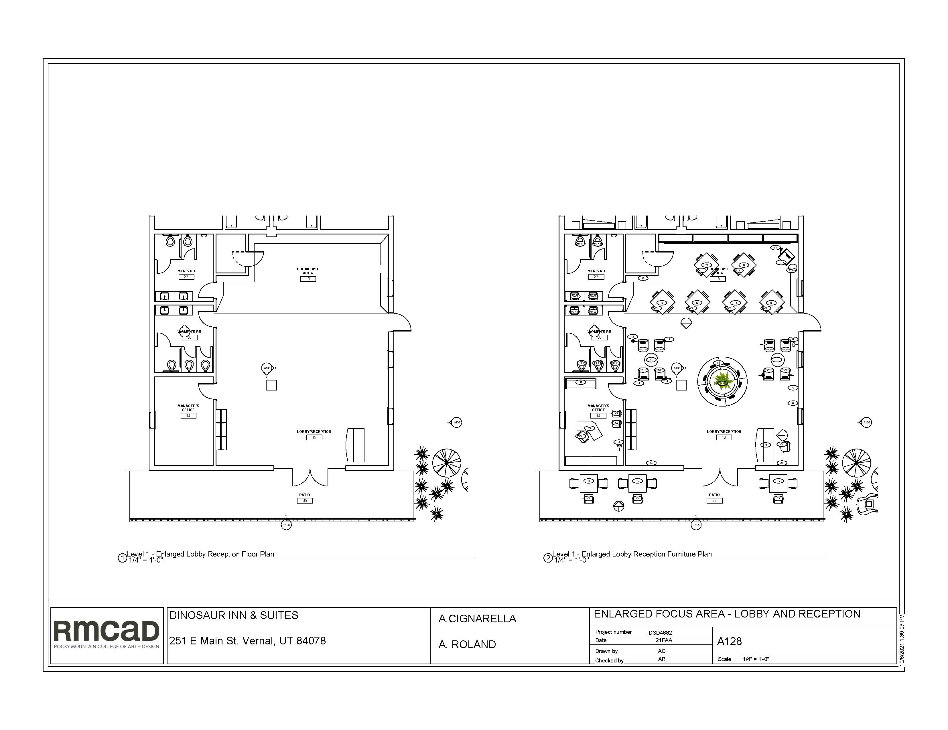
Lobby/Reception
Cafe
Antica Forma Restaurant
Supportive Housing Building - Computer Lab
Supportive Housing Building - Efficiency Unit
Guest Room Building
Guest Room Building - King Room (Typical)
Sample of Presentation Plans
FF&E and Finish Selections
客服
消息
收藏
下载
最近




























