查看完整案例

收藏

下载

翻译
مشروع تخرج l مركز بحوث زراعية كلية الهندسة I جامعة طنطا
التقدير l امتياز 🎖️
نوع المشروع I بحثي علمي , ثقافي , سكني تحت إشراف د/ وسام مهنا
د / ولاء مهنا
تحليل الموقع العام
المسقط الافقي للدور الارضي مقياس رسم 1:1000
مبنى البحثي والتعليمي الدور الارضي مقياس 1: 500
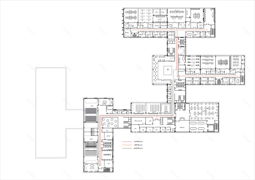
دراسة مسارات الحركة ومداخل ومخارج المبنى
مبنى البحثي والتعليمي الدور الاول مقياس 1: 500
دراسة مسارات الحركة ومداخل ومخارج المبنى
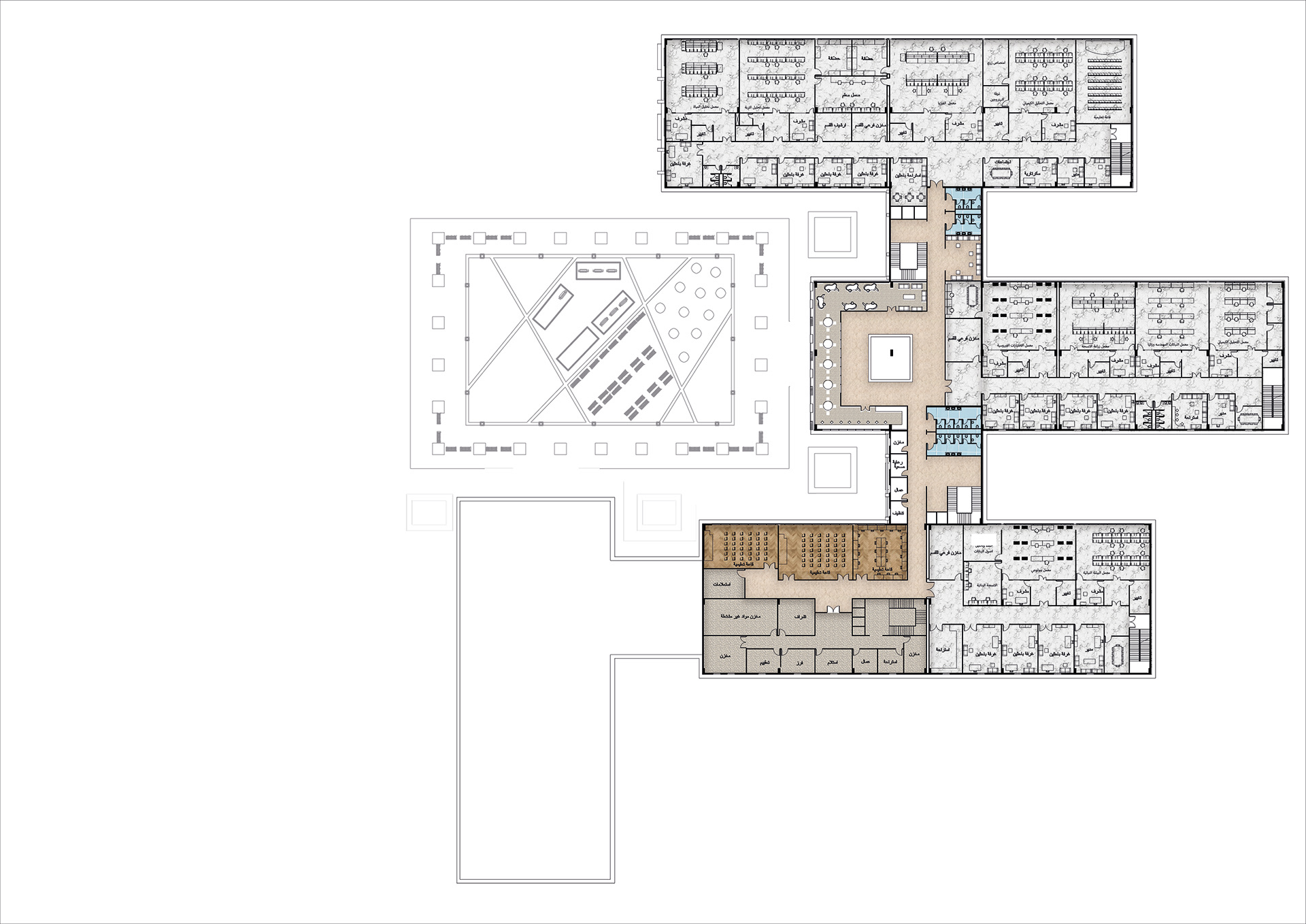
مبنى البحثي والتعليمي الدور الثاني مقياس 1: 500
الدور الارضي لمبنى خدمة المجتمع مقياس 1 ل 500
واجهة المشروع الشمالية مجمعة مقياس 1: 800
واجهة المشروع الشرقية مجمعة مقياس 1: 800
قطاع طولي مقياس 1: 800
المعالجات المستخدمة بالمشروع
THANKS FOR WATCHING
客服
消息
收藏
下载
最近





























































