查看完整案例

收藏

下载

翻译
APARTMENT | MOSCOW | 353 M2
This apartment is a godsend: the historical center of Moscow, high ceilings and a panoramic terrace. Our goal was to uncover the benefits and create a space that reveals the values of the owners' family. The plan is simple and logical: life is in full swing on the ground floor, where there is a kitchen-living room and a private area with bedrooms; the second is almost entirely given over to terraces, both glazed and open. We have combined two stories in the interior. The first is about the classic Moscow mansion that surround the project location. It is told by parquet, stucco and large art objects. The second is about a cool autumn morning. Her mood is created by the soft, smoky shades of the walls, and the copper and brass details play the role of the sun's rays breaking through the fog. The lamps - suspended above the table, chandeliers and sconces - remind us of the first ice that barely touched the water. The result is an interior that combines history and modernity, poetry and practicality. This is a story house where a thoughtful organization of space serves a comfortable, inspiring family life.
The space opens up gradually: from the hallway we enter a spacious kitchen-living room through a portal. There are two centers of attraction here - a dining table for family dinners and a sofa seating area.
Next, the corridor leads to a private part - there are two children's rooms with a bathroom, a laundry room and a master unit with two dressing rooms. And there is an elevator hidden in the corridor itself, which quickly takes you up to the terraces.
101. Hallway
102. Guest bathroom
103. Hall
104. Kitchen-living room
105. Loggia
106. Office
107. Childish
108. Childish
109. Master bedroom
110. Master dressing room
111. Master dressing room
112. Master bathroom
113. Loggia
114. Children's bathroom
115. Laundry room
116. Elevator
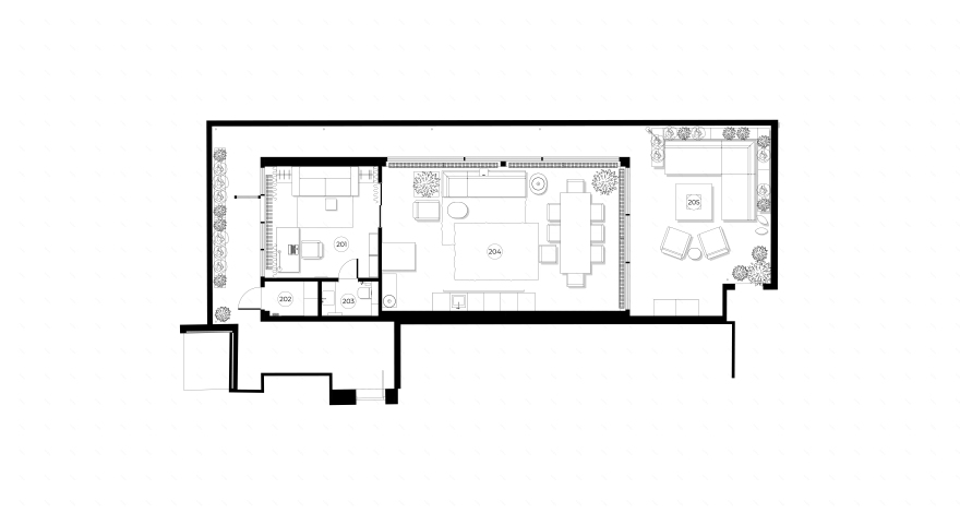
201. Office
202. Bathroom
203. Storeroom
204. Glazed terrace
205. Outdoor terrace
A special request for the project is well-thought-out storage systems. It was important for the customers that the apartment had enough dressing rooms and more. This request affected the size of the hallway and the layout of the bedroom. All cabinet furniture is designed to be not only spacious, but also to become part of the interior, create expressive volumes and not clutter up the space.
Project Team:
Anastasia StruchkovaAnna MelnikovaAlexandra Melnikova
Thanks for watching
客服
消息
收藏
下载
最近




























