查看完整案例

收藏

下载

翻译
Mikhailovskoe
Год / Year: 2024
Площадь / Total area: 126.73 м2
Местоположение / Location: Московская область / Moscow region
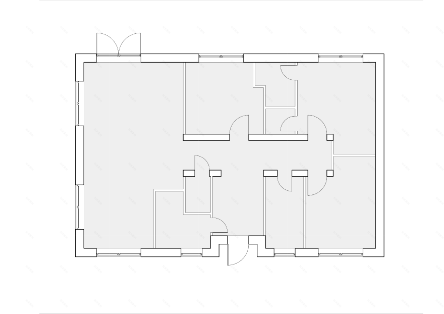
Исходная планировка | initial floor plan
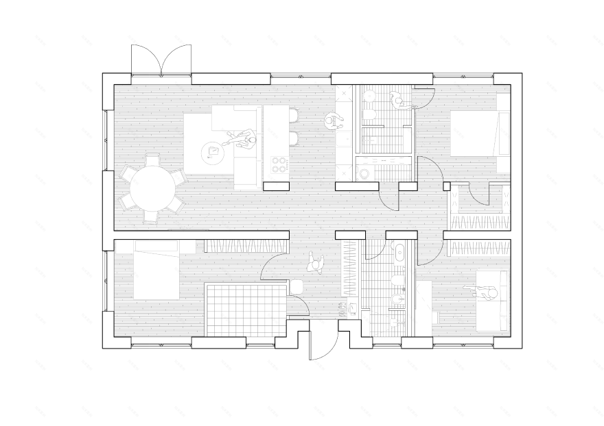
Итоговая планировка | final floor plan
#1. Коллаж. Гостиная
#2. Коллаж. Гостевая спальня
#3. Коллаж. Кабинет
#4. Коллаж. Мастер-спальня
#5. Коллаж. Мастер-санузел
#6. Коллаж. Гостевой санузел
#7. Коллаж. Прихожая
客服
消息
收藏
下载
最近


















