查看完整案例

收藏

下载

翻译
Architects:depaolidefranceschibaldan architetti
Area:80m²
Photographs:DSL Studio
Manufacturers:Artemide,Moorman,Muller van Severen,NM3,Spectrum,Thut Möbel,Thut Möbel,USM Haller
Category:Apartments
City:Milan
Country:Italy
Text description provided by the architects. Box in a Box. A refurbishing project with a dual stylistic code, conceived for an early 20th-century apartment in Milan. An apartment located on the third floor of a post-WWI bâtiment on Viale Beatrice d'Este in Milan has undergone a meticulous and unusual refurbishment by DDBA. The residence, featuring a typically bourgeois character, is distinguished by large French windows overlooking rows of poplars and the vibrantly colored façades of the residential buildings directly opposite, designed by Giordano Forti and Camillo Magni.
The project was born from a close collaboration with the clients, a creative couple seeking a Milanese pied-à-terre. Based on an analog and reflective approach—composed of conversations, exchanges of opinions, and intuitions—the lengthy concept process allowed the spirit of the intervention to be accurately defined, steering it toward highly personal solutions with a distinctive character. The renovation, begun in 2021 and completed two years later, unfolds through two opposing yet complementary architectural codes that coexist and perfectly support one another within the home.
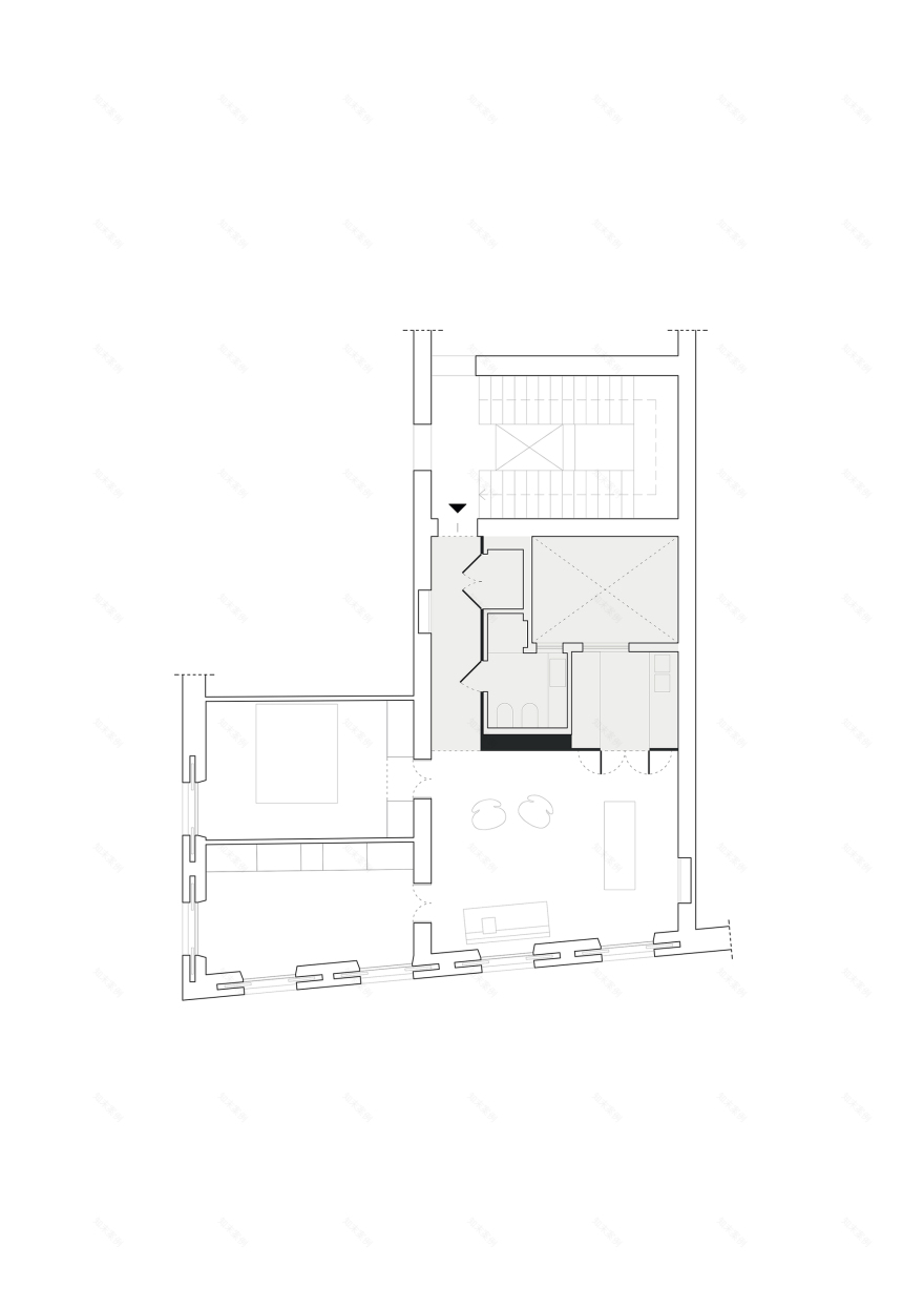
The first code celebrates the building's heritage, preserving the original partitions and enhancing the early 20th-century atmosphere in the bedrooms and living area. The second, by contrast, introduces a hyper-contemporary element: an independent functional "box" with a satin-finish metal shell, inserted in place of the old entrance, which houses the kitchen and utilities. The two styles—utilizing different materials, colors, and lighting—generate a play of counterpoints and dissonances, creating a dynamic, multifaceted environment rich in contrasts.
The apartment's approximately 80 square meters are distributed across the living area, the home studio, the master bedroom, the kitchen, and the bathroom. Entry occurs through a gallery with a dark, lowered vault, recalling the corridors of Villa Panza di Biumo and the architecture of Portaluppi. This gallery runs alongside the functional service and kitchen box, leading—with a sharp and surprising "change of scene"—to the high ceilings and luminous spaces of the living area.
In the living room, a few selected pieces of contemporary design (primarily black USM modules in various configurations) cohabit with the vintage elegance of the room, emphasized by the herringbone oak flooring and the original fixtures, which have been restored and white-lacquered. The Klein-blue sofa harmonizes with the electric blue façade of the building opposite, while the stainless steel bookshelves echo the metallic finishes of the kitchen box. The kitchen itself can choose to open its doors, connecting with the rustic dining table, or close itself off with discretion and privacy.
The small studio, designed as a transformable multitasking space, becomes an additional guest room thanks to the fitted wall behind a dark curtain, which conceals cabinetry and a Murphy bed. The master bedroom, essential in its furnishings, is enriched by a bright orange USM unit and a large canvas by artist Jaime Hayon.
Meticulous attention to detail and the customization of elements emerge in every room—even in the bathroom, where the wall coverings and terrazzo vanity were custom-made, incorporating fragments of Verde Alpi marble into the gray base as a citation of period finishes.
Project gallery
客服
消息
收藏
下载
最近




















