查看完整案例

收藏

下载

翻译
С запросом на «уютное семейное гнездышко» ко мне обратилась молодая пара.
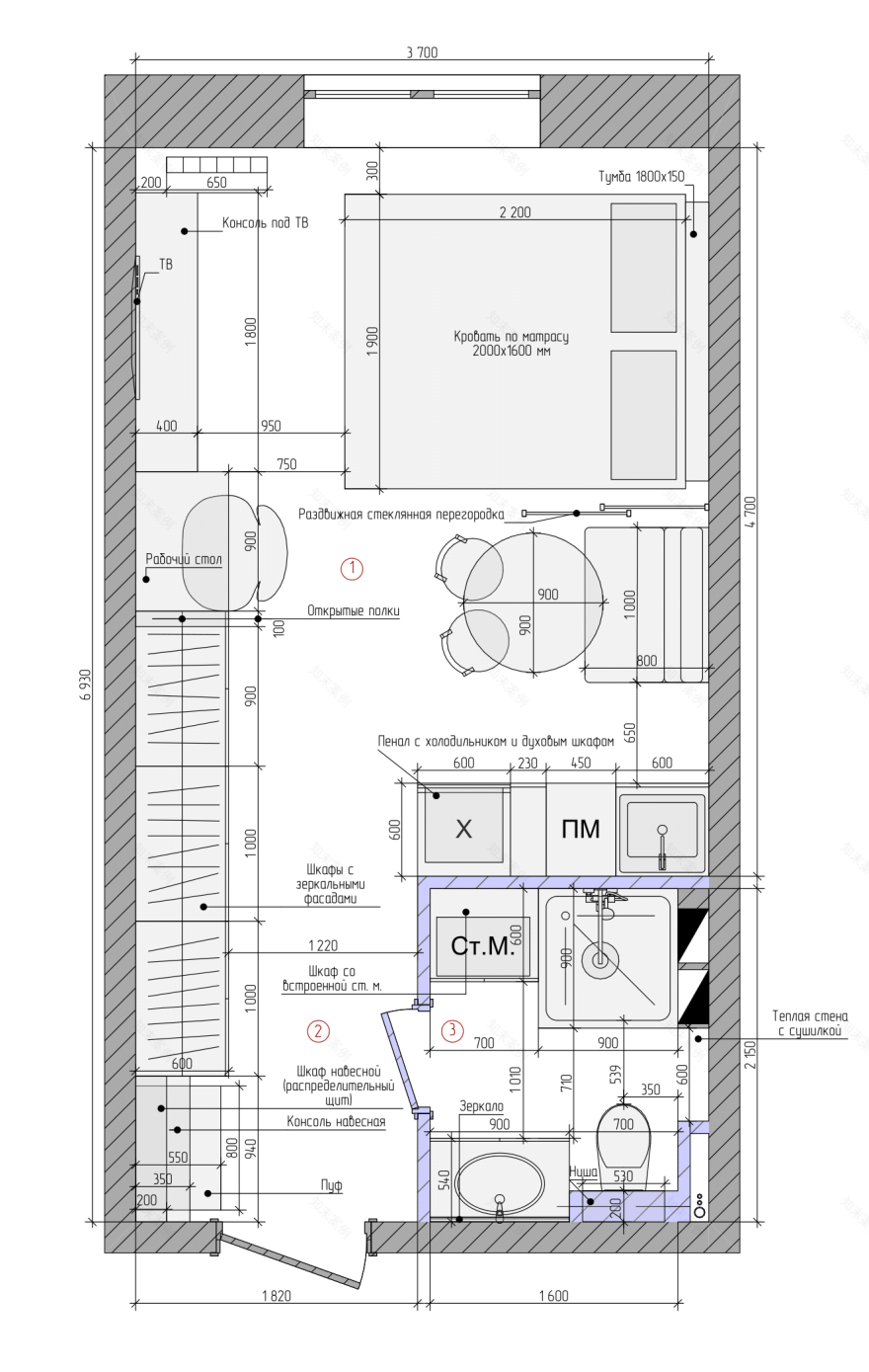
«Гнездышко», в 25 кв. м. площадью и 2,7 м. высотой, должно было уместить в себе полноценное спальное место (желательно отгороженное), маленькую, но функциональную кухню, на случай, если вдруг накатит кулинарное вдохновение (дома готовят редко), отдельное рабочее место и, конечно же, много мест хранения (куда мы без них…).
Для пары это первое собственное жилье, поэтому они с трепетом подошли к вопросу его обустройства. Хотелось чтобы было «светло и просторно, разный свет, много текстиля для уюта, джут, натуральные цвета…стильно и современно».
На сколько плотно упакована квартира, вы можете понять из планировочного решения, а мы в нашем обзоре идем дальше)
В зоне прихожей расположился 3х метровый встроенный шкаф с зеркальными фасадами - расширяем пространство (смотрим на себя красивых). Счетчики и роутер спрятаны в маленький шкафчик над пуфом, который тоже с хранением (Ну, а как иначе?). Консоль - тоже с хранением. Крючки - чтобы быстро бросить куртку, когда «не ел 3 дня» или сами придумаете повод)
Из прихожей мы попадаем в сан. узел, поэтому о нем и поговорим. Сан. узел всего 3,4 кв. м., а уместились и полноценная душевая кабина, и унитаз с инсталляцией (картина с секретом, за ней мы прячем технический лючок), большая раковина в паре с зеркалом с подсветкой иии… стиральная машинка в шкафу с полками для хранения. И даже небольшая сушилка с теплой стеной нашли свое место.
*листай*
Еще немножко ракурсов коридора и вот мы уже попали в основную зону жилого пространства, 17 кв. м., на минуточку.
*листай*
В кухонной зоне заказчики были готовы на барную стойку, т.к. боялись, что стол физически не сможет уместиться в маленькой кухне. Но, зачем соглашаться на меньшее? Ведь можно вписать не только стол, но и маленький диванчик, с которого за ужином можно с комфортом смотреть любимый сериальчик (хобби заказчиков), всего лишь сдвинув перегородку.
*листай*
Сам кухонный гарнитур, в длину не вышел и 2х метров, а уместил в себе встроенный маленький холодильник, духовой шкаф с функцией СВЧ, и целых 2 уровня хранения верхних шкафов. Встроенной плиты делать не стали, т.к. отдельностоящая маленькая плиточка более чем подходит для заказчиков.
Шкаф плавно перетекает в рабочее место, рабочее место - в тумбу под ТВ, такие уж они, маленькие квадраты - компактные)
Из неочевидного имеем тумбу за кроватью с глубокими полками, телефонными зарядками и всем так нам необходимым в этой зоне.
Заказчики хотели уютное обволакивающее пространство, поэтому в качестве основного освещения мы выбрали встроенную скрытую подсветку, создающую рассеянный свет, и дополнили его болеет точечными светильниками в необходимых зонах.
А как же оно вечером, посмотрим на рендерах в карусели:
*листай*
Вот так Юлия и Виктор получили свое «семейное гнездышко», а вы можете написать мне в личные сообщения, и мы решим, как именно ваши хотелки, квадраты и бюджеты упаковать в дизайн проект с последующей реализацией.
客服
消息
收藏
下载
最近






















