查看完整案例

收藏

下载
© Jeroen Verrecht
秩序是万物的基础原则,自然的形态千变万化、深不可测,而建筑作为基本的庇护所,如同衣物那般环绕着我们,使环境变得清晰且易于理解。在荷兰修士、建筑师汉斯·范德兰(Hans van der Laan)看来,建筑美学与我们认知世界的方式息息相关,这也正是建筑表现力的来源与体现。
△ Hans van der Laan
01 精神的修行者
Dom Hans van der Laan 荷兰
© Jeroen Verrecht
汉斯·范德兰于1904年出生于一个荷兰的建筑师家庭,在他求学的时代,荷兰建筑教育普遍局限于十九世纪的新古典主义和一战之前的风格,范德兰的超前理念与时任其教授的Van der Steur产生严重分歧,因此,他与几位同学创立了Bouwkundige Studiekring建筑研究小组,共同探讨勒·柯布西耶和风格派的宣传著作。
1929年,范德兰宣誓成为了修士,并被任命为修道院圣器室的管理员。但这并非他的全部工作,在修道期间,他抓住机会参与了唱诗班坐席、祈祷台以及小钟楼的设计,即便每天只能在晨会和午餐之间抽出半小时来研究建筑,范德兰修士也从未放弃过这份满腔的热爱。
© Jeroen Verrecht, Tim Van de Velde
正是在设计钟楼的这段时间里,范德兰修士逐渐意识到,即便是黄金分割法,也无法在多次结构分割后保持完美和谐的韵律关系,为了解决这一问题,他引入了能够修正黄金分割法、解决比例问题的数学概念——塑胶数(塑胶数又称银数,是一元三次方程x³=x + 1的唯一实数根,其数值约为1.324718),将模糊抽象的美学感受转变为严谨的数学计算。
© Aldo Amoretti
塑胶数的实践原理是以墙体厚度为最小的基础单位,按照其比例计算方法得出墙体外部形状的具体数值和墙体之间的组合逻辑。如果说范德兰修士的作品以一种包罗万象的极简为特征,那么数字便是其中唯一的装饰,通过无形的手法塑造和谐而寂静的氛围。
02圣本笃修道院
Dom Hans van der Laan
荷兰·瓦尔斯
© Jeroen Verrecht,Aldo Amoretti
在范德兰修士的观念内,世上有且仅有有一种普遍的规律,它根植于人性的基本法则,必然存在于所有民族、所有时代的所有艺术、音乐和文学创作之中。然而,由于其理念与早期基督教风格的冲突,至1956年,他才真正有机会实践教堂设计,这便是瓦尔斯圣本笃修道院建设的早期背景。
© Jeroen Verrecht,Aldo Amoretti
跨越几十年的建设之旅包含了一座教堂、一座客房翼楼以及一座图书馆,为了将新建部分融入现存的建筑空间,范德兰修士首先以3:7的比例设计了一个必要的中庭和回廊。而建筑物的比例尺度则由礼拜仪式所需的家具大小所决定,由内而外的形成了整体的造型逻辑。
© Jeroen Verrecht,Aldo Amoretti
就这个作品而言,墙体系统将有限的人造空间与无限的自然分隔开来,且又同时面向高地景观展开,为之赋予了一种全新的秩序。抽象、极简的空间姿态是连接人与自然的通道,数学比例重现了神性的和谐,通过美学的秩序性给人带来精神上的平静。
© Jeroen Verrecht,Aldo Amoretti
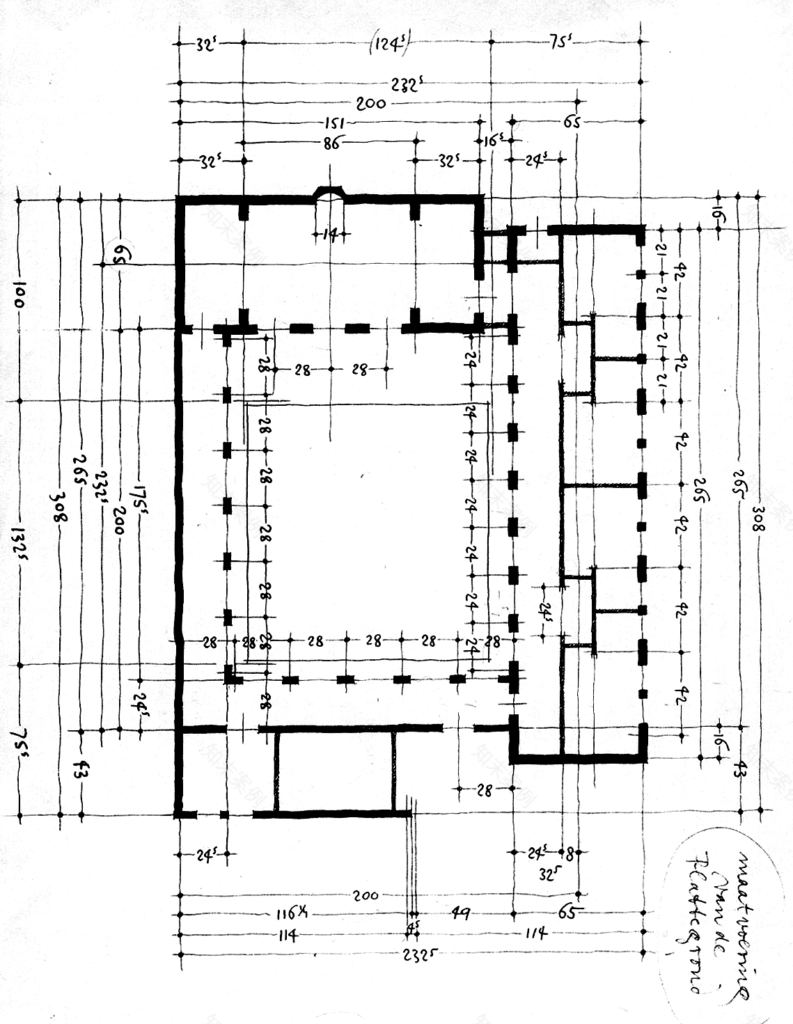
△项目图纸 03
鲁森伯格修道院
Dom Hans van der Laan
比利时·瓦斯明斯特
© Tim Van de Velde
人类建造的每座房屋都是自然的完美杰作,建造的本质是在自然中添加了“内部空间”,从而使自然成为了“外部空间”。因此,环境是范德兰修士的决策的核心出发点,在1972年为比利时的圣方济各玛利亚修女会设计的鲁森伯格修道院中,他充分实现了内外空间的互动对话,将其著作《建筑空间》直接体现于实际作品之中。
© Tim Van de Velde
这座修道院的空间序列由两个花园为主导,建筑与花园均遵循3:4的标准比例。其中南侧教堂采用八边形的原始构图奠定其核心地位,与之相对的是,东侧空间更强调私密性,根据修女的生活需求打造了一系列同样符合塑胶数比例的居住单元,以美学给予人们内心的指引。
© Tim Van de Velde 04 图默利拉修道院 Dom Hans van der Laan 瑞典·图默利拉
© orsenigo_chemollo, Caroline Voet
位于瑞典的 Monastery Church 的设计始于 1986 年,对于范德兰修士而言,这座本笃会修道院既是他的遗作,也是他最完整的设计作品。修道院的主体建筑在范德兰修士去世的同年建成,他因此未能亲眼见证竣工。
© orsenigo_chemollo, Caroline Voet
修道院整体呈十字形布局,其空间围绕两个方庭而建,前院供来访者使用,后院则是修女居住使用的场所。建筑物的墙体、窗框以及平面布局经过严谨的数学计算,看似简单的造型背后折射出深刻的内在逻辑,通过理性的设计手法定义了使用者的感知体验。
© orsenigo_chemollo, Caroline Voet 05 纳尔登住宅 Dom Hans van der Laan 荷兰·贝斯特
© orsenigo_chemollo
二战后,范德兰修士曾为了重建在战争中损毁的众多教堂而开设了为期三年的专攻课程,Naalden House是他为课程中的一名学生、建筑师Jos Naalden而设计的私人住宅。在设计过程中,范德兰修士将《建筑空间》的理念付诸实践,围绕着一个比例精确的庭院展开空间。室内外空间形成了高度的统一性,恰到好处地平衡了空间、形式和尺度这三个主要维度的表达。
© orsenigo_chemollo
左右滑动查看更多图片
06建筑的引路者
Dom Hans van der Laan
荷兰
© Jeroen Verrecht
范德兰修士的作品展现了一种截然不同的极简主义,他将空间层层拆解,通过“反叙事”的简朴姿态使表象形式无限靠近精神的本质。这一理念不仅关乎宗教建筑,也针对居住与体验的概念提出了根本性的变革理论。虽然范德兰修士刻意回避了建筑界的讨论,但众所周知的是,著名荷兰建筑师Gerrit Thomas Rietveld是他的忠实拥趸,他的比例学算法与极简的造型法则对欧洲国家的战后建筑与极简主义的发展产生了深远的影响。
©cult
范德兰修士不仅是一位理论家与建筑师,更是影响深远的教师,以其执教的教堂专攻课程为起点,博斯切学派(Bossche School)应运而生,掀起了一场涉及数学关系的建筑运动。范德兰修士始终在他所触及的各个领域探寻事物的起源,用无声的尺度诉说着永恒的和谐与宁静,也为后世留下了一条通往本质的建筑之路。
©cult
策划:NeiWai
编辑: YouChuan
校对:ZiYu
排版:NingBai
客服
消息
收藏
下载
最近



























































































