查看完整案例

收藏

下载
Arena Lobo会议中心项目根植于一种建筑方法之中,该方法将既有结构理解为一种主动的意义框架,而非限制条件。这座曾经的工业仓库,作为阿瓜斯卡连特斯工业发展历史的遗存,被重新激活,成为大学校园中一种全新公共状态的物质与象征载体。
The Arena Lobo Convention Center project is rooted in an architectural approach that understands preexisting structures not as constraints, but as active frameworks of meaning. The former industrial warehouse, a remnant of Aguascalientes’ productive past linked to its industrial development, is reactivated as the physical and symbolic support for a new public condition within the university campus.
▼项目概览,overall of the project © Paco Álvarez & Eli Román
该介入以一个基础性操作为核心:在保留中实现转化。原有的砖墙不再被视为中性的围护结构,而是作为承载记忆的边界,界定了新活动大厅的空间特征。在这一既有体量之上嵌入了一套当代钢结构,既恢复了原屋顶的几何形态与坡度,又建立起一种体量上的连续性——这种连续性并非对过去的复制,而是通过当代建造逻辑对其进行再诠释。
▼改造前后对比,before and after © Paco Álvarez & Eli Román
The intervention is based on a fundamental operation, to preserve to transform. The original brick walls are not treated as a neutral envelope, but as memory-laden boundaries that define the spatial character of the new event hall. A contemporary steel structure is inserted above this built mass, recovering the geometry and slope of the original roof and establishing a volumetric continuity that does not replicate the past but reinterprets it through a current constructive logic.
▼在砖墙中嵌入当代钢结构,A contemporary steel structure is inserted above brick wall © Paco Álvarez & Eli Román
项目有意将自身置于修复与新建建筑之间的中间地带。既有窗洞被选择性地保留:部分被修复,部分则保留其可见的风化痕迹,使时间的流逝成为建筑叙事中明确的一部分。这一策略避免了虚假的统一性,将“不完美”视为一种价值,使工业遗存作为建筑构成中的一层被加以接纳。
The project deliberately positions itself in an intermediate territory between restoration and new architecture. Existing windows are selectively preserved, some restored, and others left with visible traces of deterioration, making the passage of time an explicit part of the architectural discourse. This decision avoids false homogeneity and embraces imperfection as a value, understanding the industrial ruin as another layer within the architectural composition.
▼临街立面,street-facing facade © Paco Álvarez & Eli Román
主立面被构想为多层叠加的界面。在修复后的原有外壳之外,增设了一层钢与玻璃结构,使其同时作为过滤界面、过渡空间与城市标识。该介入并非遮蔽既有,而是强化其可读性,在内外之间生成新的空间深度。入口处围绕既有蓝花楹树组织形成的半开放广场,引入了景观维度,既缓和了建筑尺度,也营造出进入室内体验之前的过渡空间。
The main facade is conceived as a superposition of layers. A steel and glass structure is added to the restored original shell, operating simultaneously as a filter, threshold, and urban marker. Rather than concealing what exists, this intervention intensifies its reading, generating a new depth between interior and exterior. The semi-covered plaza formed at the entrance, organized around preexisting jacaranda trees, introduces a landscape dimension that softens the scale of the building and creates a transitional space preceding the interior experience.
▼入口处半开放广场,the semi-covered plaza formed at the entrance © Paco Álvarez & Eli Román
▼入口处半开放广场,the semi-covered plaza formed at the entrance © Paco Álvarez & Eli Román
在内部,建筑通过不同时代与技术之间的受控对比来构建。原有墙体、新建界面与外露结构并置共存,未形成严格的等级关系,从而生成一种由氛围主导、而非封闭形象所定义的空间。以钢材、砖与当代陶瓷为主的材料体系强化了这种混合状态,其中“工业性”并非一种审美选择,而是源于场地及其历史的直接结果。
Inside, the architecture is constructed through a controlled contrast between different times and techniques. Original walls, new surfaces, and exposed structure coexist without rigid hierarchies, producing a space defined more by atmosphere than by a closed image. The material palette, dominated by steel, brick, and contemporary ceramics, reinforces this hybrid condition, where the industrial is not an aesthetic choice but a direct consequence of the site and its history.
▼室内空间,interior space © Paco Álvarez & Eli Román
▼钢结构屋顶,steel structure roof © Paco Álvarez & Eli Román
▼蓝色瓷砖筑成的圆形用餐空间,circular dining hall constructed with blue tile © Paco Álvarez & Eli Román
▼保留原有砖墙,preserve the original brick wall © Paco Álvarez & Eli Román
▼保留时间的痕迹,preserve the trace of time © Paco Álvarez & Eli Román
该项目并不试图成为一个标志性对象,而更像是一种灵活且持久的空间装置。其价值在于通过将“记忆”作为设计材料,重新激活一座被遗弃的建筑,在不抹除其历史痕迹的前提下,提出一种新的公共生活方式。
The project does not seek to become an iconic object, but rather a flexible and enduring spatial device. Its value lies in its ability to reactivate an abandoned building through an architecture that treats memory as project material, proposing a new public life without erasing the traces of its origin.
▼入口夜景,entrance at night © Paco Álvarez & Eli Román
▼夜景,night view © Paco Álvarez & Eli Román
▼场地平面,site plan © Jonathan Corral Arquitectos
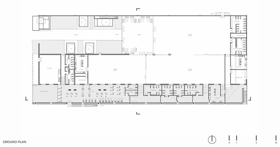
▼一层平面,ground floor plan © Jonathan Corral Arquitectos
▼屋顶平面,rooftop plan © Jonathan Corral Arquitectos
▼立面图,elevation © Jonathan Corral Arquitectos
▼剖面图,section © Jonathan Corral Arquitectos
PROJECT NAME: Arena Lobo Convention Center
PROJECT TYPE: Architectural rehabilitation, event hall, and multipurpose venue within a university campus
LOCATION: Aguascalientes, Mexico
YEAR: 2024
PROJECT STAGE: Built
TOTAL BUILT AREA: 4,907 sqm²
Design by Jonathan Corral Arquitectos
Design Team: Jonathan Corral José Heriberto Díaz Ortega, (modeling and 3D) Ricardo Marentes Carlo Murillo Julio Pizarro
Photography Paco Álvarez Eli Román
Contractor Forum Constructora Martín Soriano
客服
消息
收藏
下载
最近













































