查看完整案例

收藏

下载
命不过是温柔的疯狂,眼里一片海。光从线条里醒来,在大理石上流淌,金属与织物轻声应和,空间安静得像一首未被说出的诗。
家,就是独自拥有的、永恒的春天。
爱,创造了和谐。方转圆,柔化棱角。米色与咖色交织,是对粗粝最温柔的驯服。
这根柱子,不再是阻碍,而是家的温柔骨架。在光里,它诉说着:所有的刚硬,终会被生活的温柔包裹。
在这世界的褶皱里,藏着最轻盈的时辰。
沙发背后的小角落,像一片被风托住的云,是夜晚絮语的容器,也是茶烟漫过杯沿的慰藉。窗外的风景漫进来,把所有匆忙都揉成了慢镜头。
将琐碎藏在事物的表象之下,以便更自由地感受生活。那扇隐形门,是空间的障眼法,
它将琐忙碌完美隐匿,只把纯粹的余裕留给眼前。那个角落正等着一只小狗的到来,那里是它的港湾。
春天是一点一点化开的,日子也是。目光垂到餐厅,像一句轻轻的问候,落在餐桌,也落在生活的波纹里。
椅子围着桌子,像家人围着日子,吃饭的时候,就好好吃饭,把日子嚼得慢一点,再慢一点。
形式追随功能,而诗意追随生活。结构平淡从拆解旧结构开始,以流动曲线重构日常,新的肌理在空间里生长。
这墙是自然的星子,在光里轻轻摇晃。麦秆被编织成光的河流,青绿的浪涛里,藏着金属的星芒。
白马低头,饮下这流动的绿,片片云石的暖黄漫过,撞见自然与万物。
光在织物上打了个滚,变成了云。植物垂落的细叶是风的信使,摊开的书陷在这团暖里,舒适得像一场不愿醒来的酣梦。
每个温软的角落,都有一个热吻的巢,我们舒适无比。
烛火温温地 从容地散在空气
让每一次碰杯
都成了对生活的轻声赞颂
预备给这个世界,留下一些比日子本身更温柔的记录。
那几扇可转动的青绿色隔断,半开半合间,既圈出一方私密的安隅,又留着风与光的通路,不闷,也不疏。
人陷进软床里,就像落进了春阳晒暖的草甸,所有奔忙的棱角,被慢慢熨平。
真正的发现之旅,不在于寻找新的风景,而在于拥有新的眼睛。
灯的垂坠线条是克制的诗,它不喧哗,却在每一次目光触碰时,拉回到记忆里某个春日午后,充满暖意的瞬间。
艺术品是将无数个日常瞬间,凝练成永恒的可见之物。这条狭长的走廊,是主人私藏的时光展廊。
收纳与展示、私密与开放、日常与艺术,在这一隅串联。
柔软的水与留白的心境,在碰撞中达成平衡。像那叶小舟,在繁密的花叶里,依然能找到自己的航道,在诸事纷扰中,守住内心的祥和。
把春天,种进孩子的梦里。它不刻意雕琢,却处处藏着生长的力量:阳光是向上的枝桠,
软床是扎根的土壤,而那盏盏暖灯,便是孩子心底未眠的梦想,在春日里悄悄发芽,终会长成一片属于自己的森林。
这方小小的房间,是少年的自留地。
在这里,少年不必急着长大,只需让自己慢慢探索,让星辰在眼睛与指尖上安家,在日常的琐碎里,长出一整个无边无际的宇宙。
书是这里的春信,它们不是被封存的过往,而是与此刻对话的伙伴:
翻开的纸页间藏着四季的故事,层架上的摆件是生活的小确幸,连阳光落在木色地板上的纹路,都像春草在悄悄生长。
我们的生活,像世界一样,是由微小的事物构成的,这玄关便是最好的印证:
它不只是过渡的通道,更是生活的选择器。它四通八达,却从不混乱;它连接着所有生活场景,却始终让你拥有选择的自由。
在有限的空间里,选择让秩序与诗意生长,让原本局促的角落,变成连接世界与家的温柔渡口。
设计所做的,从来不止是美化空间,更是让动线有逻辑、让材质有灵魂、让生活有节奏、让家人有归属。
以十字为序,以春光为底,以成长为诗,以归家为终章。让每一种情绪都有安放,每一个梦想都有生长,每一段故事,都讲不完。
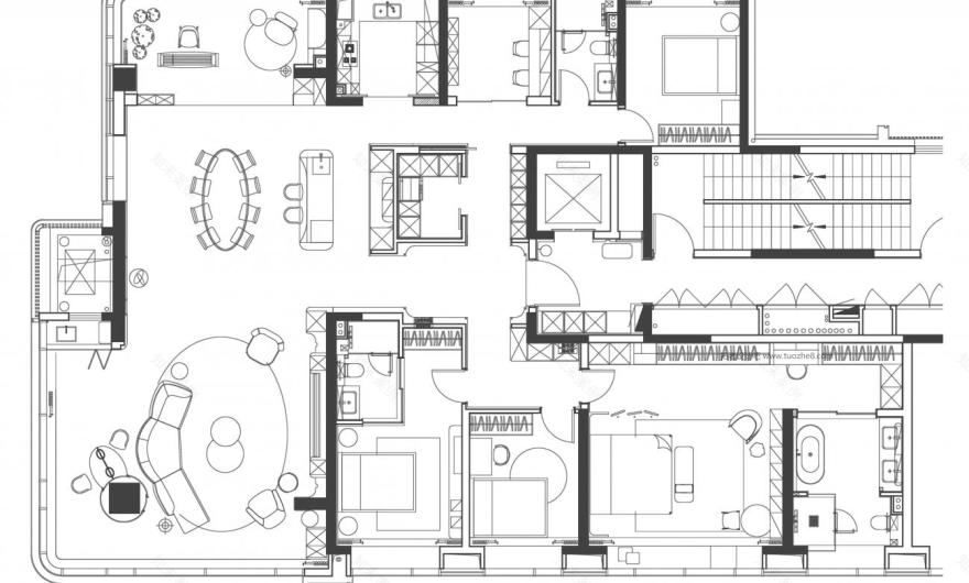
项目地点:江苏 南京
室内面积:298㎡
空间性质:精装大平层
项目进展:已交付
合作模式:全案设计 全程托管
项目设计:观享际SKH室内设计
项目施工:观享际SKH室内设计
项目软装:观享际SKH室内设计
空间摄影:丛林
部分品牌:M77全屋定制、投石石材、汉斯格雅&雅生、ASKO、帕诺地板、铜瑞金属、玫瑰岛淋浴房、金案地漏、欧西凯岩板、卡萨帝、威罗艺术漆、星途、慕冠、和信、云庭
设计时间:2025年6月-2025年7月
施工时间:2025年7月-2026年1月
客服
消息
收藏
下载
最近























































