查看完整案例

收藏

下载
CA Esports Grand Arena 是一个集赛事、观演、展示、社交与日常运营于一体的复合型电竞赛事中心。项目以“沉浸体验”为核心,将空间组织为一段连续的感知过程,使观众在进入、穿行与停留之间,逐步完成从现实到虚拟、从观看到参与的转换。设计从动线与空间界面出发,通过灯光、材质、结构装置与氛围的递进,构建出兼具效率与张力的场所。空间不仅承载比赛,也成为青年文化与集体情绪被持续聚集与放大的载体。
CA Esports Arena is a hybrid esports venue that integrates tournaments, spectating, exhibition, social interaction, and daily operations. Centered on the idea of immersion, the project organizes space as a continuous perceptual sequence, allowing visitors to gradually transition from reality to virtuality, and from observation to participation as they move through the environment. The design is structured through circulation and spatial thresholds. By layering light, material contrasts, structural interventions, and atmospheric shifts, the project creates a venue that balances functional efficiency with experiential intensity. Beyond hosting competitions, the space also serves as a platform where youth culture and collective emotions are continuously gathered and amplified.
▼外场活动区,Event Zone© 存在建筑
▼酒吧区域,Bar Area© 存在建筑
设计概念|现实裂缝中的异世界剧场
Design Concept|A Rift in Reality
对当代青年而言,电竞早已超越单纯的竞技行为,更接近一种短暂脱离现实的入口。在人群、声场、光影与对抗构成的高强度氛围中,个体从日常压力中抽离,进入更专注的状态。基于这一理解,项目将电竞空间转化为一段连续展开的体验。CA Esports Grand Arena 被构想为嵌入现实建筑内部的一座“异世界剧场”,在既有秩序中打开一道缝隙,使人从进入空间开始,逐步脱离现实,进入由光、界面与能量构成的场域。空间围绕一条递进式动线展开:入口建立界面感,长廊完成过渡,外场积蓄情绪,内场推向高潮。人的移动,不只是功能切换,更是一段感知的深入过程。
For contemporary youth, esports has moved beyond pure competition and become a temporary escape from everyday life. Within an environment shaped by crowds, sound, light, and confrontation, individuals step away from daily pressure and enter a more focused and heightened state. From this perspective, the project reinterprets esports space as a continuous spatial experience. CA Esports Arena is conceived as an “otherworldly theater” embedded within the structure of reality—a fissure within the existing order through which visitors gradually detach from the familiar and enter a field defined by light, interface, and energy. The project unfolds along a progressive sequence. The entrance establishes a threshold, the corridor mediates the transition, the event zone accumulates social and emotional energy, and the arena culminates in an intensified atmosphere. Movement through the space is not merely functional, but a gradual deepening of perception.
▼模型,Model©直现建筑
▼模型细部,Details of the model©直现建筑
空间分区说明
Spatial Sequence
1. 入口与前序空间|进入异世界的界面
Entrance and Prelude | A Threshold to Another World
长廊被塑造成一条被“数据流”包裹的通道。连续灯带强化方向与速度感,不锈钢界面的模糊反射削弱边界,使现实逐渐松动。尽端的混凝土装置以微弱的“呼吸灯”建立悬念,像尚未显现的能量信号,引导观众继续向内,完成第一次感知转换。
The corridor is conceived as a passage enveloped in a “data stream.” Continuous linear lighting reinforces direction and speed, while the blurred reflections of stainless steel surfaces soften spatial boundaries, suggesting a gradual dissolution of reality. At the end, a concrete installation introduces a sense of anticipation. A faint pulsating glow emerges from within, like an energy signal not yet fully revealed, guiding visitors inward and marking the first perceptual shift.
▼入口与前序空间,Entrance and Prelude© 存在建筑
▼入口与前序空间细部,Entrance and Prelude details© 存在建筑
2. 外场活动区|碎片化的虚拟广场
Event Zone | A Fragmented Virtual Plaza
外场展开为一个开放而碎片化的场域。几何界面与投影 Mapping 呈现数据被打散、重组与加载的状态,仿佛虚拟世界正在生成。铝拉网与灯带使光线在界面间渗透与漫射,增强空间层次与轻盈感。这里承载互动与社交,也为进入核心空间完成情绪铺垫。
Beyond the corridor, the space opens into a fragmented and dynamic field. Geometric surfaces and projection mapping visualize data being broken, recomposed, and continuously loaded, as if the virtual world were still in formation. Expanded metal mesh and integrated lighting allow light to diffuse across layers, creating depth, lightness, and a sense of ambiguity. This area supports interaction, gathering, and display, while preparing visitors for the core arena.
▼外场活动区,Event Zone© 存在建筑
▼碎片化的虚拟广场,A Fragmented Virtual Plaza© 存在建筑
3. 内场赛事空间|虚拟竞技的核心剧场
Main Arena | The Core Theater of Virtual Competition
进入内场后,氛围迅速提升。向下倾斜的 N 型装置以强烈姿态介入空间,通过压迫与失衡制造近似“重力反转”的体验。尺度与秩序在此被重新扰动,主舞台成为一个情绪被聚集与放大的核心场域。
Upon entering the arena, the atmosphere intensifies rapidly. A downward-tilting N-shaped structure cuts into the space, generating a sense of pressure and imbalance that evokes a “gravity shift.” Scale and spatial order are deliberately unsettled, transforming the arena into a charged environment where collective emotions are concentrated and amplified.
▼内场赛事空间,Main Arena© 存在建筑
▼内场赛事空间,Main Arena© 存在建筑
▼内场赛事空间细部,Main Arena details© 存在建筑
4. 酒吧区域|悬浮补给舱
Bar Area | A Floating Supply Capsule
酒吧作为赛事系统中的一个节点,更像高强度节奏中的“补给舱”,承接等待、停留与交流,并缓冲赛事情绪。空间延续工业与未来语汇:混凝土、金属网与冷色光源构成具有机械感的场域。中央悬浮发光体量成为核心,既像能量装置,也像系统模块。围绕其展开的吧台与座席,使观看、社交与停留形成连续体验。
The bar is positioned as a transitional node within the system, functioning as a “supply capsule” within the high-intensity rhythm of esports. It accommodates waiting, social interaction, and emotional release, providing a necessary pause within the overall experience. The space continues the project’s industrial and futuristic language. Concrete, metal mesh, and cool-toned lighting create a mechanical atmosphere. A suspended luminous volume forms the spatial core—part energy device, part system module. Around it, the bar counter and seating establish a continuous field where spectating, socializing, and lingering are seamlessly integrated.
▼悬浮补给舱,A Floating Supply Capsule © 存在建筑
▼酒吧区域,Bar Area© 存在建筑
▼酒吧区域细部,Bar Area details© 存在建筑
5. 离场体验|从梦境退回现实
Exit Sequence | Returning from the Dream
项目同样关注离场过程。随着光线收敛与声场回落,使用者从高密度状态中逐渐抽离,回归现实。空间由此形成完整闭环:进入、沉浸、对抗、回归,并在离开后保留清晰的感知记忆。
The project also emphasizes the departure experience. As light recedes and sound softens, visitors gradually withdraw from a high-intensity collective state and return to reality. This creates a complete emotional loop: entry, immersion, confrontation, and return, leaving behind a clear and lasting sensory memory.
▼外场活动区,Event Zone© 存在建筑
结语
Conclusion
项目所探讨的,不只是电竞空间的视觉表达,更是空间如何回应当代青年的情绪需求。通过叙事化动线,比赛、观看与社交被整合为连续体验,使建筑从容器转变为触发与放大感知的媒介。
The project explores not only the visual language of esports architecture, but also how space can respond to contemporary emotional needs. Through a narrative sequence, competition, observation, and social interaction are integrated into a continuous experience, allowing architecture to move beyond a neutral container and become a medium that activates and amplifies perception.
▼轴测图,Axonometric drawing©直现建筑
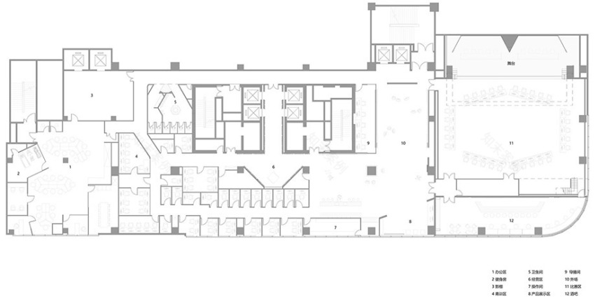
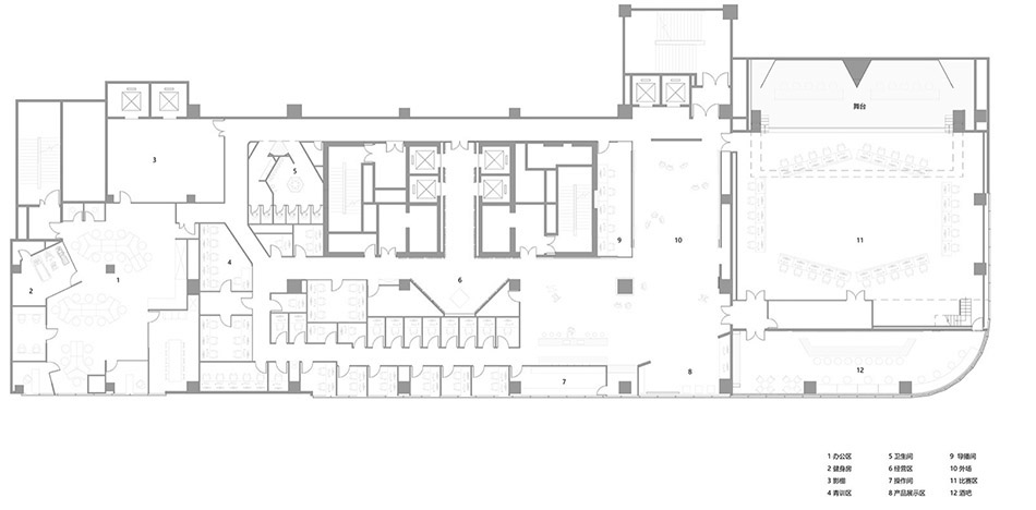
▼平面图,plan©直现建筑
▼剖面图,section©直现建筑
项目名称:CA赛事中心
项目类型:室内设计
设计方:直现建筑
项目设计:2025
完成年份:2026
设计团队:徐倩倩,方卓欣,尹秀璟,吴布唯
项目地址:成都市成华区一环路东一段65号
建筑面积:2000㎡
摄影版权:存在建筑
合作方:四川中南建工程技术有限公司(施工方)
客户:CA电竞
材料:不锈钢, 铝拉网,清混涂料
Project name: CA Esports Arena
Project type: Interior Design
Design: Epiphany Architects
Design year:2025
Completion Year:2026
Leader designer & Team:Qianqian Xu, Zhuoxin Fang, Xiujing Yin, Buwei Wu
Project location: No. 65, Section 1, East First Ring Road, Chenghua District, Chengdu, China
Gross built area: 2000㎡
Photo credit: Arch-Exist
Partner: Sichuan Zhongnanjian Engineering Technology Co., Ltd(Contractor)
Clients: CA Esports
Materials: Stainless Steel, Aluminum mesh, Concrete paint
客服
消息
收藏
下载
最近

































