查看完整案例

收藏

下载
根植于土地,塑形于光线,这座建筑消解了传统办公的边界,营造出一种兼具社交性、气候响应性,并与周边环境深度联结的工作场所。——大卫·阿贾耶(David Adjaye)
Grounded in earth and shaped by light, the building dissolves the boundaries of the conventional office, creating a workplace that is at once social, climatic and deeply connected to its surroundings.
——David Adjaye
▼项目鸟瞰,aerial view of the project©Mutahi Chiira
▼项目鸟瞰,aerial view of the project©Mutahi Chiira
该建筑由David Adjaye设计,是其全球建筑事务所Adjaye Associates在阿克拉的总部办公空间。Shippon Offices在坎通门茨(Cantonments)——阿克拉最核心且成熟的街区之一——确立了一处全新的甲级办公场所。这座四层建筑标志着这一享誉全球的建筑事务所在西非落成并入驻其自有设计作品的重要时刻。
Designed by David Adjaye, the building is the Accra home of his own global architecture practice, Adjaye Associates. The Shippon Offices establishes a new Grade-A workplace in Cantonments, one of Accra’s most central and established neighbourhoods. The four-storey building marks a significant moment for a globally recognized practice inhabiting a building of its own design in West Africa.
▼项目外观,facade of the project©Mutahi Chiira
▼项目街景,street view of the project©Mutahi Chiira
建筑形象由极具辨识度的鳍片立面与一段长达26米的悬挑构成,悬挑部分跨越底层停车结构向外延展。这一设计手势将主要办公空间抬升,形成超过1300平方米的无柱办公区域,在结构清晰性与空间效率之间取得平衡。建筑可容纳约180人办公。
The building’s identity is defined by a striking finned façade and a 26-metre cantilever that extends beyond the parking structure at ground level. This gesture elevates the primary workspace and creates over 1,300 square meters of column-free office area, balancing structural clarity and spatial efficiency. The building is designed to accommodate up to 180 people.
▼长达26米的悬挑,a 26-metre cantilever©Mutahi Chiira
▼极具辨识度的鳍片立面,defined by a striking finned façade©Mutahi Chiira
▼极具辨识度的鳍片立面,defined by a striking finned façade©Mutahi Chiira
在材料层面,建筑采用夯土与低碳混凝土建造,体现了事务所对环境性能的重视,以及在当代建造中对本土材料与知识体系的运用。夯土鳍片构成相对封闭的外立面,在保证私密性的同时实现遮阳控制;其深度与间距则精确地框取城市景观视线。鳍片立面既作为环境过滤系统运作,也成为建筑最具标志性的语言。
Materially, the building is constructed of rammed earth and low-carbon concrete, reflecting the practice’s commitment to environmental performance and the use of local materials and knowledge systems in contemporary construction. Rammed earth fins create a largely opaque exterior that ensures privacy and solar control, while their depth and spacing frame precise views across the city. The finned façade operates as an environmental filter and the building’s defining architectural language.
▼建筑采用夯土与低碳混凝土建造,the building is constructed of rammed earth and low-carbon concrete©Mutahi Chiira
▼在保证私密性的同时实现遮阳控制,create a largely opaque exterior that ensures privacy and solar control©Mutahi Chiira
▼在保证私密性的同时实现遮阳控制,create a largely opaque exterior that ensures privacy and solar control©Mutahi Chiira
室内空间由光线与土质材料之间精细调控的关系所塑造。自然光透过玻璃与鳍片系统引入室内,营造出温暖、沉稳且富有触感的空间氛围;木材与夯土表面进一步强化了以人为尺度的工作环境。▼轴测图,axonometric© Adjaye Associates
Internally, the building is shaped by a calibrated interplay of light and earthen material. Daylight is drawn through the glazed fin system, producing interiors that are warm, grounded and tactile, with timber and earthen surfaces reinforcing the human-scaled working environment.
▼接待区域,reception area©Mutahi Chiira
▼办公区域,office area©Mutahi Chiira
▼讨论区域,discussion area©Mutahi Chiira
▼模型区,model zone©Adjaye Associates
▼模型区,model zone©Mutahi Chiira
▼会议室,meeting room©Mutahi Chiira
▼儿童室,children’s room©Mutahi Chiira
▼楼梯区域,staircase©Mutahi Chiira
▼屋顶区域,roof area©Mutahi Chiira
总部空间包括会议套间、设有完整户外厨房的屋顶露台,以及由专业幼教教师负责的托育空间,为事务所员工提供支持。在首层,立面延展形成室内外连续的廊架空间,为会议、休憩与夜间社交活动提供一处遮蔽而开放的场所。
The headquarters includes a conference suite, a rooftop terrace with fully equipped outdoor kitchen, and a creche, led by a qualified early-years teacher, supporting the practice’s staff. At ground level, the façade extends into an indoor-outdoor pergola, offering a shaded space for meetings, breaks and evening gatherings.
▼入口夜景,entrance at night©Mutahi Chiira
▼开放日傍晚,opening day event at dusk©Adjaye Associates
▼入口夜景,entrance at night©Mutahi Chiira
▼夜景鸟瞰,aerial view at night©Adjaye Associates
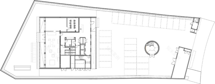
▼场地布局,site layout© Adjaye Associates
▼场地平面,site plan© Adjaye Associates
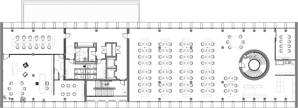
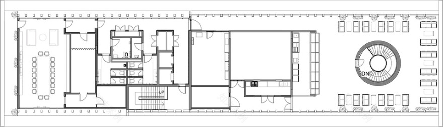
▼一层平面,ground floor plan© Adjaye Associates
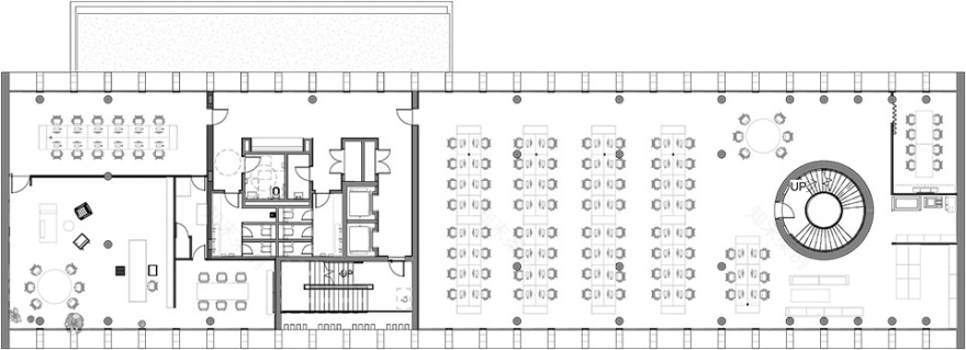
▼二层平面,first floor plan© Adjaye Associates
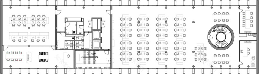
▼三层平面,third floor plan© Adjaye Associates
▼四层平面,fourth floor plan© Adjaye Associates
▼立面图,elevation© Adjaye Associates
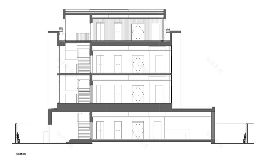
▼剖面图,section© Adjaye Associates
Size:13,993 sqft / 1,300 sqm
Program:Conceived as a climate-responsive workplace, the building integrates passive cooling, locally sourced materials and a shaded, self-regulating envelope to reduce environmental impact while responding directly to Accra’s heat, light and urban context.
Architect:Adjaye Associates
Structural Engineer:CCL Ghana Stressing System Limited Project Plus Consult
Landscape Architect:Adjaye Associates, Slate Urban
General Contractor:Fridoug Limited
Mechanical/Electric Engineer:Francis Opoku – Mechanical Consultant Ato Roberts – Electrical Consultant
Civil Engineer:Project Plus Consult
Rammed Earth Consultant:Hive earth Baycons Engineering Limited
Glazing:K3 Aluproducts Thames flow Investments Limited
Wooden cladding and timber works:SD Property solutions Ltd
客服
消息
收藏
下载
最近





















































