查看完整案例

收藏

下载
锦溪高级中学是16轨48班寄宿制普通公立高中。项目场地位于昆山市锦溪镇区东部,原为平整的农田,一段东西走向的河道把北宽南窄、大致呈直角梯形的基地分为南北两个部分。基地外围为已建成的多层住宅小区或待开发的居住用地。
▼鸟瞰,Bird’s Eye View ©苏圣亮
寄宿制高中的学生肩负着高强度学业和快节奏生活带来的压力,学校几乎就是他们全部的生活世界。我们希望校园的内外部空间除了类型多样、层次丰富,还能具备唤起学生正面情绪的力量,在承载教学、休憩、交往和活动等众多内容的同时,为学生提供充分的精神支持。▼校园主入口,Main Entrance of the Campus ©苏圣亮
设计将锦溪高中的建筑体量以低层高密度的方式,在基地北部聚合成一个“集落”,并把大型集中绿地和各类运动场布置在基地南部,构成类自然化的开阔场地。集落中建筑、外部空间以及使用者的关系紧密,建筑的庇护感能被人真切地感受到。这种由密度和围合所引发的内聚性,往往给人带来归属感。而大片自然化场地所具有的扩散性,则让人感觉舒缓。因此,由两种密度截然不同的建成环境并置而成的锦溪高中校园,有潜力让学生持续受到鼓舞并不断释放压力。寄宿学生原本单一的学习生活场景,也将在两种建成环境的切换中丰富起来。
▼校园主入口广场,Main Entrance Plaza of the Campus ©苏圣亮
▼校园主广场,Main Plaza of the Campus ©苏圣亮
集落中的建筑体量围合成十余个大小不等、形态各异的外部空间。它们作为没有屋顶的大厅,与平面轮廓多为矩形的建筑单体并置交织,形成一个水平延展、虚实相生的网格状复合体。在这里,各外部空间地位均等,建筑单体亦无主次之分。这种无定形均质状态,是对不规则基地以及场地内外错综交杂的河道、农田、水塘等元素的具体回应。相比由明确秩序控制的建筑群,锦溪高中的建筑集落更为多义和耐人寻味。
▼从架空空间看向校园主广场,View from the Elevated Space to the Main Plaza ©苏圣亮
集落内建筑体量的底层整体或局部架空,相邻的外部空间得以联通,而它们二层及以上的界面仍然保持高度围合。外部空间因而在具有明确内聚性的同时还存在着离散性。身在其中,人的感知不会局限于单个空间,而是游弋在若干外部空间及其界面的层叠之中,这极大程度提升了集落整体的知觉丰富性。除了知觉体验,校园各外部空间构成了与教学和生活密切关联的场景。师生的逗留和活动,使外部空间成为凝聚情感和承载记忆的亲切之地,进而转化为具有归属感的场所。这样,外部空间作为校园中不可或缺的物质和精神双重载体的真正价值,得以完全显现。
▼校园主广场及大台阶,Main Plaza and Grand Stairs ©苏圣亮
▼亲水的校园环境,Waterfront Campus Environment ©苏圣亮
锦溪高中众多的教室、实验室、庭院、廊道等小尺度空间,构成了校园空间平和的日常基调。而报告厅、图书馆、体育中心等大型共享空间,则试图营造微妙的超越感和崇高感,籍以激励学生奋发向上,一如集落中的大型外部空间那样。校园于是便成为日常和超日常氛围的复合体,其丰富性得以进一步拓展。
▼图书馆采用交叉剪力墙结构,Library with Cross Shear Wall Structure ©苏圣亮
▼内部空间氛围,Interior Space Atmosphere ©苏圣亮
罗西在《城市建筑学》一书中,阐明了那些承载着集体记忆、具备明确形式特征的建筑及其所在地点对城市居民的意义。借助内与外,虚与实、日常与超日常的并置,设计希望锦溪高级中学也能够成为这样的所在——丰富的生活世界和向上的精神源泉,而不是只讲求效率的教学机器。
▼体育馆立面,Facade of the Gymnasium ©苏圣亮
▼体育馆,Gymnasium ©苏圣亮
▼体育馆,Gymnasium ©苏圣亮
▼体育馆空间局部,Interior Detail of the Gymnasium ©苏圣亮
▼总平面图,Master plan ©大舍建筑
▼一层平面图,1F plan ©大舍建筑
▼二层平面图,2F plan ©大舍建筑
▼屋顶平面图,Roof plan ©大舍建筑
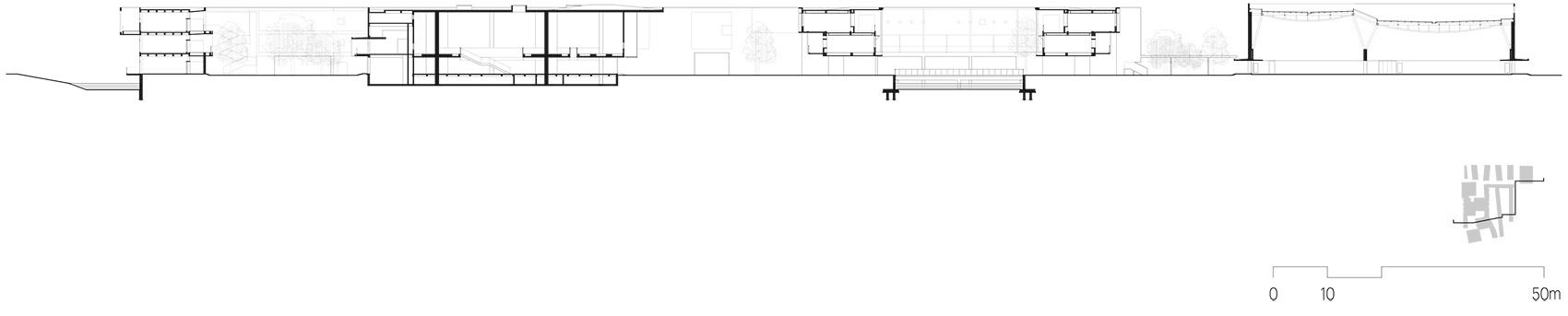
▼剖面图,Section ©大舍建筑
项目基本信息:
项目名称:昆山锦溪高级中学
地点:昆山市锦溪镇
建筑规模:72033.98平方米
设计时间:2017年10月—2022年8月
建成时间:2023年6月
建筑设计、室内设计、景观设计:大舍建筑设计事务所
结构与机电设计:同济大学建筑设计研究院(集团)有限公司
主持建筑师:陈屹峰
建筑师:陈屹峰、高林、马丹红、高德、王译羚、宋崇芳、唐大舟、金怡蕾、黄敏堃、吕诗旸、蔡勉
结构工程师:张准、姜文辉、崔勇、刘佳星、余洁、郑孝婷
机电工程师:张颖、赵时光、于金岭、王晨璐、邵喆、李伟江、孙嘉宾、顾春峰、马杏宇、孙凡、管敏琦、俞杜雷、杨磊
业主方:昆山市教育局
代建方:昆山城市建设投资发展集团有限公司
Project Information
Project Name: Kunshan Jinxi Senior High School
Location: Jinxi Town, Kunshan City
Gross Floor Area: 72,033.98 sq m
Design Period: 2017.10 – 2022.08
Completion: 2023.06
Architectural Design, Interior Design, Landscape Design: Atelier Deshaus
Structural and MEP Design: Tongji Architectural Design (Group) Co., Ltd.
Principal Architect: Chen Yifeng
Design Team: Chen Yifeng, Gao Lin, Ma Danhong, Gao De, Wang Yiling, Song Chongfang, Tang Dazhou, Jin Yilei, Huang Minkun, Lv Shiyang, Cai Mian
Structural Engineers: Zhang Zhun, Jiang Wenhui, Cui Yong, Liu Jiaxing, Yu Jie, Zheng Xiaoting
MEP Engineers: Zhang Ying, Zhao Shiguang, Yu Jinling, Wang Chenlu, Shao Zhe, Li Weijiang, Sun Jiabin, Gu Chunfeng, Ma Xingyu, Sun Fan, Guan Minqi, Yu Dulei, Yang Lei
Client: Kunshan Municipal Bureau of Education
Project Management (Agent): Kunshan Urban Construction Investment & Development Group Co., Ltd.
客服
消息
收藏
下载
最近




















