查看完整案例

收藏

下载

翻译
Project name: Apartment design Silver Fountain
Location: Moscow, Russia
Goal: to create modern apartment for a young couple
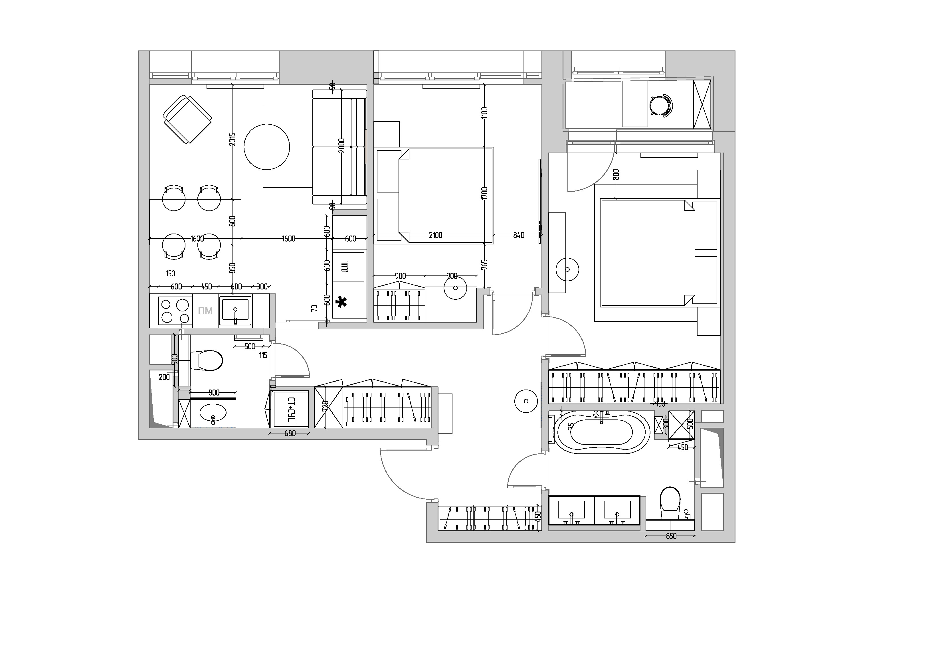
Area: 63 sq.m
Realization: 2022
ENTRANCE LOBBY
LIVING ROOM & KITCHEN
MASTER BEDROOM
GUEST BEDROOM
MASTER BATHROOM
GUEST BATHROOM & CORRIDOR
客服
消息
收藏
下载
最近





















