查看完整案例

收藏

下载
本项目位于江阴,是给一对00后小两口打造的婚房。我们和业主一起,把 140㎡的空间,做成了一个能装下所有生活热爱的无界容器。
空间没有繁复的装饰,只有原木的温润、混凝土的粗粝,还有满室的自然光,把日子过成了最舒服的样子。
很多人说清水混凝土太冰冷,但是在这个家里,我们把它和原木做了碰撞,反而揉出了最舒服的质感。
南向的整面落地窗,把整个城市的采光都引了进来,整个客厅的空间,在阳光里都变得温柔了起来。
餐厅的区域,我们选了一个野口勇的纸灯,暖黄的光洒在木桌上,吃饭的时候,氛围感一下子就出来了。
这个书房做了一个盒子的形式,搭配巧妙的可推拉磨砂移门设计,让这个空间可藏可露。
书房的内部我们也做了细致的设计,整面的原木书桌,还有靠窗的小操作台,业主可以在这里办公、打游戏,都很舒服。
主卧我们用了黑与木的碰撞,中间的黑色水泥墙,刚好把休息区和洗漱区分隔开来,一下子就把私密的氛围感拉满了,进去之后,就能瞬间从公共区域的热闹里抽离,安静下来。
卧室的窗边我们做了一整排的原木梳妆台,刚好嵌在窗下,业主可以在这里化妆,阳光洒进来的时候,光线刚好,化妆的时候不用额外打光都很清楚。
卫生间的区域我们也做了统一的黑与木的设计。双台盆的设计,两个人早上不用抢,洗漱都很方便。
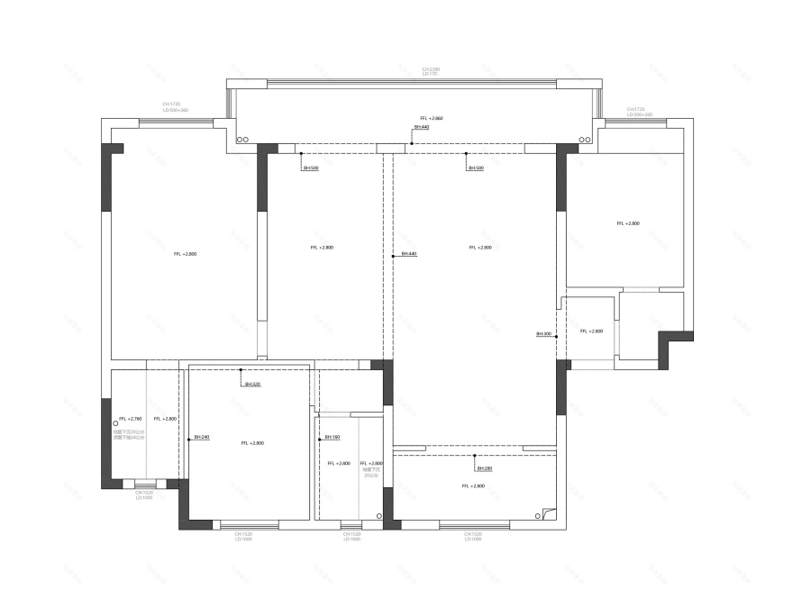
拿到原始户型的时候,我们发现原本的空间被太多封闭的隔墙分割得零碎又局促,采光被挡住,公共区域的互动感也很差。
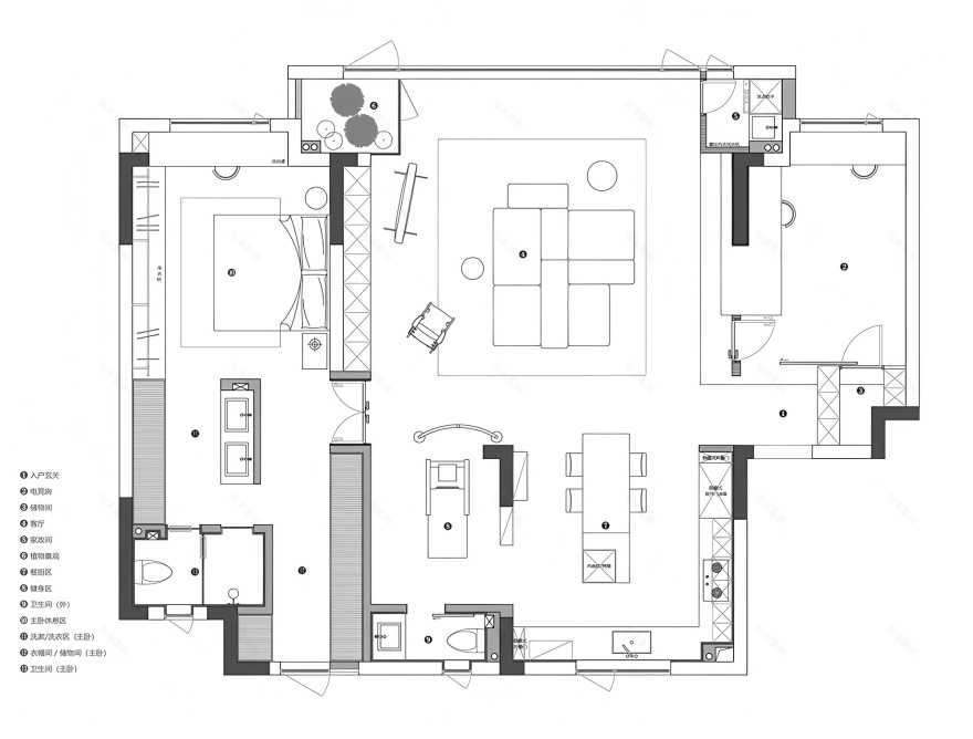
业主的需求很简单:想要一个通透的、一家人能随时互动的空间,同时还要能有工作加游戏的书房空间、双方的健身需求,还有两个人想要的小花园角落。
于是我们做了最大胆的改动:拆掉了所有非承重的隔墙,把客、餐、厨还有休闲区完全打通,做成了一个开放式的无界公共空间。
项目地址:江苏 江阴
空间设计:東亼设计事务所
主案设计:成森
建筑面积:140㎡
项目摄影:生辉
艺术是种享受,很棒的设计
整体设计很有品味,空间布局流畅,色彩与材质搭配和谐,灯光氛围营造得恰到好处,细节处理非常用心,既实用又美观!
哇,大师对这种风格了如指掌哦,功力深厚。
客服
消息
收藏
下载
最近


































