查看完整案例

收藏

下载

翻译
Комплекс зданий и сооружений ООО «ВСК»
Проектом предусмотрено строительство «Административно-бытового корпуса», «Музейного комплекса», «Спортивного комплекса» и «Склада товарно-материальных ценностей» в едином комплексе зданий, отражающих политику, структуру и подход ООО «ВСК» как в функциональном аспекте, так и в архитектурно-художественном образе.Входная группа в комплекс представляет собой площадку-сквер, образованную двумя объемами административного-бытового комплекса (АБК). Там же осуществляется вход в АБК, визуально акцентированными алюминиевыми ламелями на фасаде. в отделке комплекса используеются материалы натуральных оттенков (облицовочный кирпич, алюминиевые композитные панели сигнально-белого и графитового цветов, фиброцементные панели с фактурой бетона по съемной опалубке. импосты витражей, ламели и различные доборные элементы приняты также графитового цвета. Проектом предусматривается архитектурная подсветка.Вдоль здания АБК пролегает главная градостроительная ось. Эта ось является основным общественным транзитом, который ведёт к широкой входной лестнице музейного комплекса. Образно путь посетителя сопровождается линией фасада административно-бытового комплекса, течение рабочих процессов которого скрыты, и замыкается лестницей, которая гостеприимно ведет во вход в музей и дальнейшей сценарной линии экспозиции. напротив основного объема АБК расположена зона открытой парковки и вид на акваторию. Общественный транзит имеет более высокую отметку чем парковка, тем самым сохраняя вид на море. Перепад высот общественной зоны и парковки выполнен в виде амфитеатра и частично лестницы. После здания АБК и перед музейным комплексом расположена еще одна площадка. Там же осуществляется вход в спортивный комплекс. проектом предусмотрено устройство уличного и декоративного освещения.Рабочие процессы комплекса скрыты за зданием АБК. Там же расположена площадка-сквер и спортивная площадка для сотрудников. Далее расположен склад, за которым предусмотрена зона грузового транспорта.
Местоположение участка проектирования
Концептуальные эскизы
Схема демонтажа
Схема генплана
ЭКСПЛИКАЦИЯ
1. Административно-бытовой комплекс2. Музейный комплекс3. Спортивный комплекс4. Склад товарно-материальных ценностей5. Площадь-сквер 16. Площадь-сквер 27. Площадка для остановки автобусов8. Сквер для сотрудников9. Хозяйственно-бытовая площадка при музейном и спортивном комплексах10. Хозяйственно-бытовая площадка при столовой11. Площадка для мусора12. Контрольно-пропускной пункт13. Площадка для большегрузных автомобилей14. Основная парковка на 132 м/места15. Парковка при музейном комплексе 21 на м/место16. Парковка при спорткомплексе на 17 м/мест17. Парковка для руководителей на 7 м/мест18. Гостевая парковка на 20 м/мест19. Велопарковка при спорткомплексе
Схема организации доступа пешеходов
Схема огранизации движения транспорта
Схема озеленения
Аксонометрия. Общий вид
Аксонометрия. Планировочная структура
Визуализация. АБК
Визуализация. Музей
Визуализация. Спорткомплекс
Визуализация. Рекреация
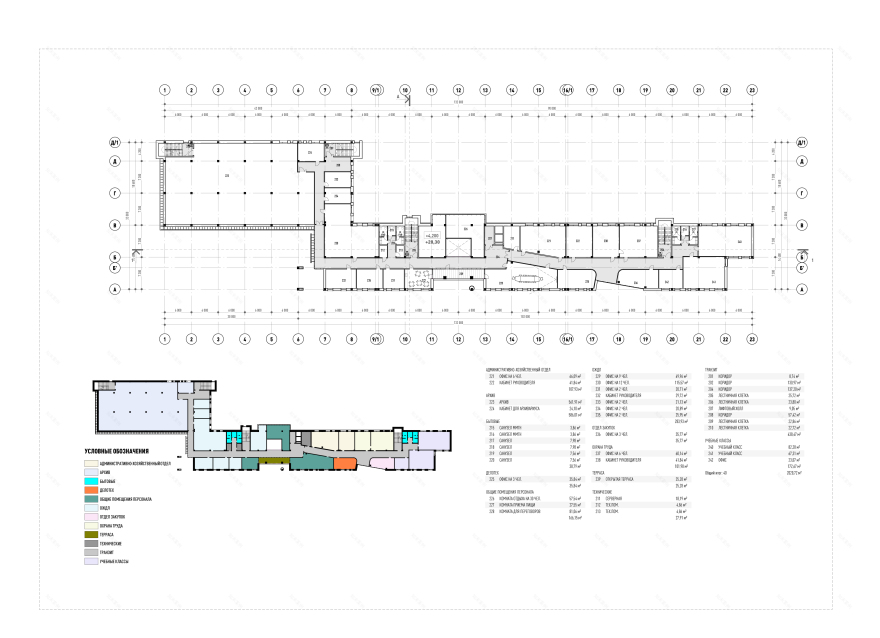
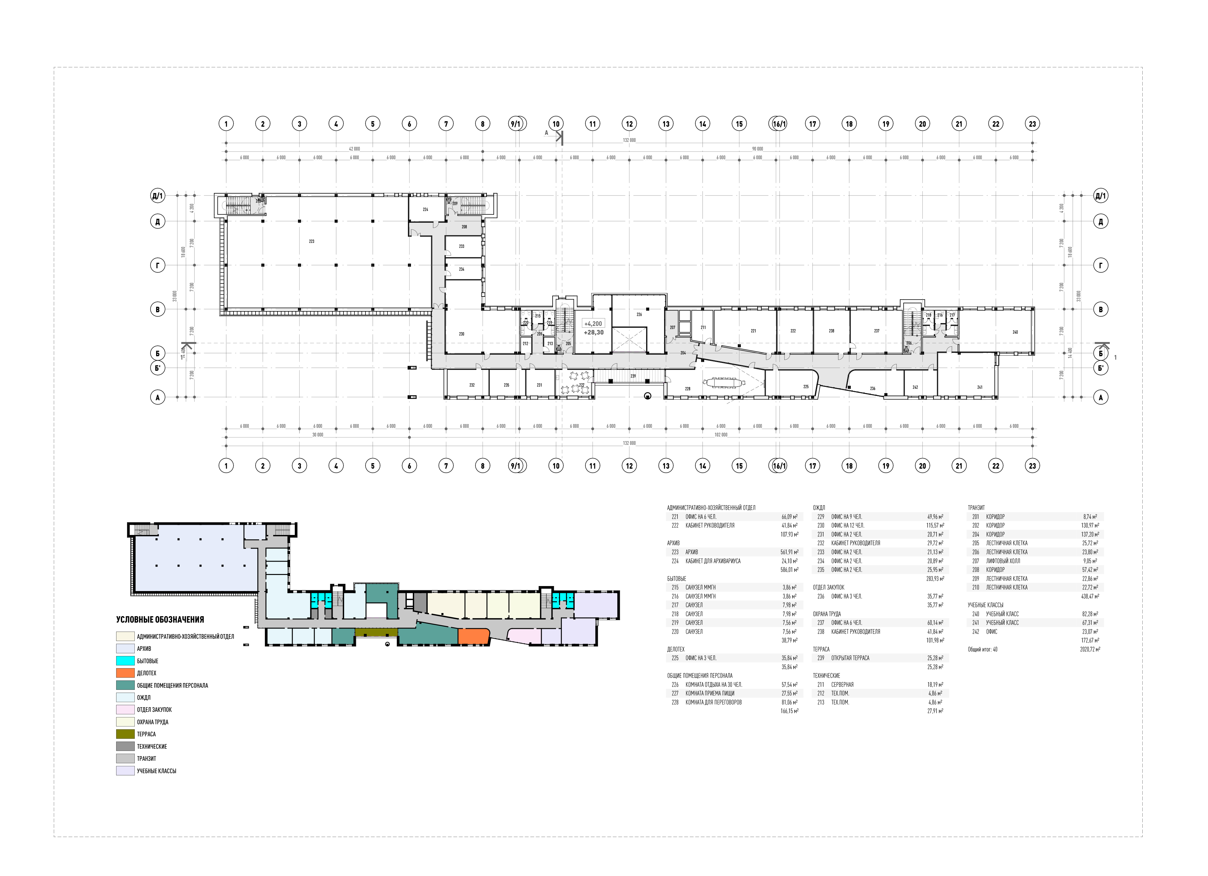
АБК
Общие данные
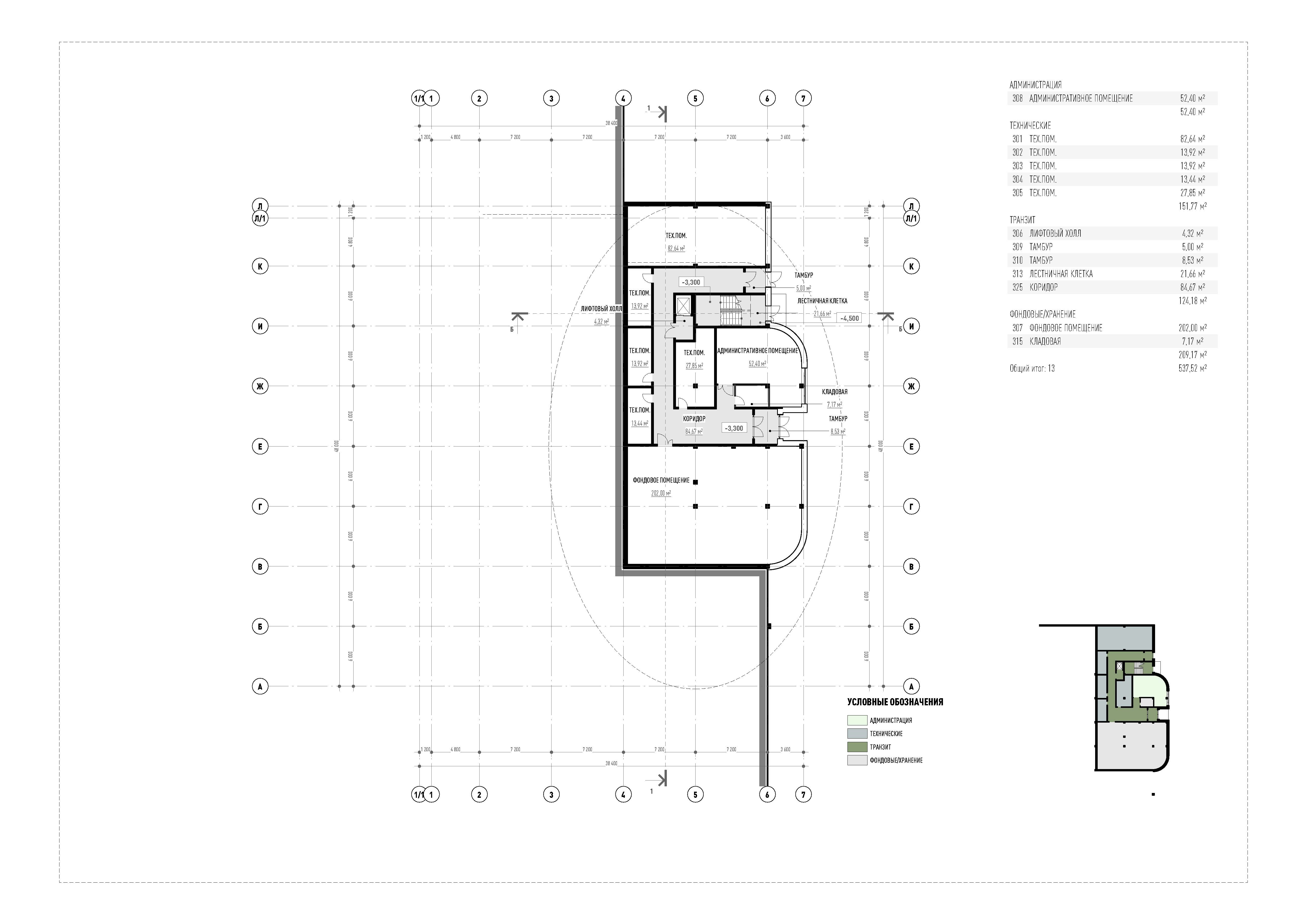
Внешний и внутренний вид административного корпуса, расположенного в составе комплекса зданий и сооружений ООО «ВСК» обусловлен его местоположением, границами земельного участка, ориентацией фасадов относительно композиционной оси комплекса, а также необходимым составом помещений, определяемым заданием на проектирование и технологическими требованиями, предъявляемыми к данному типу зданий.Административно-бытовой корпус (АБК) представляет собой отдельно стоящее, пятиэтажное здание, имеющее в плане форму двух присоединенных прямоугольников. Общий размер здания в плане 132,0 х 33,0 м (в осях). Высота здания от наиболее низкой проектной отметки земли до верхней отметки парапета 20,4 м.В состав здания входят следующие функциональные зоны:• служебно-административные помещения• помещения столовой• помещения архива• транзитные помещения• помещения санитарно-бытового назначения• помещения инженерного назначения
Фасады
Разрез
Планы
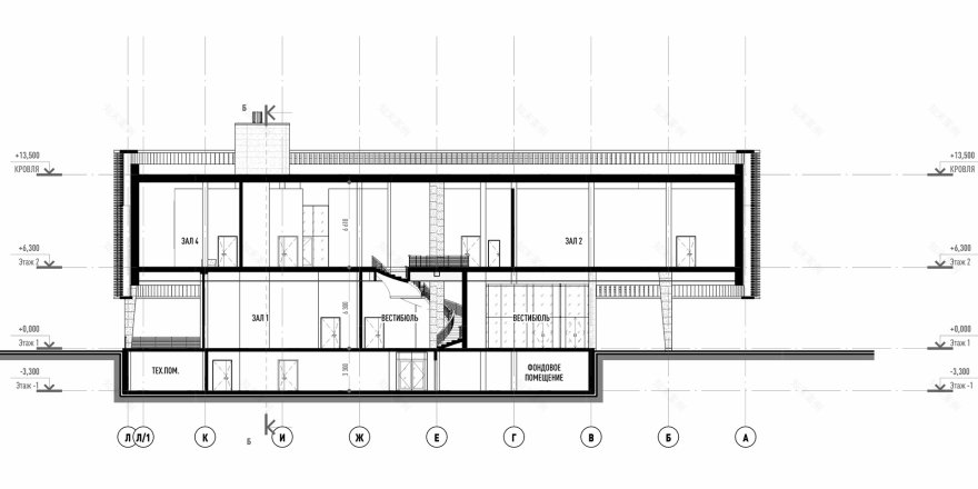
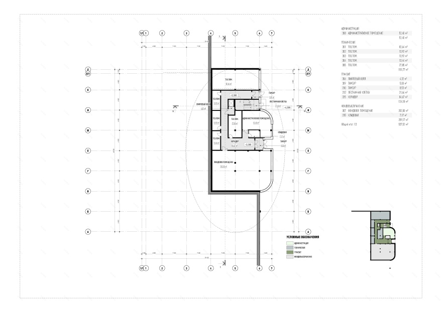
Музей
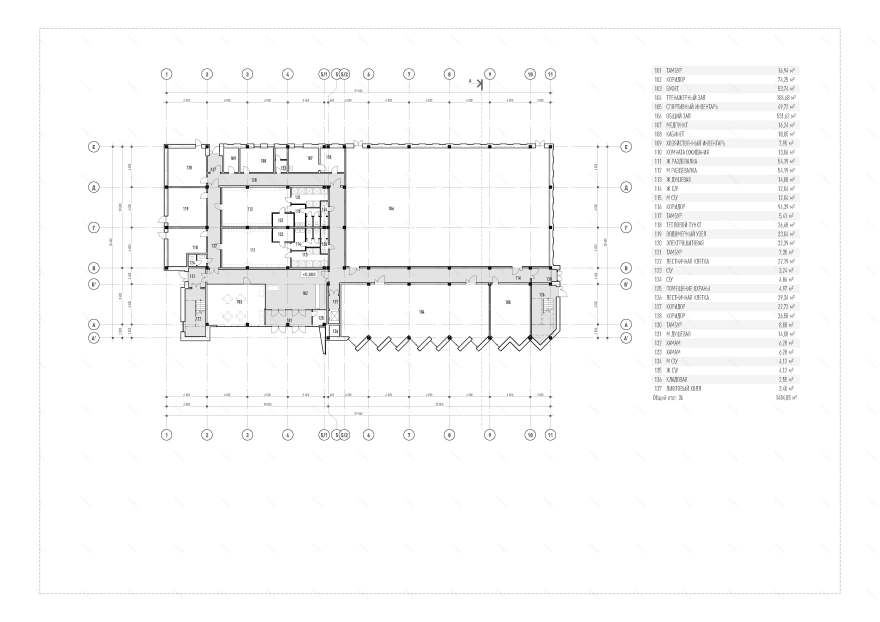
Общие данныеВнешний и внутренний вид здания «Музейного комплекса», расположенного в составе комплекса зданий и сооружений ООО «ВСК» обусловлен его местоположением, границами земельного участка, ориентацией фасадов относительно композиционной оси комплекса, а также необходимым составом помещений, определяемым заданием на проектирование и технологическими требованиями, предъявляемыми к данному типу зданий.Музейный комплекс представляет собой отдельно стоящее, трехэтажное здание, имеющее в плане форму двух прямоугольников с массивным эллиптическим объемом на уровне второго этажа. Общий размер здания в плане 48,0 х 38,4 м (в осях). Высота здания от наиболее низкой проектной отметки земли до верхней отметки парапета 21,0 м.В состав здания входят следующие функциональные зоны:• экспозиционная• зона хранения• конференц-зал• буфет• зал сувенирной продукции• транзитные помещения• помещения санитарно-бытового назначения• помещения инженерного назначения
Фасады
Разрезы
Планы
Спорткомплекс
Общие данные
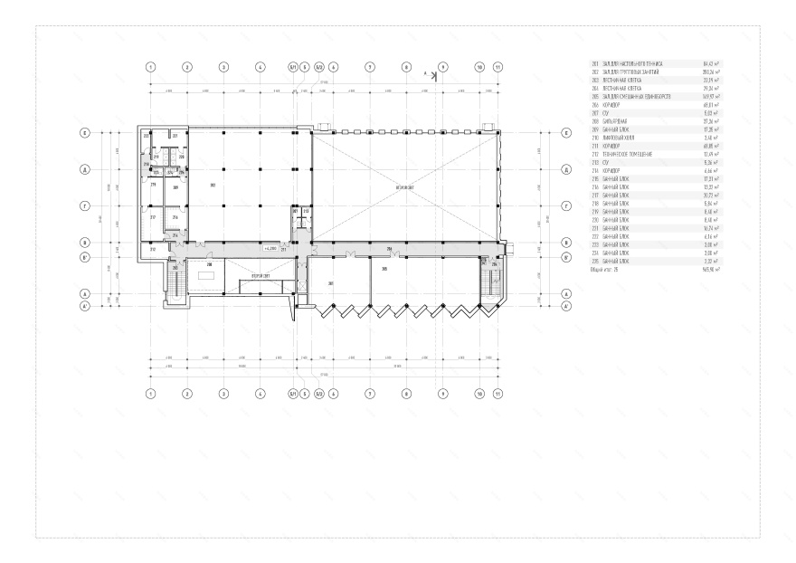
Внешний и внутренний вид здания «Спортивного комплекса», расположенного в составе комплекса зданий и сооружений ООО «ВСК» обусловлен его местоположением, границами земельного участка, ориентацией фасадов относительно композиционной оси комплекса, а также необходимым составом помещений, определяемым заданием на проектирование и технологическими требованиями, предъявляемыми к данному типу зданий.Спортивный комплекс представляет собой отдельно стоящее, двухэтажное здание, имеющее в плане форму прямоугольника. Общий размер здания в плане 57,0 х 28,4 м (в осях). Высота здания от наиболее низкой проектной отметки земли до верхней отметки парапета 14,7 м.В состав здания входят следующие функциональные зоны:• помещения спортивных залов• помещения медицинского обслуживания• сауна и помещения её обслуживающие• транзитные помещения• помещения санитарно-бытового назначения• помещения инженерного назначения
Фасады
Разрез
Планы
客服
消息
收藏
下载
最近









































































