查看完整案例

收藏

下载
本项目场地面积为931.00平方米,位于一处转角地块,临街界面呈曲线形态,夹角较为紧凑。地形较街道基准标高高出约1.0米,并随围合场地的道路坡度向交叉口方向倾斜。该区域正处于城市逐步发展完善的阶段,整体仍以乡村特征为主,夹杂零散的城市化建成环境。周边景观缺乏明确特征,呈现出一种折衷、碎片化且分散的状态。
The intervention site has an area of 931.00 m², located on a corner plot, with a curved frontage and a tight angle. The topography, approximately 1.0 m above street reference levels, follows the slope of the roads that bound the plot towards the intersection. It is an urban area in the process of consolidation, where rural character predominates with scattered urban presences. The landscape does not raise specific concerns. It is eclectic, fragmented, and dispersed.
▼项目概览,overall of the project© João Morgado
地块属于一处住宅分割用地,本次设计为一栋包含三间卧室及带顶停车空间的独栋住宅。设计的核心关注点在于如何应对来自公共空间的视线暴露问题,尤其是在较长的临街界面与地块几何形态及尺度之间的关系。住宅建筑面积为357.70平方米,采用单层布局。其平面为一个不规则多边形,各边与公共道路界线平行;在多边形中心挖出一个方形庭院。
建筑功能被划分为三个区域:
1. 社交空间,位于转角位置,朝向西南;
2. 卧室区域,沿北侧边界布置,并向东侧庭院开敞;
3. 覆盖式停车区,作为南侧界面的遮挡,并向西开放。
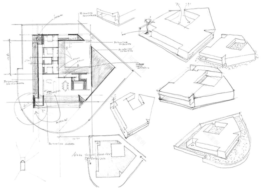
▼草图,sketches©NOARQ
▼模型,model©NOARQ
The plot is part of a subdivision. The proposal concerns a single-family dwelling with three bedrooms and covered parking.
The main concern is exposure to public overlook, considering the relationship between the length of the street frontage and the geometry and size of the plot. The house occupies an area of 357.70 m² and is developed on a single storey. The footprint is an irregular polygon defined by faces parallel to the alignment of the public roads. At the centre of the polygon, a quadrangular courtyard is carved out.
The building programme is divided into three zones:
1. The social area, exposed to the corner, facing southwest;
2. The bedroom area, defining the northern boundary and opening onto the courtyard on the east side;
3. The covered parking area, shielding the southern frontage and opening westwards.
▼灯光亮起后的住宅外观,exterior view of the house after the lights up© João Morgado
▼夜景,night views© João Morgado
立面采用外保温系统(ETICS)完成。室内天花为石膏板吊顶,以经济性与维护便利为前提,隐藏建筑的各类设备管线。采暖系统则完全整合于地面之中。室外铺地采用花岗岩小方石,仿佛直接从场地本身的材料中生长而出。围墙被自然元素包裹与覆盖,在视觉上被柔化;植被作为场地整合策略的重要组成部分,选用周边区域的本土物种。
The façades are finished with ETICS. The ceilings are plasterboard, concealing the building’s infrastructure networks for reasons of economy and accessibility. Heating is fully integrated within the floor. The external paving is granite cobblestone, emerging from the material of the ground itself. The perimeter walls are enveloped by natural elements that cover and visually soften their presence. Vegetation forms part of the landscape integration strategy, using endemic species from the surrounding territory.
▼立面采用外保温系统(ETICS)完成,the façades are finished with ETICS© João Morgado
▼住宅为单层布局,呈不规则多边形平面,the house features a single-story, irregular polygonal layout© João Morgado
▼庭院,courtyard© João Morgado
主要的起居与服务空间围绕中央庭院展开,该庭院承载日常生活活动,并通过一条带顶的外廊获得气候防护。社交空间由起居室与餐厅组成,并与厨房及早餐区形成连续关系。高度为2.1米的厨房柜体在一定程度上对公共空间进行分隔,同时界定了通往储藏室与洗衣房的入口。住宅的私密区域包括两间共用一间浴室的卧室,以及一间带有更衣区和独立卫浴的主卧。停车区为带顶空间,并通过一个前室与厨房相连。
The main living and service spaces are arranged around the central courtyard, which supports domestic activity and is protected from the weather by a covered external gallery. The social area consists of a living room and dining room, continuous with the kitchen and a breakfast area. The kitchen cabinets, at a height of 2.1 m, partially filter the common space and the access to the pantry and laundry room. The private wing of the house comprises two bedrooms sharing a bathroom and one bedroom with a dressing area and en-suite bathroom. The parking area is a covered space connected to the kitchen through a vestibule.
▼主要的起居与服务空间,the main living and service spaces© João Morgado
▼客厅,living room© João Morgado
▼模糊的室内外界限,blurred exterior and interior boundary© João Morgado
▼橱柜起到分隔空间的作用,the cabinet serves to divide the space© João Morgado
▼厨房,kitchen© João Morgado
▼由庭院看卧室,viewing the bedrooms from the patio courtyard© João Morgado
▼卧室,bedroom© João Morgado
整体构成策略以可持续性作为一种伦理原则展开——尤其关注经济可持续性与建筑的生命周期。设计回应时间对建筑的消耗、自然风化过程,以及性能、能源效率、认证、安全、生态与包容性等多方面要求。因此,项目倾向于一种被动式、骨架化的建筑表达,避免形式上的附加与构造性的矫饰。结构墙体与楼板直接呈现其材料本质——混凝土;其余墙体采用砌体结构,并以抹灰完成,以实现经济性。
The compositional strategy is grounded in sustainability as an ethical principle — namely economic sustainability and the life cycle of the construction. It responds to chronological time, which wears down architecture; to weathering; and to the demands of performance, energy efficiency, certification, safety, ecology, and inclusion. It therefore seeks a passive and skeletal architecture, without formal concessions or constructive artifices. The structural walls and slabs expose their nature — concrete. The remaining walls are masonry, plaster-finished for economy.
▼结构墙体与楼板直接呈现其材料本质——混凝土,the structural walls and slabs expose their nature — concrete © João Morgado
▼总平面图,master plan©NOARQ
▼平面图,plan©NOARQ
▼立面图,elevations©NOARQ
▼剖面图,sections©NOARQ
▼模型,model©NOARQ
PPA house
DATA SHEET
Trofa, Porto, Portugal
2018 – 2023
Project
Single-family house
Intervention Area
384 m²
Architecture
NOARQ
Arch. José Carlos Nunes de Oliveira
Collaborators
NOARQ
Project Managers
Arch. Gaia Ferraris
Collaboration
Arch. Sara Bitossi
Arch. Giulia Furlotti
Arch. Sruthy Lakkimsetty
Arch. Gloria Herranz
Arch. Beatriz Gapo
Constructor
AC MAIA – Carlos Maia, Miguel Leite;
Engineering Consultants
Structures
Ing. João Maria Sobreira
Hidraulic
Ing. Raquel Fernandes
Acoustics
INACOUTICS – Ing. Octávio Inácio, Ing. Filipa Abreu
Electricity, Telecomunications, Security and Electromechanics
GPIC – Ing. Alexandre Martins
Gas e Climatization
Nuno Miranda, Lda
Photography
João Morgado
客服
消息
收藏
下载
最近










































































