查看完整案例

收藏

下载

翻译
Architects:Hoem + Folstad Arkitekter
Year:2021
Photographs:Knut Folstad
Category:Houses,Extension
Country:Norway
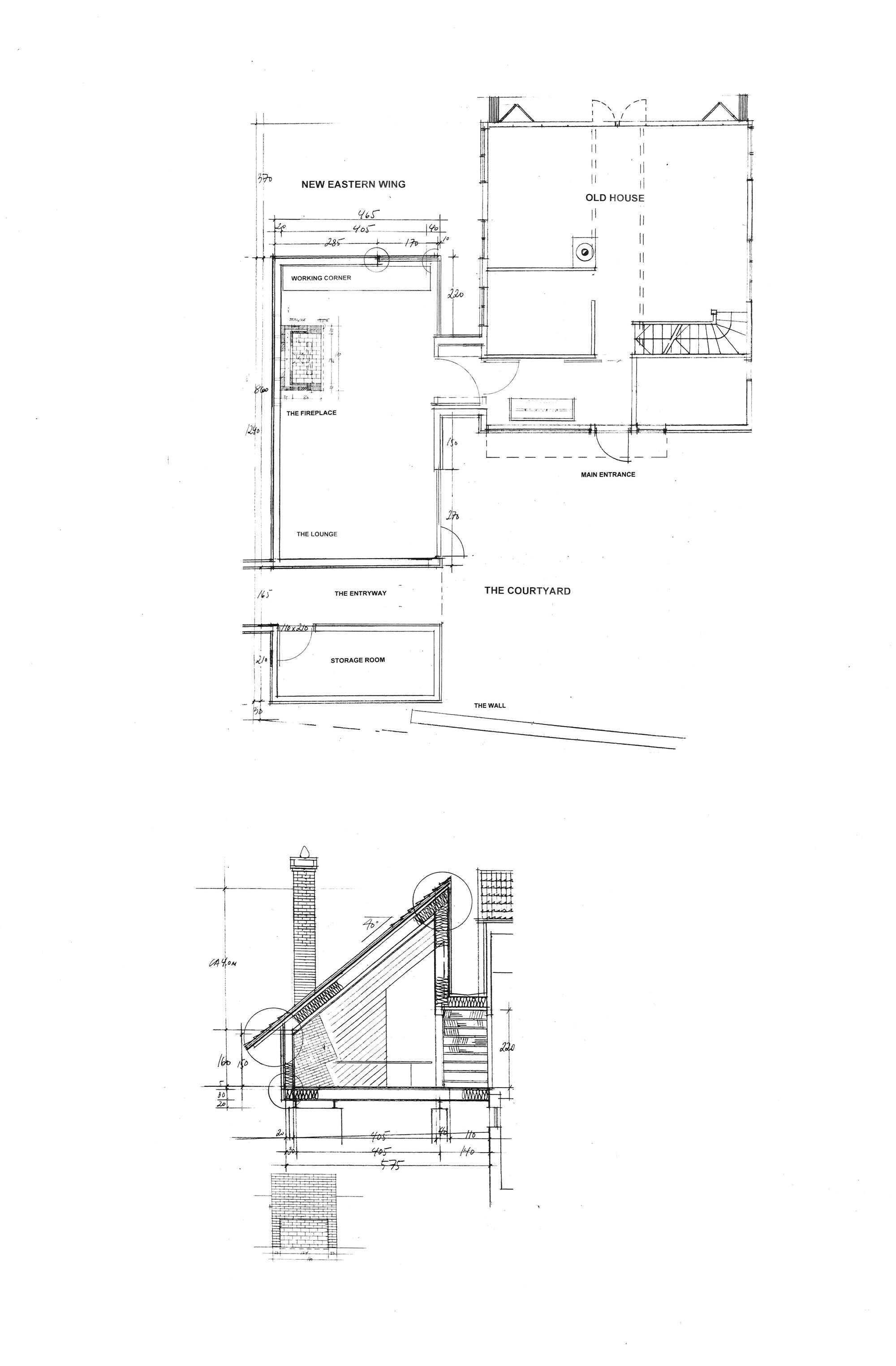
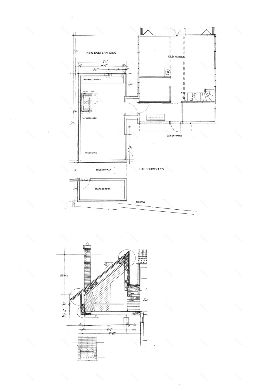
Text description provided by the architects. A small, detached house in an open fjord landscape, surrounded by fields and residential buildings. The homeowner wanted an extension of the house and outdoor areas that were more sheltered from wind and insight from a busy footpath on the seaside of the property.
The solution was a closed courtyard where the existing house, new annex, and retaining walls shape the courtyard. A pergola construction with a glass roof stands as a solitary element in the outdoor space.
The courtyard garden has become an attractive gathering place for the family and friends in the summer months. The new main access to the house is through a passage in the annex into the courtyard garden.
The passage represents a threshold between the open landscape and the closed walled garden.The design is inspired by traditional farm facilities in the area.
The new annex is clad with corten steel plates on all external walls. The roof tiles are recycled from demolished houses in the area. Oiled oak veneer on interior walls. Solid oak on ceilings and floors. An open fireplace is centrally located in the open living room.
Project gallery
客服
消息
收藏
下载
最近






















