查看完整案例

收藏

下载

翻译
Villa 73 Living & Dining Room
Project Location : Ecopark, Hung Yen
Design & Visual: GiangLe & M+ Architecture
Villa Design Project
Entrance Lobby
Dry Kitchen and Dining
Living Room
2nd Floor Hallway
Wet Kitchen
Secondary Living Room – 1st Floor
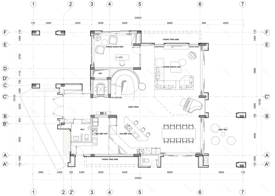
1st Floor Plan
客服
消息
收藏
下载
最近



















































