查看完整案例

收藏

下载

翻译
Architects:Kubo Tsushima Architects
Area:374m²
Year:2025
Photographs:Masao Nishikawa
Manufacturers:MARAZZI,Panasonic,REFIN
Structural Engineering:MID Architectural Structure Laboratory
MEP Engineering:Yamazaki M&E Design
Contractor:System Design
Category:Cabins & Lodges
Principal Architect:Hideaki Kubo, Yumi Tsushima
Project Team:Mizuki Miura, Ryo Tanaka
Developer:Landix
City:Fujikawaguchiko
Country:Japan
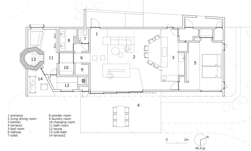
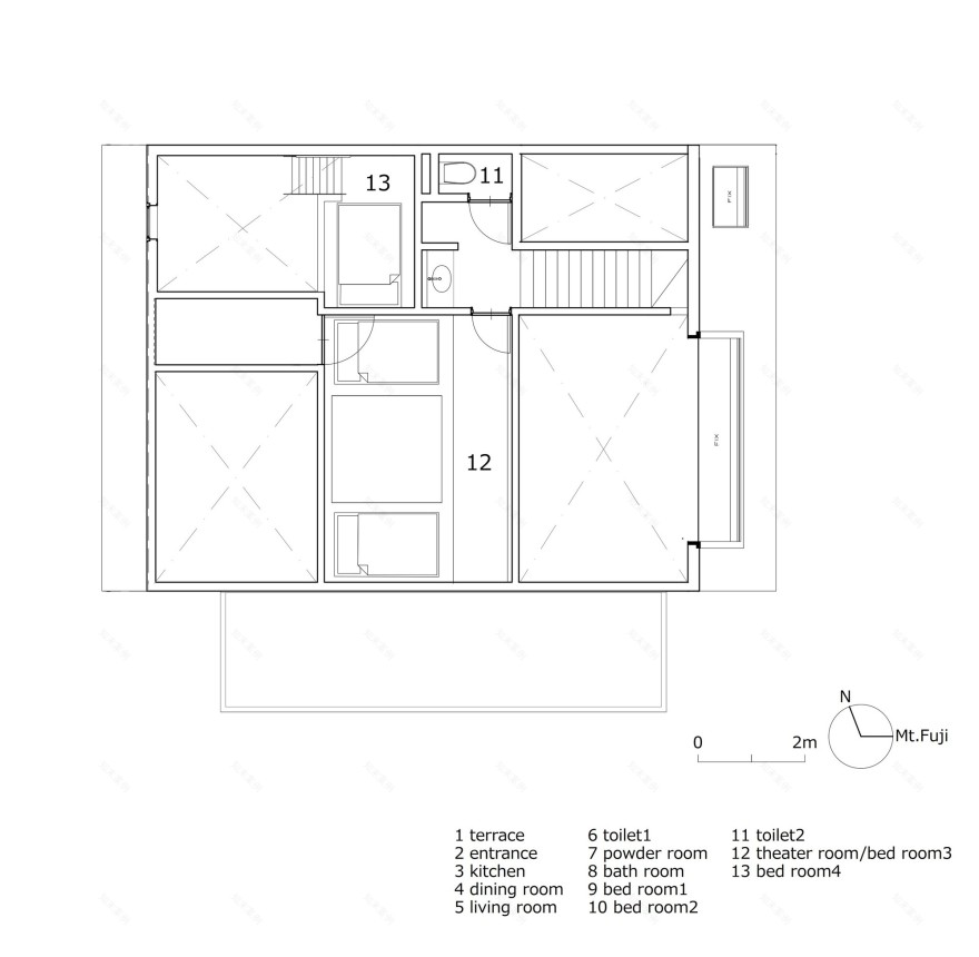
A composition of experiences and sensations in dialogue with Mount Fuji — Located on a richly undulating site at the foothills of Mount Fuji, this project consists of a cluster of three private villas. Each building is carefully positioned along a shared axis oriented toward the borrowed scenery of the mountain. While unified by this orientation, the three architectures embody distinct spatial conditions—floating, sinking, and enveloping—through which perception, bodily awareness, and the experience of time are reconfigured.
Rather than treating Mount Fuji as a distant visual object, the project engages it as an active presence. Through subtle manipulations of eye level, visual permeability, light conditions, and distance from the landscape, each villa generates a different mode of encounter. Together, these orchestrated spatial states propose a "third place" that distances itself from the rhythms of the city and offers a renewed awareness of time and environment.
The first villa is conceived as a floating wooden volume lifted from the slope by a massive stone base. The rock-like mass acts as a visual anchor and becomes the first icon encountered upon approaching the site. Although positioned furthest from Mount Fuji, the building is elevated to its greatest height, ensuring an equal relationship among the three villas while emphasizing a sense of levitation. The living area opens fully onto a terrace through sliding glass doors, dissolving the boundary between interior and exterior while directing a strong visual focus toward the mountain. In contrast, the bathing zone is carved into the stone mass, forming a cave-like cold bath where soft indirect light and carefully arranged elements create a calm, introspective atmosphere.
The second villa is embedded within a natural depression in the terrain, appearing as a subdued polyhedral mass of earth-toned concrete. Its exterior blends seamlessly with the surrounding topography, while the interior minimizes openings to establish a sense of stillness and distance from the outside world. Continuous curved surfaces define both the living and sleeping areas, where diffused light gently wraps the space. Through the integration of material, light, and form, the villa offers an immersive spatial experience akin to viewing Mount Fuji from within the depth of a cave.
The third villa is defined by a large curved timber roof spanning along the ridgeline of a small hill. Constructed from aligned wooden members, the roof incorporates a generous opening that frames the shifting landscape of Mount Fuji. The ground floor is designed as a communal space for dining and gathering, while the upper level provides a more intimate setting for relaxation and viewing. Under the expansive roof, families and groups share a unified space while engaging in individual moments.
Through these three distinct architectural approaches, the project constructs a sequence of experiences that engage the senses and body. It proposes an alternative environment for retreat and reflection, where architecture mediates between landscape and perception, and where time is experienced in a slower, more contemplative manner.
Project gallery
客服
消息
收藏
下载
最近





































