查看完整案例

收藏

下载
餐厅的经营以川菜为基础的融合菜系为方向,在此基础上我们尝试空间以质朴的气质为基底,同时也能呈现情绪化的特质,让体验更多变,更有趣。
▼入口
▼建筑外观
餐厅分布于三层空间之内。一层空间中承载了公共用餐区的核心功能。设计的着重点在于:如何处理开放性与私密性之间的平衡。我们在空间两侧的入口处分别设置了一段具有“游览”性质的过渡区域,通过动线自然地将外界的喧闹与用餐区隔离开来,这与用餐区也形成了第二段入口,在丰富了空间的游走体验的同时,也有效提升了用餐区的私密性与舒适度。
▼吧台
▼披萨制作区
我们强调手工感,在功能布局上,我们将吧台设置在一层的中心,集中了披萨和饮品的制作功能,作为一个视觉和功能的中心点辐射至一层的用餐区,现场开放的餐饮制作的感官体验,即形成了与用餐区的交互性,同时这种互动形成的情绪也与空间材质的手工感相契合。
▼“游览”性质的过渡区域
▼用餐区
二三层空间以包间为主,我们设置了不同的包间场景,以满足小型party,家庭聚餐,商务宴请的接待需求。在向上的动线和二三层进入包间的过渡区域,我们延续了一层空间的展览性,为整体的用餐情景提供可停留可互动的场地。
▼包间
▼楼梯
在组织空间色彩和材质的过程中,我们尝试在色彩和材质上都能融合一部分的情绪化的特质。为此,在大面积低饱和度的材质的基础上,我们让局部的色彩提亮,以打破空间稍显沉静的体验。围绕这个出发点,色彩的对比,空间材料的质感对比始终贯穿在一至三层的空间当中,希望在温和的气氛里,也能有一点点的出其不意。
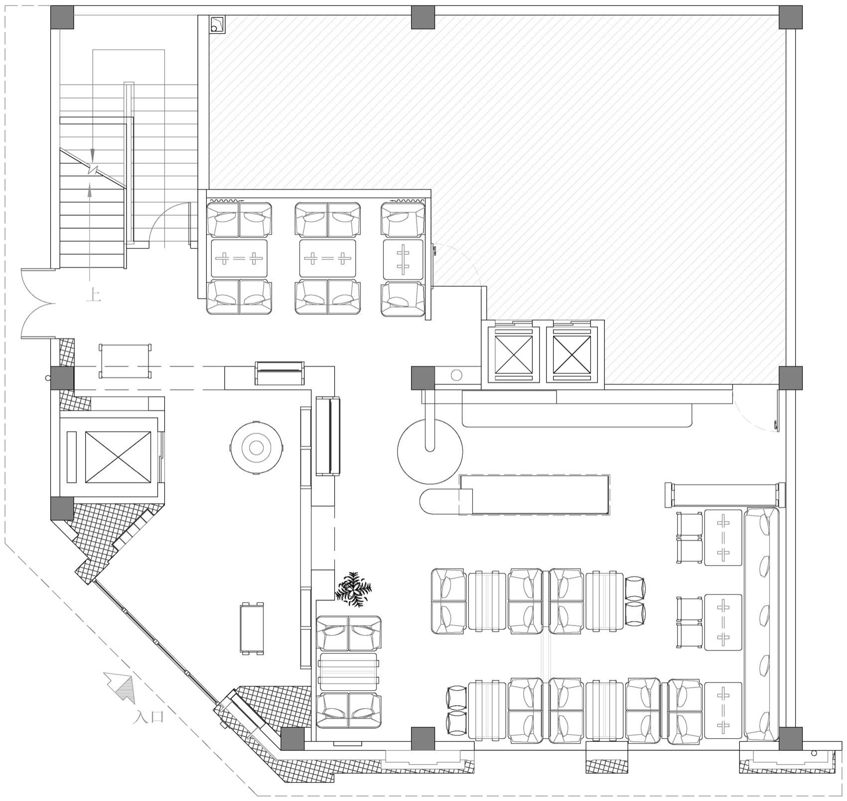
▼首层平面图
▼二层平面图
▼三层平面图
项目名称:微小辛
项目类型:餐厅
设计方:CeeSee此西设计
项目设计:CeeSee此西设计
完成年份:2026
设计团队:CeeSee此西设计
项目地址:商丘市
建筑面积:690㎡
摄影版权:拿捏空间
空间氛围营造很棒,功能与美学很好的兼顾到了,
整体设计很有品味,空间布局流畅,色彩与材质搭配和谐,灯光氛围营造得恰到好处,细节处理非常用心,既实用又美观!
客服
消息
收藏
下载
最近


































