查看完整案例

收藏

下载
该项目被构想为对圣塞巴斯蒂安壮丽自然与城市景观的建筑性延伸,占地9,000平方米的“美食开放生态系统”(GOe)为巴斯克烹饪中心打造,将科学、美食、创业与自然相连接,推动美食创新的艺术与科学发展。
Conceived as an architectural extension of the dramatic landscape and cityscape of San Sebastian, the 9,000-m2 Gastronomy Open Ecosystem (GOe) for the Basque Culinary Center bridges science, gastronomy, entrepreneurship, and nature to advance the art and science of gastronomic innovation.
▼项目与场地鸟瞰,Aerial view of the project and site © Francisco Tirado
▼分析图,Analysis diagram © Francisco Tirado
▼鸟瞰,Bird’s-eye view © Francisco Tirado
▼顶视图,Top view © Francisco Tirado
▼由道路看建筑,View of the building from the road © Francisco Tirado
▼自然与城市景观的建筑性延伸,Architectural extension of the natural and urban landscape © Francisco Tirado
▼外观,Exterior view © Francisco Tirado
▼外观,Exterior view © Francisco Tirado
▼景观设计细部,Landscape design detail © Francisco Tirado
作为一所具有开创性的美食机构,巴斯克烹饪中心于2021年发起这一全新食品创新枢纽的国际设计竞赛,旨在将食品初创企业、研究人员与厨师汇聚于同一屋檐之下。
The Basque Culinary Center, a pioneering gastronomic institution, launched the international design competition for the new food innovation hub in 2021 with the mission to bring food start-ups, researchers, and chefs under one roof.
▼与座位结合的大台阶,Grand staircase integrated with seating © Francisco Tirado
▼公共空间,Public space © Francisco Tirado
▼公共厨房,Public kitchen © Francisco Tirado
▼卫生间,Bathroom © Francisco Tirado
▼总平面图,Master plan © Francisco Tirado
▼一层平面图,Ground floor plan © Francisco Tirado
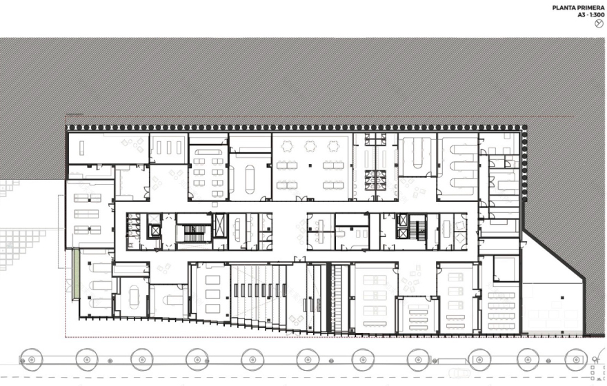
▼二层平面图,First floor plan © Francisco Tirado
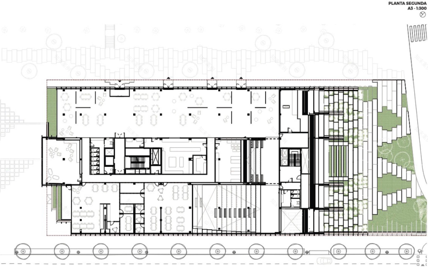
▼三层平面图,Second floor plan © Francisco Tirado
▼四层平面图,Third floor plan © Francisco Tirado
▼透视剖面图,Perspective sections © Francisco Tirado
Gastronomy Open Ecosystem
SAN SEBASTIAN, SPAIN
2025
CLIENT
BASQUE CULINARY
CENTER
TYPOLOGY
EDUCATION
SIZE M2/FT2
9,090 / 97,843
STATUS
COMPLETED
客服
消息
收藏
下载
最近





























