查看完整案例

收藏

下载
CA Esports Grand Arena 是一个集赛事、观演、展示、社交与日常运营于一体的复合型电竞赛事中心。项目以“沉浸体验”为核心,将空间组织为一段连续的感知过程,使观众在进入、穿行与停留之间,逐步完成从现实到虚拟、从观看到参与的转换。设计从动线与空间界面出发,通过灯光、材质、结构装置与氛围的递进,构建出兼具效率与张力的场所。空间不仅承载比赛,也成为青年文化与集体情绪被持续聚集与放大的载体。
▽外场活动区
▽酒吧区域
设计概念|现实裂缝中的异世界剧场
对当代青年而言,电竞早已超越单纯的竞技行为,更接近一种短暂脱离现实的入口。在人群、声场、光影与对抗构成的高强度氛围中,个体从日常压力中抽离,进入更专注的状态。基于这一理解,项目将电竞空间转化为一段连续展开的体验。CA Esports Grand Arena 被构想为嵌入现实建筑内部的一座“异世界剧场”,在既有秩序中打开一道缝隙,使人从进入空间开始,逐步脱离现实,进入由光、界面与能量构成的场域。空间围绕一条递进式动线展开:入口建立界面感,长廊完成过渡,外场积蓄情绪,内场推向高潮。人的移动,不只是功能切换,更是一段感知的深入过程。
▽模型
空间分区说明
1. 入口与前序空间|进入异世界的界面
长廊被塑造成一条被“数据流”包裹的通道。连续灯带强化方向与速度感,不锈钢界面的模糊反射削弱边界,使现实逐渐松动。尽端的混凝土装置以微弱的“呼吸灯”建立悬念,像尚未显现的能量信号,引导观众继续向内,完成第一次感知转换。
▽入口与前序空间
▽入口与前序空间细部
2. 外场活动区|碎片化的虚拟广场
外场展开为一个开放而碎片化的场域。几何界面与投影 Mapping 呈现数据被打散、重组与加载的状态,仿佛虚拟世界正在生成。铝拉网与灯带使光线在界面间渗透与漫射,增强空间层次与轻盈感。这里承载互动与社交,也为进入核心空间完成情绪铺垫。
▽外场活动区
▽碎片化的虚拟广场
3. 内场赛事空间|虚拟竞技的核心剧场
进入内场后,氛围迅速提升。向下倾斜的 N 型装置以强烈姿态介入空间,通过压迫与失衡制造近似“重力反转”的体验。尺度与秩序在此被重新扰动,主舞台成为一个情绪被聚集与放大的核心场域。
▽内场赛事空间
▽内场赛事空间
▽内场赛事空间细部
4. 酒吧区域|悬浮补给舱
酒吧作为赛事系统中的一个节点,更像高强度节奏中的“补给舱”,承接等待、停留与交流,并缓冲赛事情绪。空间延续工业与未来语汇:混凝土、金属网与冷色光源构成具有机械感的场域。中央悬浮发光体量成为核心,既像能量装置,也像系统模块。围绕其展开的吧台与座席,使观看、社交与停留形成连续体验。
▽悬浮补给舱
▽酒吧区域
▽酒吧区域细部
5. 离场体验|从梦境退回现实
项目同样关注离场过程。随着光线收敛与声场回落,使用者从高密度状态中逐渐抽离,回归现实。空间由此形成完整闭环:进入、沉浸、对抗、回归,并在离开后保留清晰的感知记忆。
▽外场活动区
结语
项目所探讨的,不只是电竞空间的视觉表达,更是空间如何回应当代青年的情绪需求。通过叙事化动线,比赛、观看与社交被整合为连续体验,使建筑从容器转变为触发与放大感知的媒介。
▽轴测图
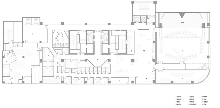
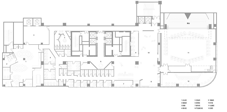
▽平面图
▽剖面图
项目名称:CA赛事中心
项目类型:室内设计
设计方:直现建筑
项目设计:2025
完成年份:2026
设计团队:徐倩倩,方卓欣,尹秀璟,吴布唯
项目地址:成都市成华区一环路东一段65号
建筑面积:2000㎡
摄影版权:存在建筑
合作方:四川中南建工程技术有限公司(施工方)
客户:CA电竞
材料:不锈钢, 铝拉网,清混涂料
客服
消息
收藏
下载
最近

































