查看完整案例

收藏

下载

翻译
Architects:unseenbird
Area:5965m²
Year:2026
Photographs:Lee Pyojoon
Lead Architects:Bioh Seon
Category:Offices Interiors
Design Team:Jieun Ko, Yonghyeon Kim, SeungYeon Jeong
Engineering & Consulting > Mep:BOWOO Engineering
City:Seongnam-si
Country:South Korea
Text description provided by the architects. Societal changes are influencing the composition of offices as well. Woowa Brothers, rapidly adapting to the times, is creating a new future by combining technology with the relationship between nature and people. This attitude is reflected in the office space, leading to a direction that pursues flexible and nature-friendly environments.
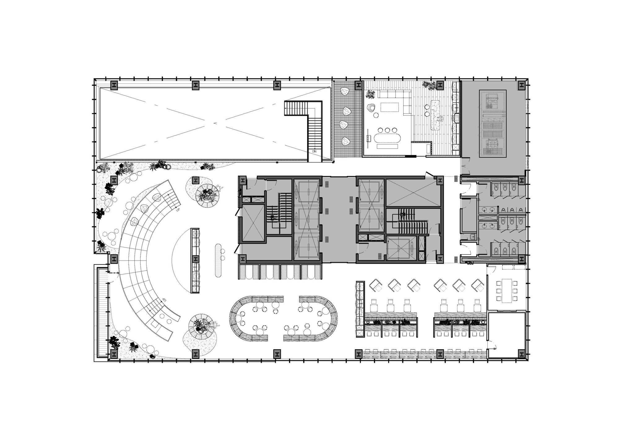
A space called the 'wellside,' where employees freely gather to converse and build bonds, has already been the center of the organizational culture, and the Pangyo office building was also designed based on this concept. Wellsides are strategically placed on each floor to facilitate communication among employees.
The Tech Course Academy is also operated here. As the company's influence grows, this program fosters IT talent free of charge as part of its social contribution activities. Designed as an open and free space that incorporates Woowa Brothers' work style to allow students to learn the importance of collaboration from the very beginning of the learning process, the academy is designed to be a valuable resource. A very tall tower-shaped library stands in one corner, serving as a symbol of knowledge accumulating layer by layer.
The office building is situated in a location that receives ample sunlight. The design incorporates plenty of vegetation between structures and open spaces to create a sense of being immersed in nature for users. By actively incorporating nature, they created a pleasant environment capable of relieving stress and boosting work efficiency.
While utilizing red brick—the primary material of Woowa Brothers' spaces—along with landscaping, the use of stainless steel brought a futuristic feel. New finishing materials were also produced here. Given the delivery business, which is inextricably linked to plastic production, crushed plastic was mixed with pea gravel to create auditorium paving stones. Beyond a simple workspace, Woowa Brothers' office is the result of an environment where people, nature, and technology are organically connected, establishing a new direction for the office landscape in a changing era.
Project gallery
客服
消息
收藏
下载
最近





































