查看完整案例

收藏

下载
在东方美学中,延续空间的基调。将东方艺术注入当代设计,用创新的手法融合中式设计与现代生活,展现东方情怀。从简单到复杂,然后又从复杂中剥离出来,最后产生当代极致东方美学。
客餐厅以 “墨痕竹影” 为设计内核,延续宋式美学的简素风骨。金箔手绘竹叶屏风划破空间沉闷,天然实木、细腻皮革与手工金属的肌理碰撞,白、灰褐、米色等自然色调,与窗外庭院绿意遥相呼应。
案几陈列雅致器皿,空间线条疏朗却藏巧思,既适配商务接待的庄重气场,又兼容家庭欢聚的温馨氛围。在这里,东方情怀不是刻意复刻,而是于光影流转间,自然流露的文人雅趣与生活本真。
纱幔滤过的光轻覆器物,竹纹隐于金箔,茶器与玉马静立,风过似携墨香,闲适里浸着东方雅奢的静穆温煦。
用餐空间,织锦桌旗点缀温润餐桌,非遗漆器与花艺相映成趣,呼应宋代 “插花” 雅事的仪式感。灯光柔和,食材的鲜香与器物在此雅致碰撞。亲友围坐时,既有人间烟火的暖意,又有文人雅集的格调。
食序时光,雅致里浸着烟火的温煦,每一餐都是极致东方诗意。
这是专为长辈打造的休憩空间,将适老化设计藏于无形。温润木质家具带来自然触感,柔和色调舒缓心绪,充足采光让房间暖意融融,推窗即可瞥见庭院景致。
陈设暗含长辈对传统文化的钟情。没有过度装饰,唯有松弛舒适的氛围,让晚年生活在静谧与陪伴中,尽显岁月静好。
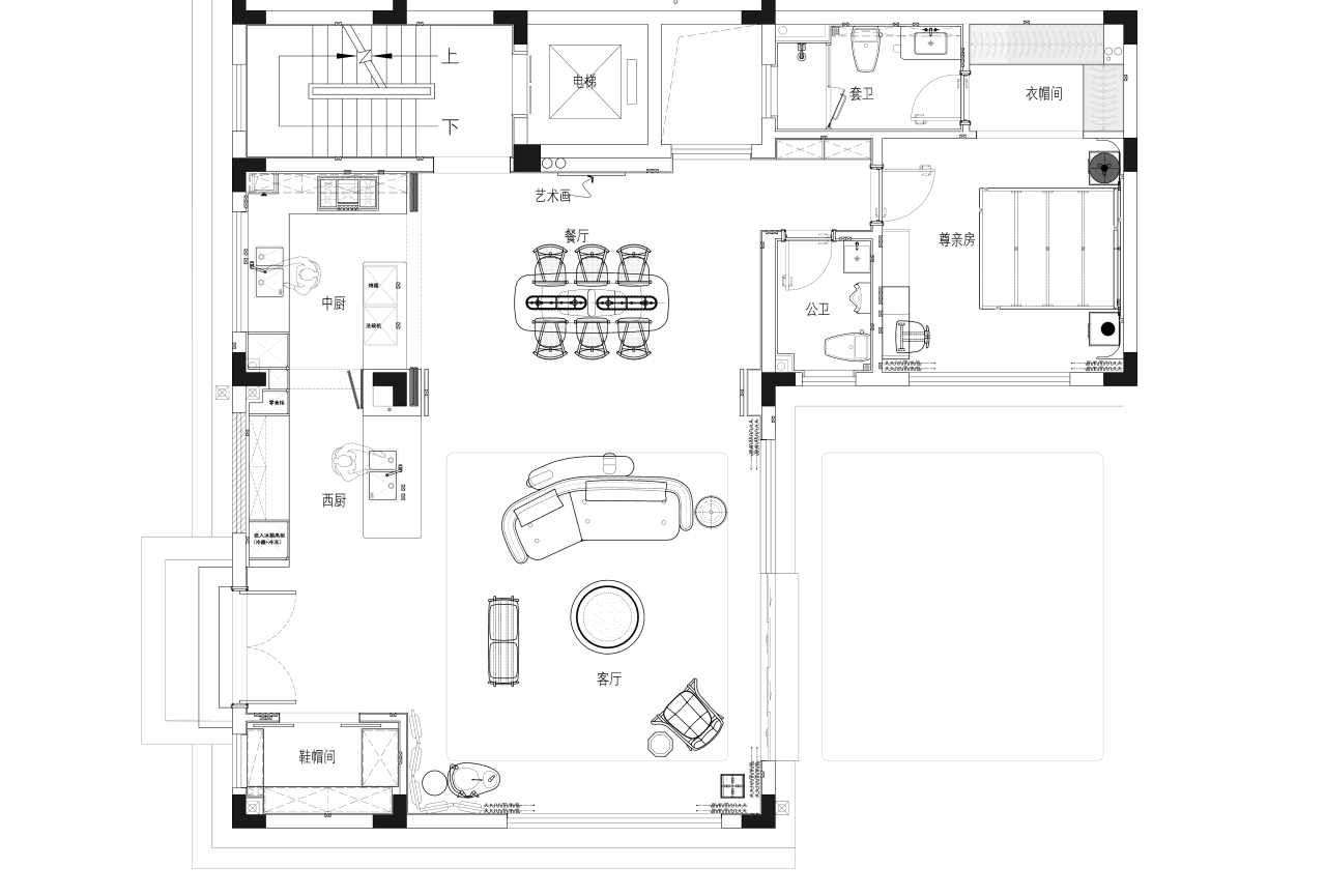
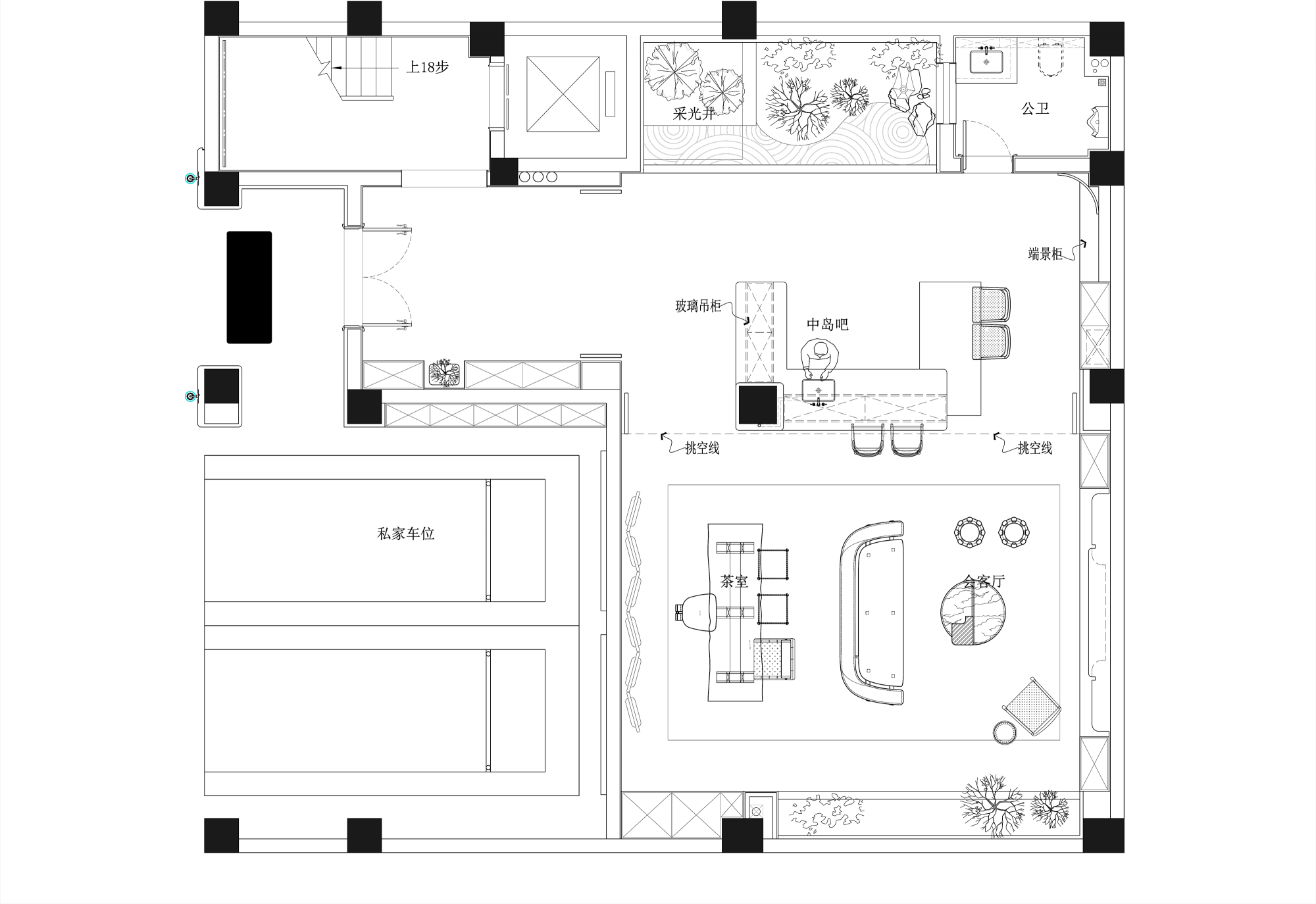
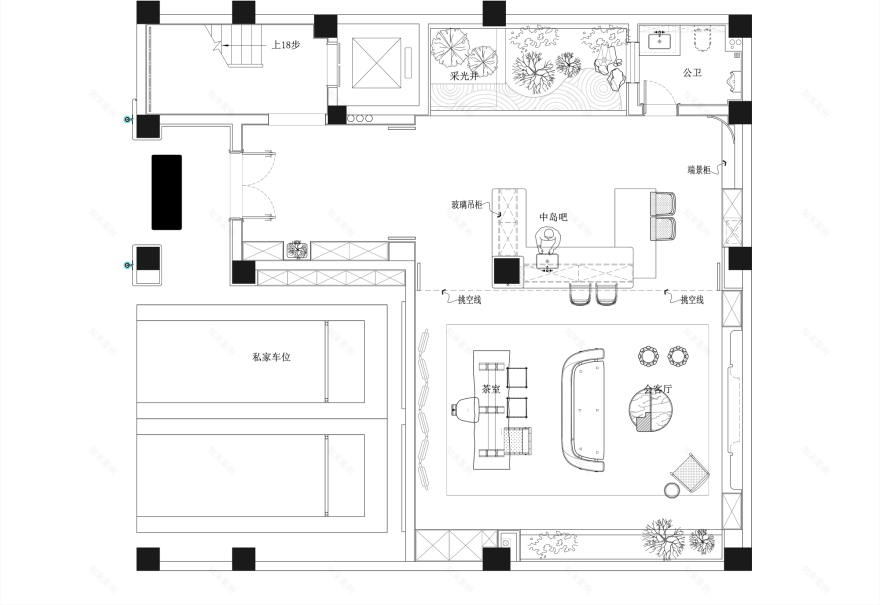
别墅1F平面布置图
以「中式美学」为基底,铺就一方隐于都市的静隅。床头背景取宋画淡墨质感,揉合宋式窗棂的雅致轮廓,虚实间晕开层次。
巨幅窗景引城市天光入室,动静相融间,让居住不止于休憩,更是身心与东方美学的温柔修行。
墙身石材晕染开青绿山水的肌理,似宋画淡墨晕染的烟岚。以自然为序,铺展私享的松弛场域。
书房汲取在地元素,将宋式雅韵与现代实用主义相融。书架上,古籍、篆刻藏品与地理书籍错落陈列,桌面文房四宝齐备,灯光精准聚焦书页,营造静谧专注的阅读氛围。
空间既是办公研学的静谧角落,也是感悟传统文化的精神领地,笔墨书香间,既承载着家族的文脉传承,也安放着主人对知识的渴求与思考。
男孩房以宋代汝窑的天青、月白为底色,既有宋式美学 “简而不寡” 的内核,也适配少年空间的轻盈。墙面肌理布晕染汝窑釉般的柔和质感,床头软包取汝窑青瓷的清雅色调,床头柜渐变色暗合宋器的釉色层次。
简约线条藏着舒适尺度,汝窑色系的淡雅里裹着日常松弛,让宋式美学的文人质感,化作男孩房里的温柔日常。
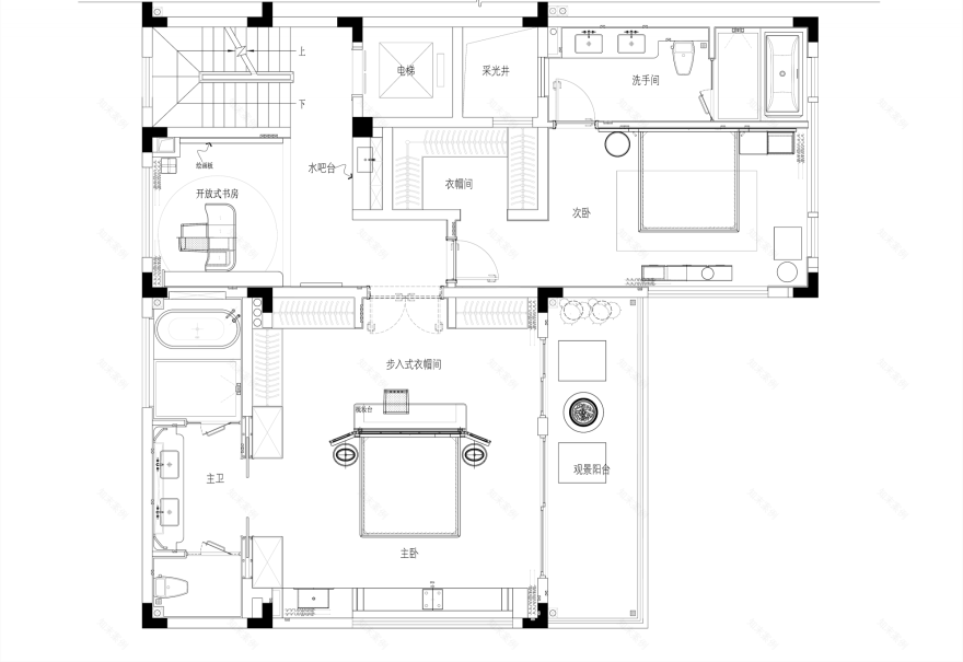
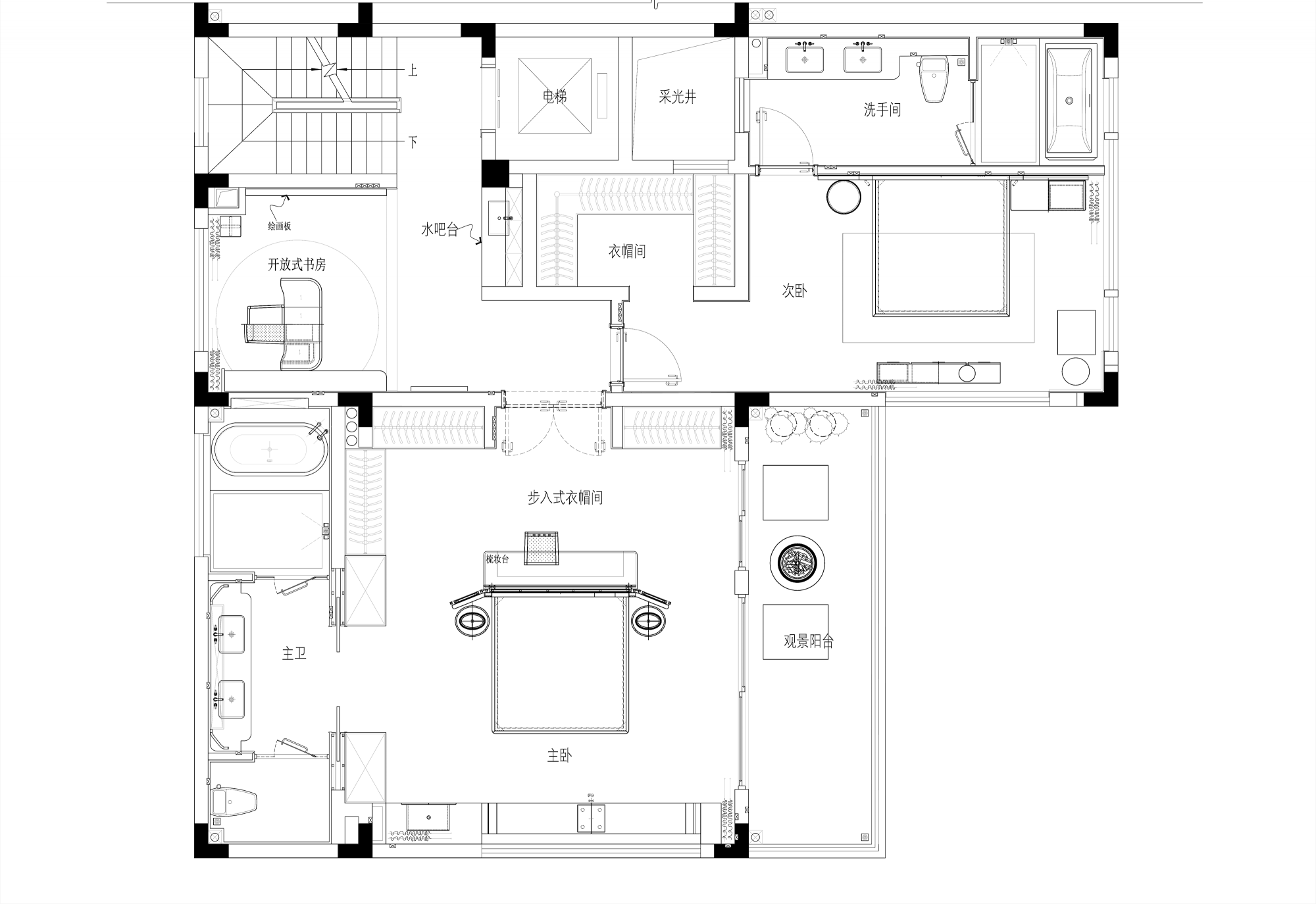
别墅2F平面布置图
会客厅延续宋式雅事主题,传统元素贯穿空间。原木茶桌搭配 LIAIGRE 品牌家具,线条简约优雅,墙面自然石材似山水画作,自然质朴。
会客区沙发质感温润,器皿、陶艺陈设传递雅致格调,是以茶会友、畅谈天地的理想场所。
会客厅搭配非遗漆器家具,取传统髹漆工艺的肌理之美,鼓凳裹缠丝纹大漆,黑褐与金棕晕染出自然纹理,是手作温度的具象载体。
茶室是主人内心的静谧一隅。原木茶桌搭配简约茶具,墙面点缀丝竹文化挂饰,移石植绿造景,还原山水悠然之境。
空间在极简中剥离繁复,让身心于喧嚣中归于平静,尽显东方生活的松弛与雅致。
别墅-1F层平面布置图
起居室是专为非遗制香师打造的创作天地,空间布局通透有序,预留制香、插花的专属操作台面,收纳区整齐陈列香材、工具与成品。
柔和色调与静谧灯光聚焦创作区,丝竹、织锦元素点缀其间,让女主人在专注手工创作时,沉浸于传统文化的熏陶。
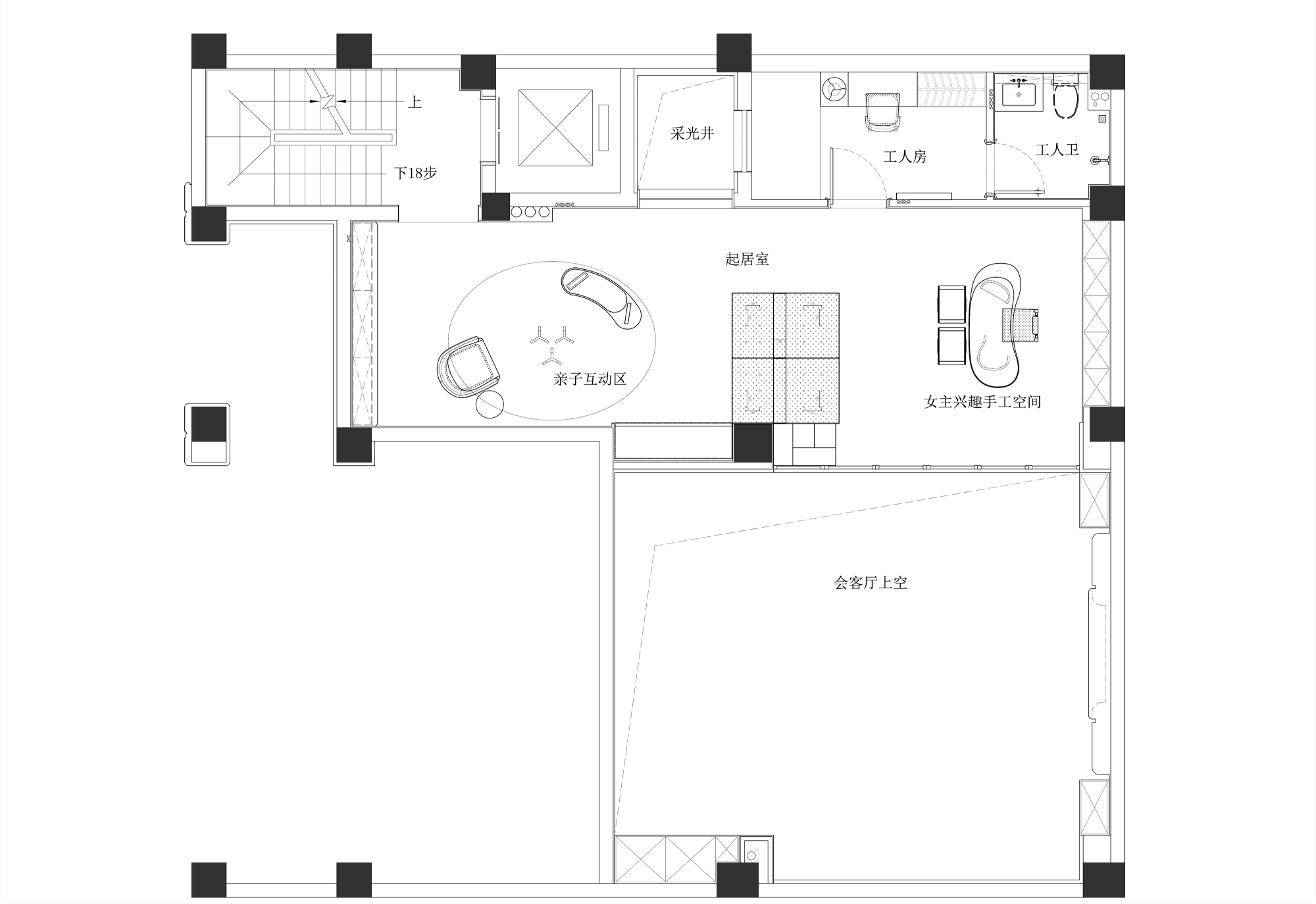
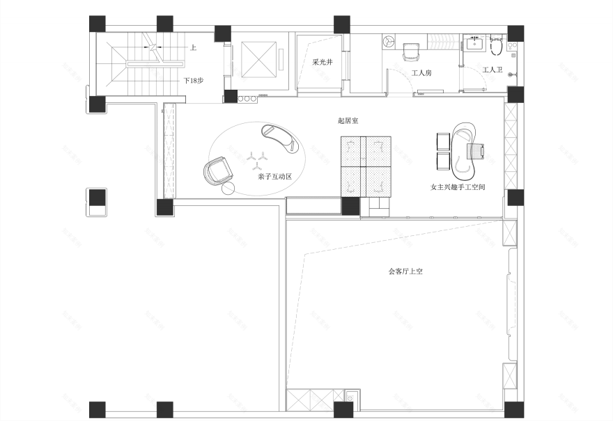
别墅-1F夹层平面布置图
瑜伽室依托开阔视野打造的多功能空间,自然绿与柔和色调为主,采光井引入充足自然光。瑜伽区铺陈柔软垫材,冥想区搭配音钵疗愈元素,呼吸间感受身心放松。
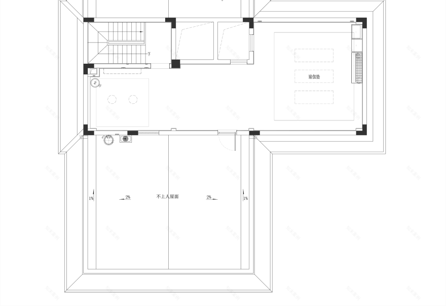
别墅3F平面布置图
售楼部以 “山水韵峡江诗境” 为设计核心,海派轻奢风格兼具优雅质感与人文温度。酒店式双入户大堂开启尊崇礼遇,抽象水墨艺术墙与水波纹石材地面呼应宜昌 “峡江门户” 地貌,线性灯光勾勒出 “山水倒影” 的沉浸感。
空间简洁大气,清晰中轴线锚定空间秩序:沙盘居于正中,两侧陈设对称铺展。天窗引天光轻覆,肌理墙面与通透石地衬出质感,利落线条裹着雅致细节,既显布局的规整韵律,又让展示空间在开阔里浸着轻奢格调。
水吧区,绿纹大理石吧台衬着竖纹墙面的柔润肌理,几何地砖晕开雅致韵律;酒架瓶身裹着暖光,漫出琥珀色泽。
洽谈区,马赛克艺术装饰晕开肌理层次,定制灯具漫出暖光裹住空间。桌间花艺缀着雅致,窗外景致轻透而入,静谧氛围浸满每处细节,让沟通在松弛的格调里自然舒展,尽显空间的舒适与质感。
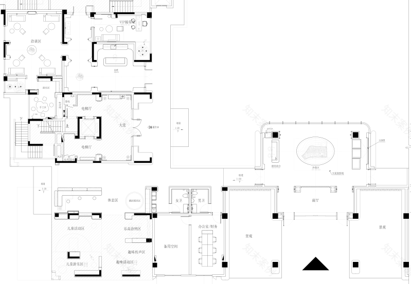
售楼部平面布置图
186户型样板间以 “雅奢” 为基调,立足高端圈层的生活需求,将传统家庭观念与前沿生活方式巧妙融合。整体空间在克制中演绎非凡,既满足高端圈层对品质的严苛要求,又承载着家庭生活的温暖与诗意,诠释了高端人居的真正内涵。
客餐厅作为核心社交场域,金属与大理石材质彰显大气尊贵,红色肌理点缀丰富层次,水晶灯体与实木家具相映成趣。
墙面悬挂艺术画作,陈设旅行纪念品、纂刻藏品与在地非遗物件,让空间兼具社交属性与艺术氛围 —— 无论是家庭欢聚的温馨时光,还是名流小聚的格调派对,都能从容承载。
茶室借巨幅落地窗揽城景与森意入怀,墙面覆绿植肌理壁纸,晕开自然静意。大理石茶桌衬着黑釉花器、雅韵茶器,花苞形吊灯柔化光线,绒面凳与皮质椅错落出舒适尺度。
卧室区域聚焦私密与舒适,主卧以Bottega Veneta编织美学为灵感,编织纹样床屏、璀璨衣帽间,在奢华质感与温馨氛围间找到完美平衡。
尊亲房适配长辈需求,适老化设计暗藏细节,织布、剪报元素融入空间,色调温润松弛,尽显对晚年生活的关怀。
女孩房融入艺术绘画与手工创作区,蝶椅点缀其间,浪漫灵动,契合当代艺术系学生的审美追求。
186m²户型平面布置图
项目信息
项目名称 | 宜昌·西城云著
甲方团队 | 宜昌市顺开房地产开发有限公司
室内设计 | 深圳市蜜尔室内艺术设计有限公司
陈设设计 | 深圳市蜜尔室内艺术设计有限公司
设计面积 | 508m² / 243m² / 186m²
客服
消息
收藏
下载
最近








































































