查看完整案例

收藏

下载
项目坐落于重庆北碚区蔡家核心板块,坐拥绕城高速、中环快速干道等便捷交通,毗邻教育、生活全维配套,背倚江景与生态绿地,在城市发展高地勾勒出生态宜居的设计基底。
从《瓦尔登湖》的自然哲思中汲取设计灵感,以 “适度先锋”“自然多元”“艺术矛盾性” 为核心,打破室内外边界,将自然移景入室,用艺术笔触赋予空间温度与个性,打造差异化的先锋生活场景。
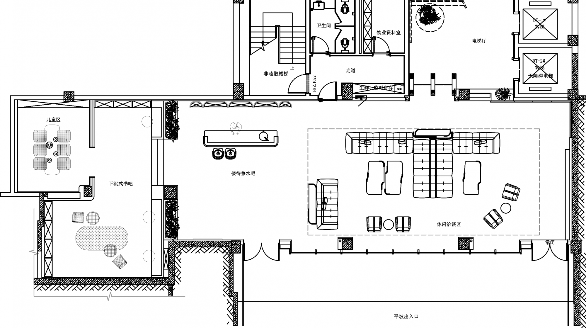
休闲等候区:不对称青铜底座搭配矿物台面的茶几,尽显复古韵味与现代功能性的平衡。壁灯的柔和光线透过罗马帘的肌理洒落,与挂饰作品中 “花开花落的时间循环” 形成呼应,让城市时间与自然节律在此交织。
软装材质选用细腻织物与金属肌理碰撞,浅色调为主的搭配辅以局部亮色点缀,既延续了空间的雅致基调,又通过触感与视觉的层次变化,营造出松弛自在的洽谈氛围,让等候成为一种享受。
休闲水吧区以 “温度与尺度” 为设计关键词,延续整体的艺术调性。金属质感的水吧台面搭配柔和的壁灯光线,折射出精致的生活气息。
这里既是洽谈间隙的补给站,也是社交场景的延伸,软装细节上融入海派风情的线条与国际化的简约设计,在喧嚣城市中构建出一隅舒适惬意的社交角落。
下沉式书吧以 “人文主义” 为核心,金属框架与玻璃的通透材质,搭配嵌入式灯光设计,让光线温柔包裹阅读场景。顶部金属结构与贝壳纹理的细节呼应,在灯光照射下呈现出明暗交织的层次感。
软装搭配以简约舒适的座椅为主,辅以绿植点缀,营造出静谧专注的阅读氛围。
电梯厅与大堂作为空间的过渡节点,以 “尊贵感与精致感” 为设计重点。定制壁灯的光线柔和温润,铜与石材的局部运用,延续了整体的艺术调性。
负层与首层大堂以艺术挂饰为核心亮点,作品陈列将时间与空间的哲思融入其中。纵向缝线的软装细节与灯光设计相配合,勾勒出空间的层次感与纵深感。
入园大堂2F的休憩园林,是藏在建筑里的空中绿洲。是衔接日常与松弛的过渡,抬眼是建筑肌理,低眉是满目生机,偷闲半刻
玄关电梯厅以 “实用美学” 为设计核心,定制柜体收纳男主的居家健身用品,兼顾功能性与整洁度。
客厅以大理石背景墙搭配柔软舒适的沙发,青铜质感的装饰细节点缀其间。暖调灯光与自然光线交织,营造出松弛自在的家庭氛围。软装搭配颜值与实用性并存,既满足日常休闲需求,又通过差异化的设计表达,彰显居住者的独特品味。
餐厅的设计围绕 “分享与收藏” 展开,墙面置物架陈列女主旅行淘来的特色物件,与空间的人文旅行主题呼应。
餐桌选用质感温润的材质,搭配简约餐椅,灯光柔和聚焦于桌面,营造出温馨的用餐氛围。材质上延续整体的自然与艺术感,让每一次家庭聚餐都成为一场关于生活与记忆的分享。
景观阳台打造 “早 C 晚 A” 的多元生活场景。绿植与休闲座椅相映成趣,为空间注入自然生机。
软装选用防水耐晒的面料,搭配简约的金属框架家具,既满足户外休闲的实用性,通过色彩与材质的搭配,让阳台成为晨起喝咖啡、夜晚小酌的惬意角落,实现城市与自然的共生。
晨光轻洒时,咖香缠绕绿植,于休闲座椅间开启活力满格的仪式感日常;暮色浸染后,酒韵随晚风弥漫,在星空下的吧台旁晕开微醺的松弛步调。
主卧选用意大利 Rugiano 设计的家具,大理石台面床头柜搭配 varnished 青铜金属底座,兼具质感与轻盈感。细节上融入艺术线条与材质肌理,既彰显品质感,又通过暖调氛围的营造,让卧室成为卸下疲惫的温馨港湾。
衣帽间以材质质感与布局巧思,将衣物陈列化作艺术展陈,专属化妆台更让每一次穿搭整理,成为质感空间里的优雅仪式。
儿童房以 “Little Artist” 为设计主题,墙纸选用柔和的色彩与童趣图案,搭配可收纳的床品设计,预留成长空间。软装搭配兼顾安全性与趣味性,圆润的家具边角与色彩明快的装饰,激发孩子的创作灵感。
客房延续整体的精致调性,以简约高端的软装搭配为主,大理石与青铜材质的床头柜彰显品质感。空间设计兼顾实用性与美学表达,既满足待客需求,又与整体空间的艺术氛围保持一致。
项目信息
项目名称 | 重庆·绿城春风晴翠
甲方团队 | 赵丹诗、毛仲泽
室内设计 | 重庆米修室内设计有限公司
陈设设计 | 深圳市蜜尔室内艺术设计有限公司
设计面积 | 入园大堂 332m² / 样板间 127m²
客服
消息
收藏
下载
最近














































