查看完整案例

收藏

下载

翻译
Architects:Ximenes Leite Arquitetura
Area:520m²
Year:2024
Photographs:Wilson Dorigon
Lead Architects:André Leite, Bruna Ximenes
Category:Residential Architecture,Houses
Coordination:Beatriz Rodrigues
Project Team:Bianca Rodrigues, Bruno Camargo, Jessica Oliveira
General Construction:Sigla Engenharia e Construções
Project Management:Tools Gerenciamento e Engenharia
City:São Paulo
Country:Brazil
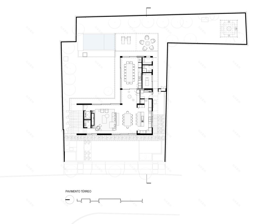
Text description provided by the architects. Located in São Paulo, the residence, with approximately 520 m² of built area, is organized into three levels and proposes a contemporary interpretation marked by the overlapping of volumes and the careful control of openings.
The layout follows a clear logic of occupying the lot, where the architecture presents itself in a precise and well-defined manner. The presence of existing trees does not directly dictate the architectural approach; however, their presence on the facade adds aesthetic value to the ensemble, establishing an interesting relationship between the built and the natural. The trunks and canopies frame the building, creating a visual play that enhances the perception of the volume from the street.
The volumetric composition highlights a hierarchy among the floors. The upper level stands out as a lighter element, surrounded by a system of vertical brises that adds rhythm, depth, and movement to the facade. This closure also acts as a filter for light and privacy while reinforcing the project's identity. The use of brown in this upper volume contributes to its independent reading, distinguishing it from the rest of the building.
The lower levels assume a more solid and continuous character, functioning as a base for the upper volume. This strategy reinforces the horizontal aspect of the ensemble and balances the composition, creating a contrast between mass and lightness, opacity and transparency.
The project results in an architecture of sober and well-resolved language, where formal clarity and materiality engage with the immediate surroundings, highlighting a balanced relationship between the built presence and the existing natural elements.
Project gallery
客服
消息
收藏
下载
最近






























