查看完整案例

收藏

下载

翻译
Architects:SAW // Spiegel Aihara Workshop
Area:724m²
Year:2024
Photographs:Joe Fletcher
Manufacturers:Fisher & Paykel,Arborica,Brizo,Emtek,Fleetwood,Henrybuilt,Kalesnikoff,Lambert & fils,RBW,Ravenhill Studio,SC Custom Woodworks Inc.
Concrete Contractor:Palo Alto Concrete
Landscape Contractor:JG Universal, Jose Gonzalez
Civil Engineer:Lea & Braze
structural Engineer:Daedalus Structural Engineering
Geotechnical Engineer:Romig Engineering
Category:Houses,Sustainability
Design Team:Dan Spiegel, Megumi Aihara, Adam Strobel, Namhi Kwun, Jeremy Ferguson, Jonah Merris, Dustin Stephens, Sharon Ling, Avery Sell
General Contractor:James Yu
Lot Area:3.1 acres (1,25 hectares)
Number Of Rooms/Units:2 stories over a basement
Guest House Area:1,194 square feet (111 square meters) - 1 story
General Contractor :Interspace
City:Portola Valley
Country:United States
Text description provided by the architects. A Site of Dramatic BeautySet atop a 3.1-acre site in Portola Valley, a scenic, northern-California town strewn across rolling hillsides, panoramic views unfurl across the adjacent Stanford University campus to the San Francisco Bay. Moksha reveals itself gradually through the landscape, culminating in a sculpted composition of expressive material forms. The landscape and architecture balance presence and restraint, a study in enduring figures shaped by light and time.
A Personal JourneyMoksha was designed by Dan Spiegel and Megumi Aihara of SAW for their close friends and longtime clients, Aruna and Sanjiv Gambhir. Over the course of more than a decade, they collaborated on multiple projects, growing close as families. This house in Portola Valley was their most personal and ambitious collaboration — one intended to provide space for reflection, continuity, and resilience after the loss of Aruna and Sanjiv's teenage son Milan to cancer in 2015.
The project progressed slowly through complex permitting and approval processes. Tragically, during this time both Sanjiv and Aruna were diagnosed with cancer and passed away before the home was completed. Aruna, resolute and deeply committed, saw the project as a continuation of her family's story, and pressed forward even in the face of profound personal loss. The name "Moksha," suggested by Aruna, refers to a release from the unbound cycle of life and death, offering a fitting reflection of the house's emotional and spiritual foundation.
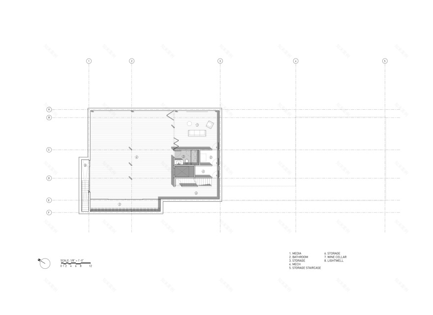
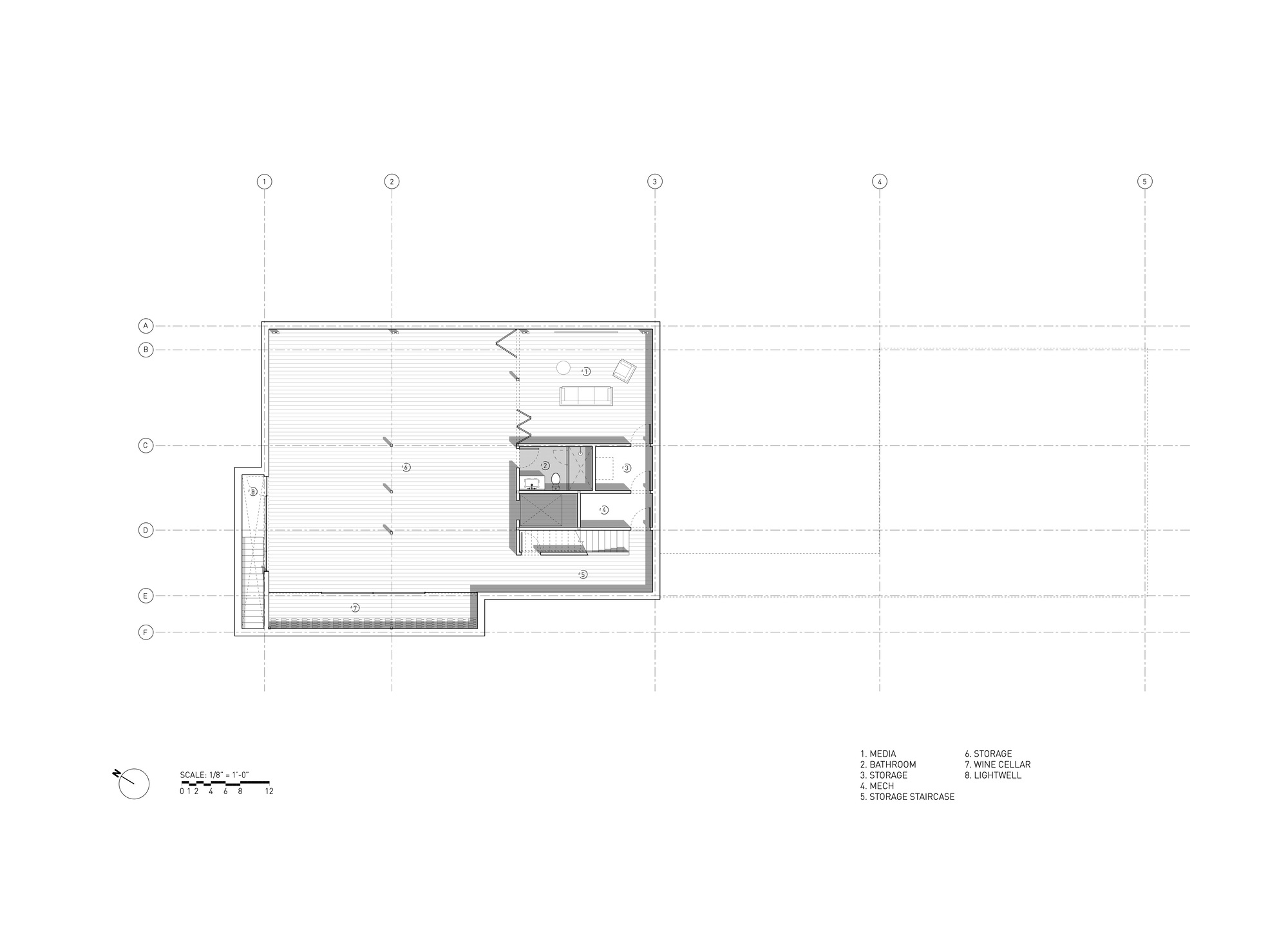
Architectural CompositionCompleted in Spring 2025, Moksha consists of a main house (7,797 square feet) and a guest house (1,194 square feet), both integrated into the sloping topography. The main house is largely concealed upon arrival, gradually unveiling itself as visitors descend into the site. Orthogonal geometries are gently rotated to carve out views, form courtyards, and offer shifting encounters with light and landscape.
Concrete anchors the ground floor, shaped by custom sawtooth board formwork that casts soft shadows throughout the day. The concrete mix includes a high fly-ash content to reduce its carbon footprint while enhancing thermal mass and fire resistance. The architects anticipated how materials would evolve: the concrete softens with exposure, its surface gradually revealing the passage of time.
Above, the structure is clad in reclaimed old-growth redwood from wildfire and landslide-felled trees. As it weathers, the wood silvers with a luminous sheen, deepening the connection to the site's material history. Redwood siding from the previous house — too damaged to be reused in full — was carefully repurposed. These reclaimed elements contribute to the warmth of the building and reinforce a powerful narrative of regeneration.
Custom-milled, salvaged blue-gum eucalyptus floors add uncanny sheen, warmth, and durability underfoot. Another material choice that embodies the architects' intention for the house to age with grace, reduced maintenance, and evolving character.
Material Integrity and SustainabilitySustainability was integral to the design. Solar panels — both thermal and photovoltaic — generate energy. Radiant floors combined with fan coils and heat pumps enable climate control across zones, while thermal mass helps stabilize temperature.
Materials were chosen not just for durability, but for their ability to weather gracefully, taking on the characteristics of their context. Old redwood was repurposed from the site's previous house. Custom milled eucalyptus flooring shimmers with a deep, warm grain. Mass timber glulam (GLT) elements and steel Vierendeel trusses allow expressive spans and cantilevers, all while offering structural clarity. Native plants were introduced to thrive over time, merging architecture and landscape through the seasons.
A Home of MomentsThe home balances vast outward views with moments of stillness and enclosure: a contemplative courtyard, roof deck, and pool court provide inward focus, while the great room opens almost entirely with sliding doors to capture the valley. The primary suite on the upper floor cantilevers over the slope, hovering above the landscape with a sense of quiet elevation.
The guest house — nestled beneath an oak tree — is scaled more intimately, with a soaring interior volume that peeks through the canopy toward the Bay.
Legacy and RenewalMoksha is more than a house — it is a meditation on loss, transformation, and enduring connection. Though Aruna and Sanjiv did not live to inhabit it, the house holds their memory in every material and line of light. A new family lives there now, and proceeds from the home's sale support cancer research at Stanford, extending the Gambhirs' legacy of optimism, resilience, and care.
Project gallery
客服
消息
收藏
下载
最近





























