查看完整案例

收藏

下载

翻译
Architects:Mork-Ulnes Architects
Area:134m²
Year:2024
Photographs:Joe Fletcher
Manufacturers:Miele,Allied Maker,Bisazza,Bocci,Established & Sons,Rubio Monocoat,Vola
Consultants:Nima Construction,Berkeley Mills
Category:Houses,Refurbishment
Project Design Team:Casper Mork-Ulnes, Lexie Mork-Ulnes, Max Sanchez, Alicia Hergenroeder
Site Size:505 sq. mt.
Number Of Rooms:3 bedrooms, 2 bathrooms
City:Berkeley
Country:United States
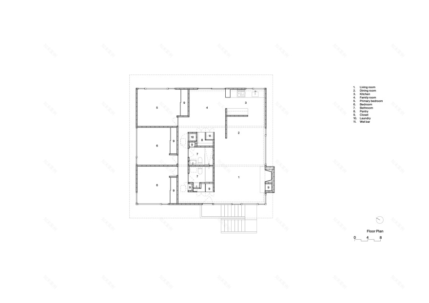
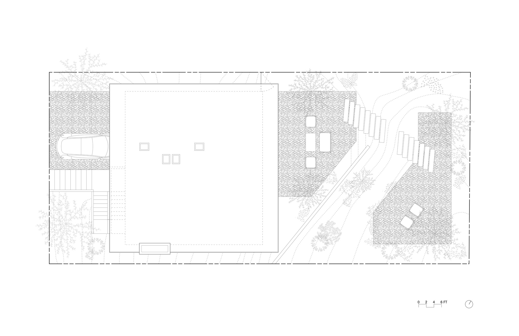
Text description provided by the architects. Mork-Ulnes Architects has just completed a restoration of a Roger Lee-designed home in the Berkeley Hills, honoring its mid-century roots while thoughtfully updating the space for modern living.
With views of the San Francisco Bay, the redesign retains signature elements such as a solid laminated 2x6" ceiling with exposed beams, celebrating the warm, natural materiality of the mahogany wood interior.
A precise intervention removed sections of original wall enclosures, enhancing the home's strong planar language while preserving its original spatial concepts. This transformation opened up the previously enclosed galley kitchen to the main living area, fostering a greater sense of connection and light.
Meticulously crafted cabinetry and veneer walls form a wood-clad core that discreetly conceals the home's functional elements. Two bathrooms buried within the wooden core surprise with vibrant red small mosaic tiles, while the kitchen, lounge, and primary bedroom are visually connected to the lush back garden, enhancing indoor-outdoor flow.
Project gallery
客服
消息
收藏
下载
最近























