查看完整案例

收藏

下载

翻译
Architects:Team Tonbo
Area:180m²
Year:2025
Manufacturers:Schüco
Category:Houses
Design Team:Ruud Visser, Fumi Hoshino
Interior Design:Rosa Jonkman
General Contractor:Het Woud hout- en timmerwerken
Engineering & Consulting > Environmental Sustainability:Peet Klimaattechniek
City:Laren
Country:The Netherlands
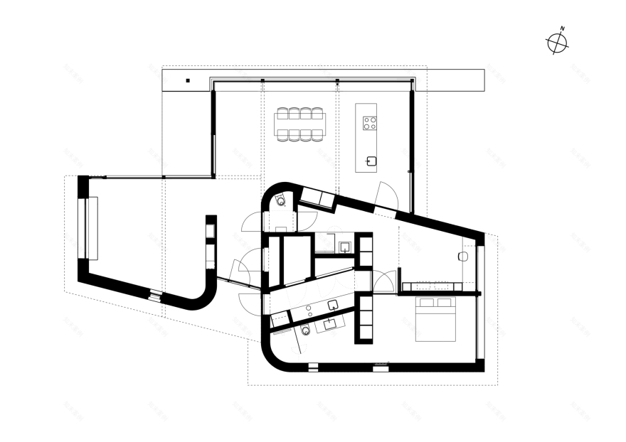
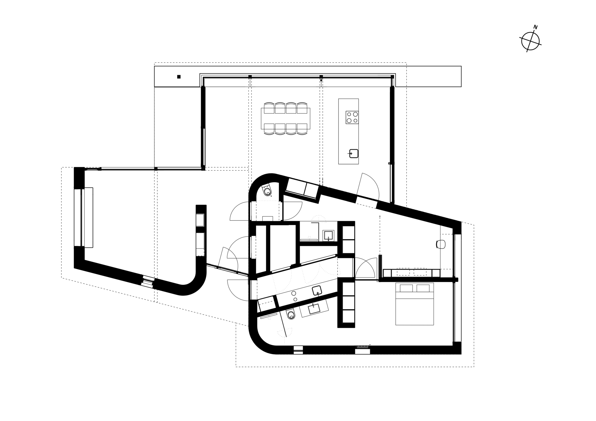
Text description provided by the architects. The starting point for the design was the site: a plot where farm sheds and stables once stood, with uninterrupted views over meadows and woodland. The clients are a couple without children and did not want a house larger than necessary. Their program consisted of three parts: living, sleeping, and eating.
The design began with three connected volumes, each with its own roof, referring to the former sheds and stables on the site. Each volume has its own material and character: a living volume in reclaimed brick, a sleeping volume in vertical timber cladding, and a volume containing the kitchen and dining area in glass.
The walls of the volumes are curved. This curvature guides movement through the house and directs views towards the landscape. At the same time, it connects the three volumes into one continuous space.
The three roofs are combined into a single folded roof that spans the entire composition. In some places, the roof extends beyond the volumes, creating spaces that are both inside and outside. The height of the roof varies and defines the spatial experience: low at the veranda and dining area (2.2 meters), and high in the living room (up to 4.7 meters at the ridge). Moving through the house results in a sequence of different spatial experiences.
All materials, colors, built-in furniture, and details were developed in close collaboration with the clients. A long cabinet in the dining area also functions as a bench and continues towards the exterior. In the living room, a window is designed to sit in and look towards the setting sun in the west.
A small round window allows views of the entrance from the bench. The toilet has two entrances. A wall light emerges from the brick wall, shaped like a constellation. These elements originate from the clients' memories and wishes, and together form the building blocks of the house.
Project gallery
客服
消息
收藏
下载
最近

































