查看完整案例

收藏

下载

翻译
A 290 m² space designed for a young couple and their beloved pets—two cats and a dog. This two-story house near Kyiv became an extension of a calm suburban lifestyle, where the interior does not compete with nature but complements it.
The concept is based on soft minimalism with warm, natural tones. The interior is built on a combination of tactile materials: wood, stone, textiles, and matte surfaces—all contributing to a sense of calm and a “quiet” aesthetic.
Design company: YD interior studio. Team: Yevheniia Dubrovska, Nataliia StukonohLocation: Kyivska OblastArea: 290 sq.m
Years: 2020-2025Photo credits: Misha Lukashuk
The ground floor is an open shared area. The living room, featuring a fireplace and a deep modular sofa, forms the heart of the home—a place for slow evenings and gatherings. Large windows dissolve the boundary between the interior and the garden, filling the space with natural light.
The kitchen is designed as a concise volume with a focus on functionality: light stone, warm wood, and soft geometry create a calm backdrop for everyday life. The island serves not only as a workspace but also as a point of communication.
This office has two workstations by the window.
A shelving unit serves as a decorative element of the space, and its key feature is a painting that moves along a special rail.
These stairs are a very successful example of “quiet” design, where form, materials, and details work together to create an overall atmosphere without unnecessary expressiveness.The light, solid steps (likely microcement or stone) contrast with the dark wooden wall panel. This creates a clear graphic quality in the space, but without harshness—thanks to the muted, natural tones.
This interior is about balance—between aesthetics and function, architecture and nature, the dynamics of life and quietness.
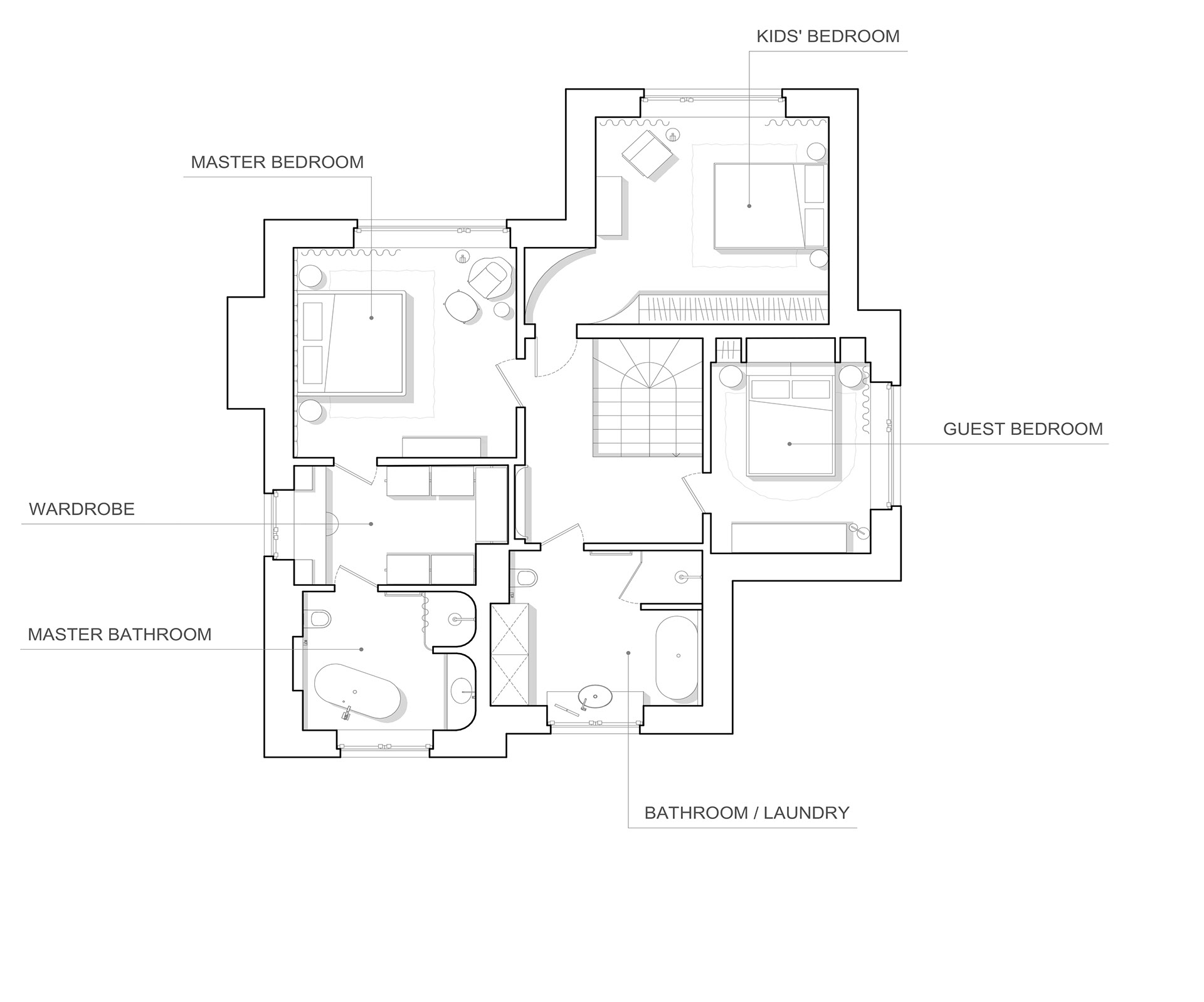
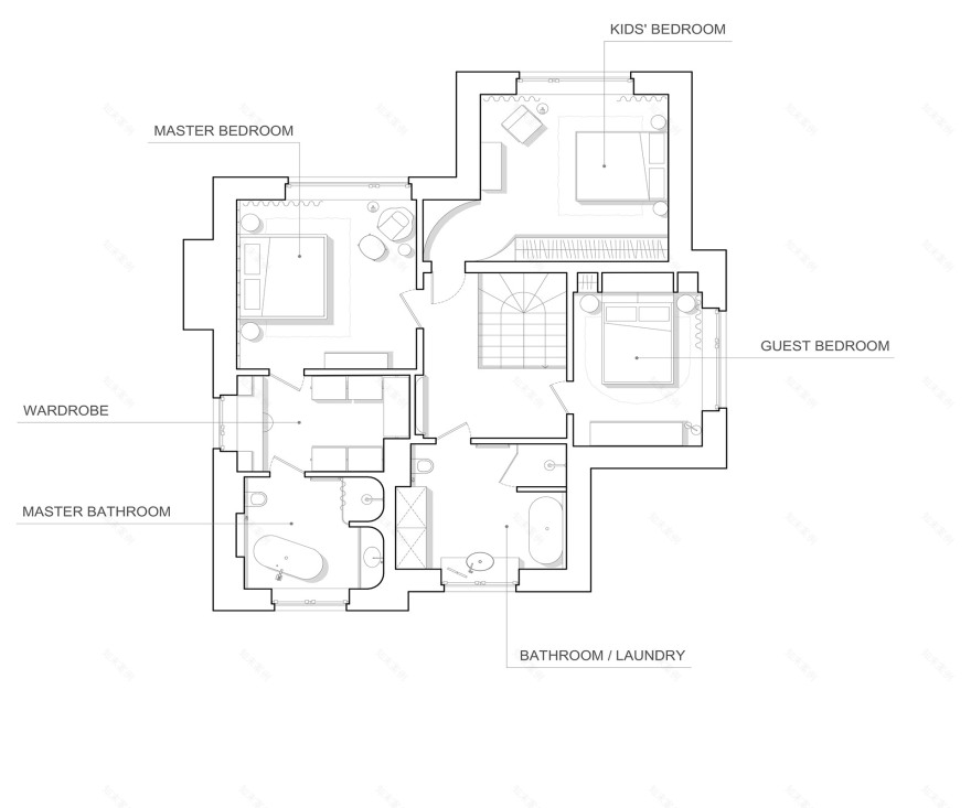
The private spaces on the second floor are more restrained: the bedroom is kept in a light palette with natural textures that promote rest and recovery.
The bathrooms emphasize tactility and simplicity. The rough texture of stone, rounded forms, warm tones, and soft lighting create the atmosphere of a private spa without excessive decoration.
The wardrobe and the guest room
The laundry room and guest bathroom
Guest room on the second floor
Technical and dressing room on the first floor
Special attention is given to details and everyday scenarios—the space is adapted for comfortable coexistence with pets and the daily rituals of its residents.
Construction process 1
Construction process 2
And here are the architects: Nataly Stukonog and Yevheniia Dubrovska
客服
消息
收藏
下载
最近






























































