查看完整案例

收藏

下载

翻译
EDUCATIONAL COMPLEX: SCHOOL (Grades 1–9) and KINDERGARDEN. UKRAINE
Location: Ukraine.
Status: from concept to detail-oriented drawings.
Soft: Revit, 3D Max.
Team: project by "Peker&Partners" for "Big City Lab" - Anastasiia Konotopenko, Oleksii Shvatskyi, Pavlo Peker.
Vizualization: Olena Ovchar.
Year: 2025.
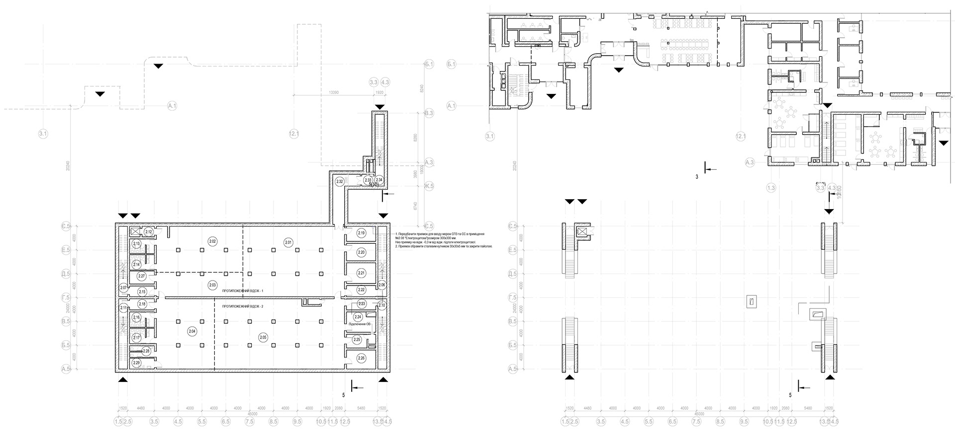
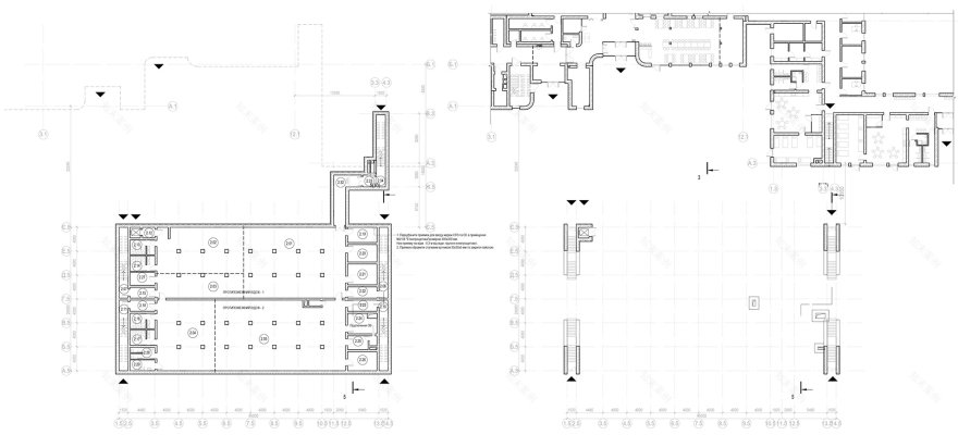
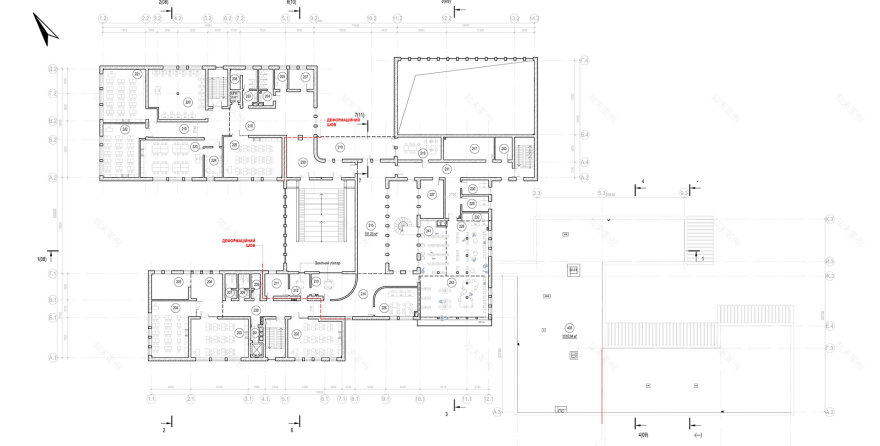
Plans.
Axonometric View.
Sections.
客服
消息
收藏
下载
最近

















