查看完整案例

收藏

下载

翻译
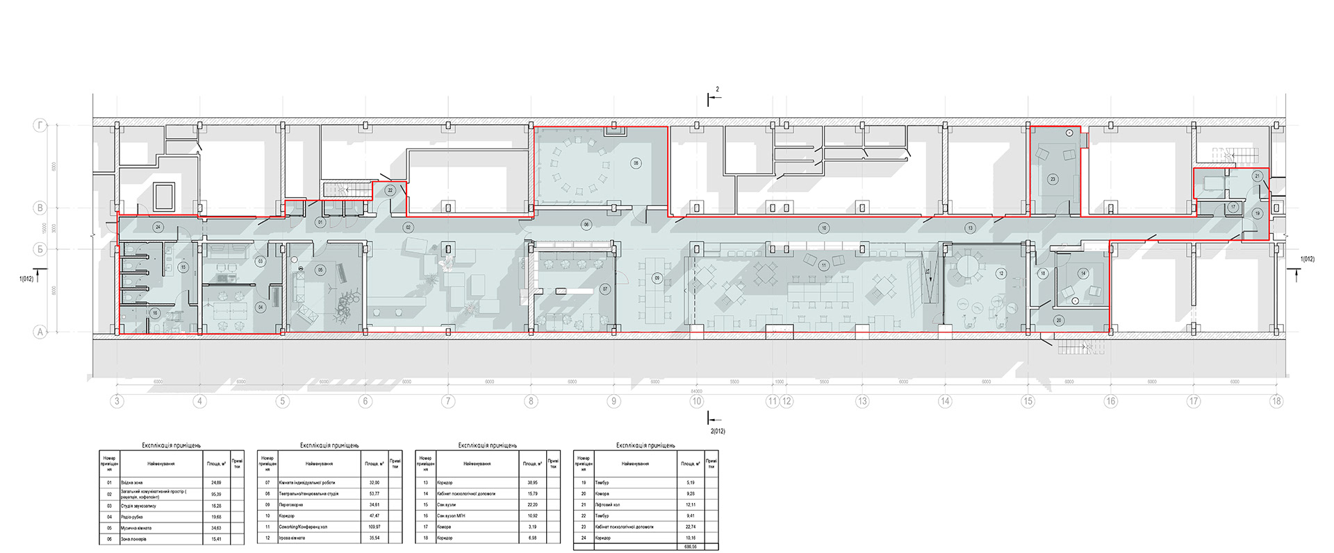
SMART SHELTER. CLUST for ONU (Odesa National University)
Location: Ukraine, Odesa.
Status: сoncept (+ detail drawings).
Soft: Revit, Twinmotion.
Team: project by "Peker&Partners" - Anastasiia Konotopenko, Pavlo Peker.
Vizualization: Olena Ovchar.
Year: 2025.
客服
消息
收藏
下载
最近
































