查看完整案例

收藏

下载
△ 入口 © 熹衡工作室 REXON 上虞 50㎡复合空间,是集办公与展厅双重功能于一体的企业核心载体,既肩负着对外展示品牌形象、传递核心价值的重要使命,更是连接企业与客户的关键沟通窗口。
©熹衡工作室
场地由两间约20余平米的常规办公室改造而来,直面层高偏矮、预算有限的双重现实约束,如何在苛刻条件下平衡业主对空间品质的高要求,实现办公与展示功能的高效融合与价值最大化,成为本次设计的核心命题。
△展示通道
©熹衡工作室
△ 通道和展柜 © 熹衡工作室
△ 展示通道 - 展架
© 熹衡工作室
本次设计以 “以最少动作解决核心需求” 为核心策略,摒弃复杂的空间改造手法,用简约却精准的设计巧思,让有限空间释放多元功能,在方寸之间构建出动线流畅、功能清晰的复合场域,既契合企业日常办公的实用需求,又满足品牌展陈的专业要求。
△改造前空间 © ByoArc拜昂建筑
△设计轴测图 © ByoArc 拜昂建筑
空间营造的关键,在于用极简的设计手法实现功能的自然划分与有机融合。我们以入口区域的片墙为空间界定的核心载体,将 50㎡的空间利落划分成两大功能板块。
△ 办公区和展示区通道 © 熹衡工作室
△办公区 看向展示区 ©熹衡工作室
一侧打造为专属展示通道,通过线性的空间布局,为访客营造从外部到内部的沉浸式空间转换感,引导其有序行进、层层感受品牌魅力,让展陈动线更具节奏感与体验感。位于展廊尽端设置了一个以传动带为原型的装置展架,产品和功能深度结合。
△展示空间 - 分隔状态 ©熹衡工作室
△整体空间 ©熹衡工作室
另一侧较大空间则整合为主展示区与开放办公区,为了兼顾空间的连通性与私密性,两区之间采用半透布帘作为软隔断,既能够在办公时段保障办公区域的相对独立,减少展陈动线的干扰,又可根据接待、活动等使用需求灵活开合,让空间在 “办公模式” 与 “展陈模式” 之间自由切换,在空间面积受限的前提下,实现了空间价值的最大化利用,让实用性与灵活性兼具。
△ 办公区和展示区 © 熹衡工作室
△展示柜 ©熹衡工作室
△ 休闲区 © 熹衡工作室
可持续设计理念贯穿项目设计与落地的全程,以材料再利用与模块化设计为核心,从源头把控损耗与能耗,让环保理念与空间美学双向兼顾。选材层面,选用木板、不锈钢等环保低碳材料,在保证空间质感与耐用性的同时,降低材料生产与使用过程中的环境影响;吊顶设计则秉持极简原则,在对空间尺度与使用需求的精确计算基础上,将轨道与灯具合理排布于核心功能区域,摒弃冗余的造型设计,最大限度减少材料的使用,降低建筑隐含碳,真正让可持续设计落地于每一个细节。
△ 装置展示架
© ByoArc 拜昂建筑
△ 办公区
© 熹衡工作室
△ 办公区和展示架 © 熹衡工作室
△ 办公区细节 © 熹衡工作室 在50㎡极小空间与有限预算的双重约束下,本次设计不仅突破了场地本身的限制,通过精准的空间划分打造出内容丰富、动线流畅的专业展陈区域,更构建了一个多功能融合、灵活可变的开放办公与接待场域。
△办公和展示通道 ©熹衡工作室
从片墙的空间界定到软隔断的灵活运用,从环保材料的甄选到极简细节的打磨,每一处设计都围绕“少” 展开,最终让这个复合空间既完美契合企业的品牌展示与日常办公双重需求,更成为企业对外传递品牌理念、与客户深度沟通的优质载体,让方寸空间,绽放出多元的功能价值与设计魅力。
△陈列架细节
©熹衡工作室
△ 展示架 细节 © 熹衡工作室
△展示架节点
©熹衡工作室
项 目 图 纸
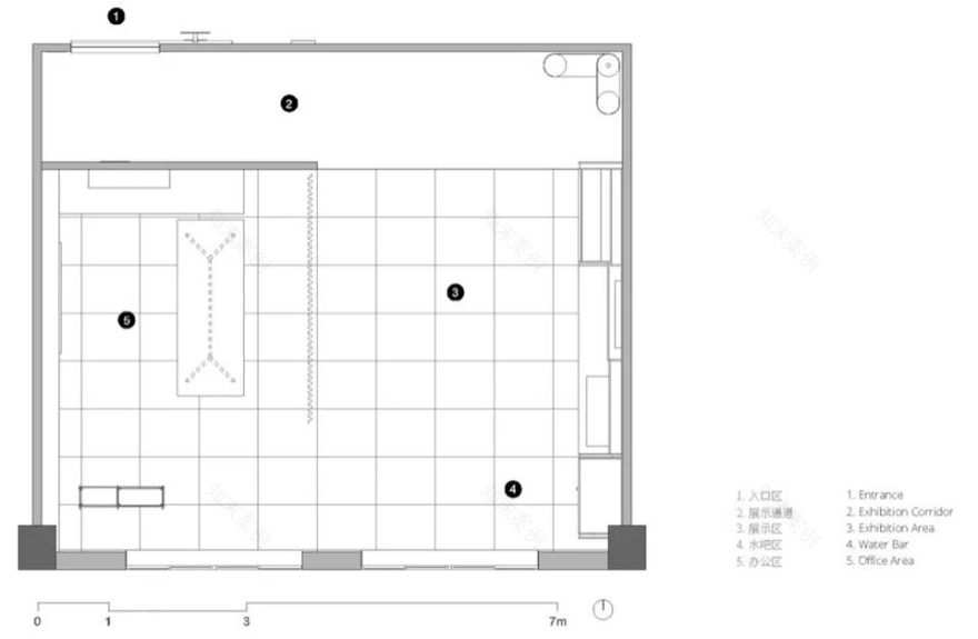
△ 平面图 © ByoArc 拜昂建筑
△ 结构改造 © ByoArc 拜昂建筑
项目名称|REXON企业空间·The"X”
项目类型|展厅&办公
设计方|ByoArc拜昂建筑
设计团队|江原
项目设计|2024年12月
完成年份|2026年3月
项目呈现|LUMI噜咪文化
项目经理|徐怡歆
项目管理|徐怡歆,朱思宇
项目地址|浙江省上虞区朝阳二路
建筑面积|50㎡
项目照片|熹衡工作室
灯光顾问|拾明设计
施工单位|LUMI噜咪文化,智贸装饰设计有限公司
客户|REXON POWER TRANSMISSION COMPONENTS PTE. LTD.
材料|木材,不锈钢,艺术漆
江 原
ByoArc拜昂建筑创始人/主持建筑师
UCL巴特莱特建筑学院建筑学硕士(Distinction)
ByoArc 建筑事务所于 2024 年在杭州正式成立,由深耕行业多年的建筑师江原创办,持有 RIBA 英国皇家建筑师协会特许事务所资质,是扎根中国、兼具国际视野的多元化新锐设计工作室。团队核心成员均毕业于全球顶尖建筑院校,拥有海外留学背景与知名外企多年从业经历,覆盖建筑设计全专业领域,凭借多元的实践积淀与复合型专业能力,为跨维度设计创作注入持续的创新动力。
事务所以数字化设计为技术核心,打造建筑、室内、景观一体化的全链条设计服务体系。我们秉持国际前沿设计思维,深度贴合本土场地肌理与地域文脉,以建筑本体逻辑统筹设计全流程;具备跨尺度、多类型项目的设计落地能力,通过标准化、精细化的项目管控体系,保障设计方案从概念到落成的完整呈现,坚守空间细节与整体品质的双重把控。
客服
消息
收藏
下载
最近































