查看完整案例

收藏

下载
- -
放空自己 感知生活
本 空 B K O N S
本项目:杭州钱塘朗拾湖著府精装修改造项目
设计面积:155㎡
居住者:业主(90后独居)
直接砸掉精装中的“高大上的岩板”:她说了一句让我印象很深的话:“家不是展示品,我下班回来,只想躺平,不想表演。”
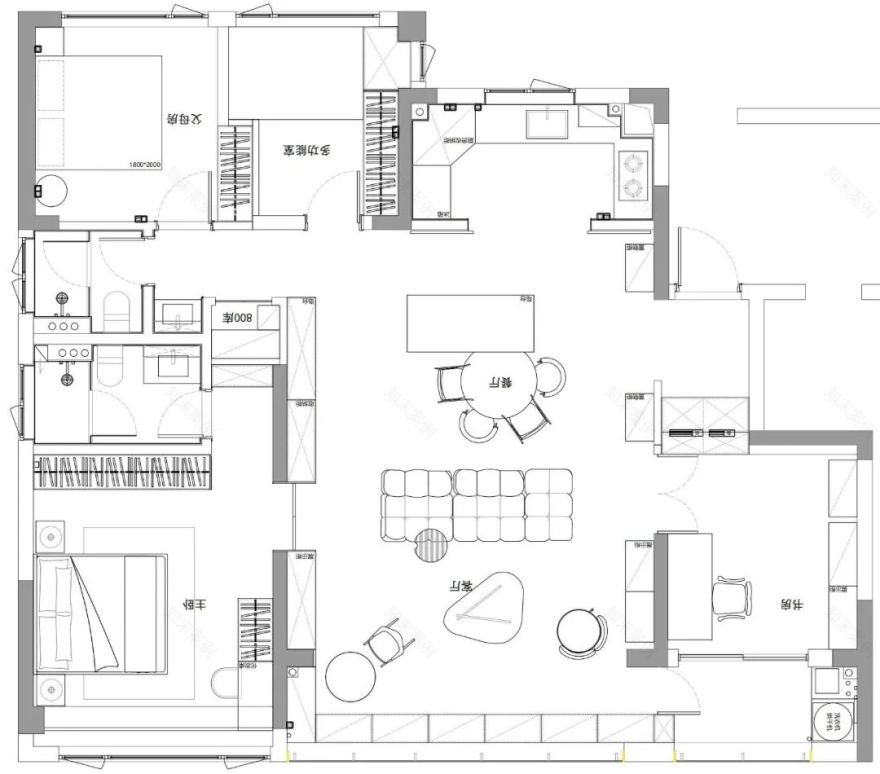
原始户型图—
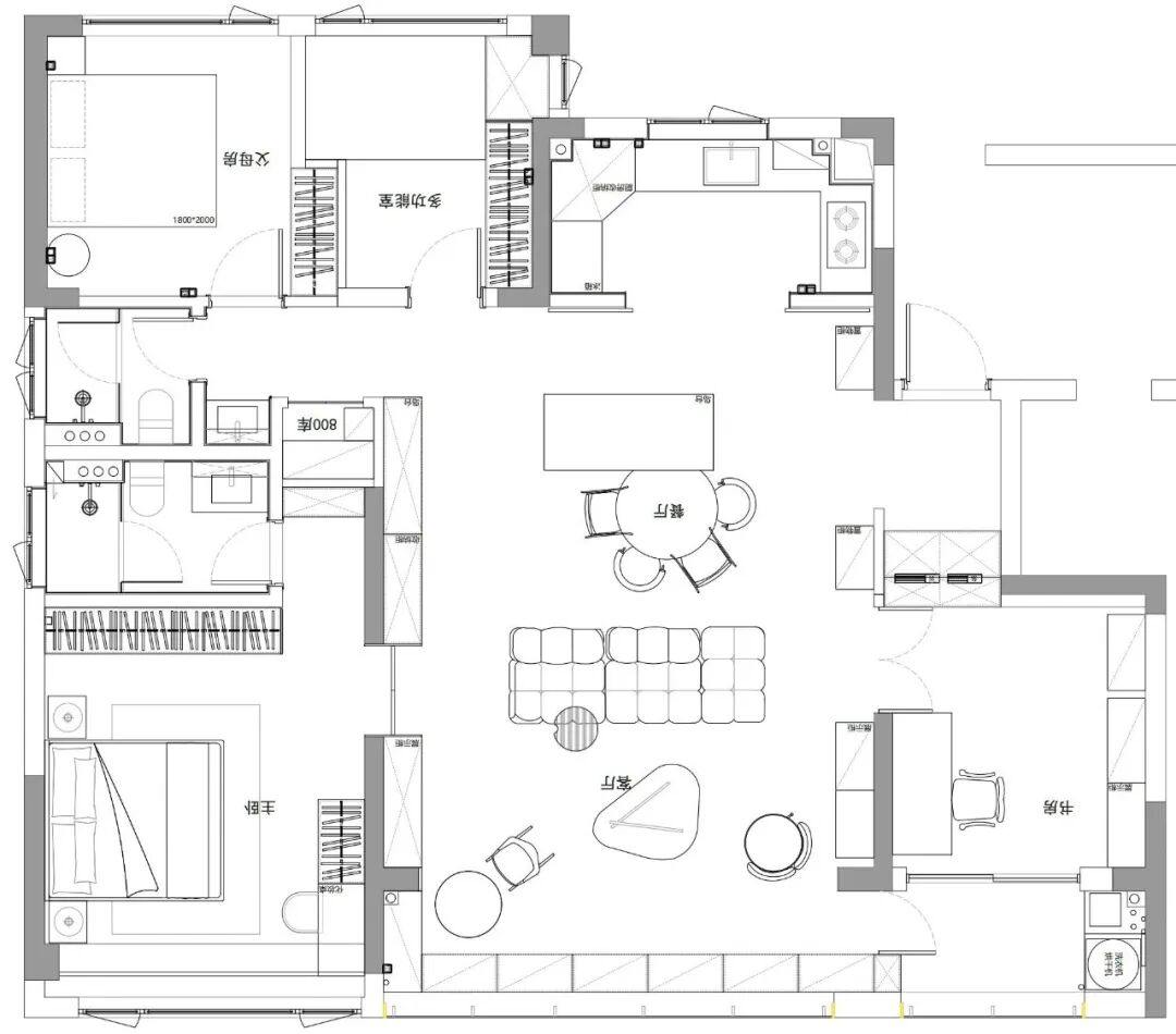
设计后平面图 —
改造前后对比图 —
玄关 —
开门即治愈,卸下一身风尘与伪装
很多人装修会忽略玄关,但对独居的90后来说,玄关是“家与外界的边界”——走出玄关,我们是职场上从容前行的成年人;走进玄关,我们可以卸下所有伪装,做最真实的自己。
黄蓝撞色的门框里,一幅红苹果挂画撞入眼帘,像一句温柔的“欢迎回家”。蓝色长凳可以放包、换鞋,复古红地毯铺在脚下,没有复杂的设计,却为归家的脚步铺就了温柔的仪式感。
我们90后,注重边界感,也重视归家的仪式感:孝顺但不盲从,独立但不冷漠,在外扛起责任,归家便拥抱松弛,这份“责任与自由兼顾”的态度,藏在玄关的每一处细节里。
客厅 —
拒绝内卷,独处的温柔栖息地
装修时最踩坑的就是一开始想装“网红风”,后来发现华而不实——这也是很多90后装修的通病:盲目跟风,忽略自己的居住需求。
最终我放弃了复杂的造型,用大面积温润木色铺陈基底,奶白色沙发像被揉软的云朵,往上面一躺,所有工作的疲惫都能被化解。黑白几何地毯、带着复古肌理的墙面,搭配窗外漏进的阳光,没有多余的装饰,却处处透着舒服。
这就是90后的松弛感:不被“精致绑架”,不追求“表面好看”,偏爱舒服自在的相处模式,哪怕只是静坐发呆、刷一部剧,也能在属于自己的空间里,找回内心的平静——毕竟,家是给自己住的,自己舒服才最重要。
餐厅 —
认真吃饭,是独居最基本的仪式感
后台经常有读者问我:“一个人住,有必要装餐厅吗?随便凑活一口不行吗?” 我的答案是:不行。
独居最容易陷入的内耗,就是敷衍自己——不做饭、吃外卖,久而久之就会觉得生活没有滋味。所以我特意选了原木圆桌,搭配跳脱的红调座椅,在浅木色的温柔底色里,点亮烟火气的温度。
在这里煮一碗面、煎一块牛排,哪怕只是简单的一餐,也会认真摆盘。90后从不排斥独处,反而懂得珍惜独处的时光,我们重视的仪式感,从来不是给别人看的,而是对自己的温柔,是“认真生活、不敷衍人生”的最好体现。
这是我装修时最不后悔的设计——暖黄小砖铺就的吧台,像一颗藏在空间里的小太阳,自带治愈能量。
加班晚归,在这里冲一杯热咖啡;周末午后,调一杯小酒对着窗外发呆;偶尔也会在这里处理简单的工作,明黄的底色总能把所有疲惫都揉碎。
这正是90后的生活哲学:我们不躺平,努力搞钱、认真生活;也不内卷,懂得在忙碌中给自己留一方喘息的天地。比起“拼命硬扛”,我们更擅长“自我治愈”,哪怕是微小的快乐,也会认真捕捉,在自己的小世界里,守住热爱与欢喜。
书房
—
我的书房没有装复杂的书柜,只放了一个复古风书架,搭配奶白色单人沙发,阳光穿过纱帘,落在书本与绿植上,在这里读书、工作、发呆,都能获得与自我对话的平静力量。
90后重视自我成长,比起合群,我们更在意内心的丰盈。我们相信努力的意义,也接受事与愿违,在独处中沉淀自己、提升自己,不随波逐流,不轻易评判他人,始终保持从容且坚定的本心——这便是我们最珍贵的价值观。
卧室 —
我们不追求“网红卧室”的精致噱头,只在意每一处细节带来的舒适感,不被外界标准绑架,不敷衍每一次休憩,这份对自己的温柔,正是我们不内耗、爱生活的最好证明——在这里,卸下所有伪装与疲惫,好好睡觉、好好爱自己,就是最治愈的生活方式。
正在施工过程图 —
About
Design Company丨设计机构:本空设计工作室
Main case designer丨主案设计:思蒙
Executive designer丨撰稿:本空君
本空设计事务所 本 空 B K O N S 作品展 —
客服
消息
收藏
下载
最近



































































