查看完整案例

收藏

下载

翻译
Architects:studiokian
Area:580m²
Year:2025
Photographs:Ernest Theofilus
Manufacturers:Bottega Artisan,Dulux,Kohler,Simon,Solid Stone,VNB
Lead Architects:Kalvin Widjaja, Dian Indah
Category:Houses
Lead Team:Kalvin Widjaja, Dian Indah
Engineering & Consulting > Structural:Indra Structural Works
General Contractor:Inkland
City:Jakarta
Country:Indonesia
Text description provided by the architects. Starting from a desire to blend a unique, tropical, and private sanctuary for a house, comes a dwelling that welcomes the user to indulge in natural elements, both man-made and contextual. O16 is located in a gateless complex with a corner site that overlooks a basketball park and the complex perimeter boundary. The house has a secluded feeling with views and a row of eternal greenery that is provided by the surroundings, thus making the 2nd floor of the house basically undisturbed in terms of views.
The design of the house is trying to maximize this advantage by orienting almost all the required rooms and activities toward the basketball park that is covered with trees, including the journey to the main entrance of the house that is located on the second floor along the sloping grass as if it is the extension of the park itself. As one walks through the stone wall, a series of spaces and architectural elements start to be uncovered.
Guests are greeted with the sound and smell of the water while transitioning from outdoor to semi-outdoor space, shaded by a double-height lattice 'nest'. This common area is designed to be as tropical and open as possible, maximizing both nature and architectural elements to create a dramatic feeling. The foyer is designed to be informal with a semi-outdoor feel that also functions as a pool deck area. The other corner side of the house is facing west; thus, rooms are strategically enclosed, and openings are measured to ensure comfort inside the house.
The great room is designed to be one singular space that can be fully open to bring in all of these theatrical interplays of light, nature, and materiality toward the front façade. These main rooms are strategically positioned on the second floor to ensure more privacy and to make the most of the trees of the park. The office room is designed entirely with natural stone to create a 'cave' like feeling.
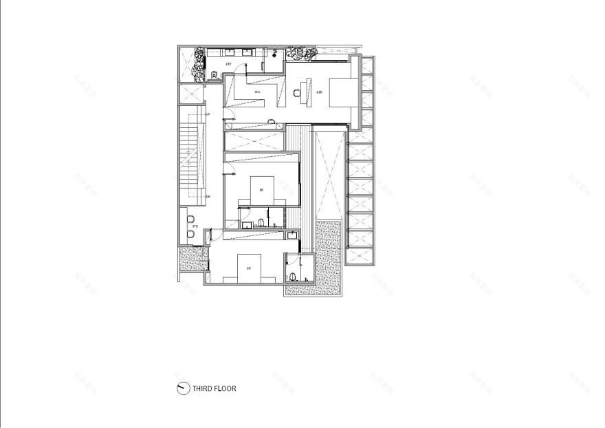
All the rooms that require more privacy, such as bedrooms, are placed on the third floor. The lattice creates layers that give shade and privacy to the bedrooms. All the bedrooms have views of the park and a shared balcony that overlooks the pool below. O16 House tries to experiment on how a site context can influence the composition of both building and activity, without compromising any views or natural elements.
Project gallery
客服
消息
收藏
下载
最近




















