查看完整案例

收藏

下载

翻译
COMMERCIAL OFFICE BUILDING | A Space for Effective Work and Innovation
Area: 3250 м2
Project location: Kamianets-Podilskyi, Ukraine 2024
Project manager: Yuriy Gavrilyuk
Architekts: Myroslav Shkolnikov3D artist: Myroslav Shkolnikov
The commercial office building project in Kamianets-Podilskyi, designed by GName Architects, is an example of modern architecture where minimalism, technological innovation, and environmental sustainability organically come together. The primary goal was to create an accessible space that meets the needs of businesses while maintaining an aesthetic appearance and adhering to ecological standards.
Проєкт комерційної офісної будівлі в Кам'янці-Подільському, розроблений студією GName Architects, є прикладом сучасної архітектури, в якій мінімалізм, технологічність та екологічність органічно поєднуються. Основним завданням було створення безбар'єрного простору, що відповідає потребам бізнесу, при цьому зберігаючи естетичний вигляд і відповідність екологічним вимогам.
ARCHITECTURAL SOLUTION:
The building consists of one underground floor and three above-ground levels, allowing for the effective organization of various functional zones. All levels are connected via a convenient system of elevators and stairs, ensuring easy access to every part of the building.
The minimalist exterior design is formed using Schuko facade systems, which incorporate decorative perforated elements made of perforated steel panels. This solution gives the building a distinct graphic structure while maintaining maximum energy efficiency. The cool shade of the Guardian glass packages seamlessly integrates with the surrounding space, providing natural light and visual lightness to the facade.
АРХІТЕКТУРНЕ РІШЕННЯ:
Будівля складається з одного підземного та трьох наземних поверхів, що дає можливість ефективно організувати різні функціональні зони. Всі рівні сполучаються через зручну систему ліфтів та сходів, що дозволяє забезпечити комфортний доступ до кожної частини будівлі.
Зовнішній мінімалістичний вигляд будівлі сформований за допомогою фасадних систем Schuko, в яких використовуються декоративні перфоровані елементи з просічного металу у сталевих відтінках. Завдяки такому рішенню, будівля отримує виразну графічну структуру, а одночасно зберігається максимальна енергоефективність. Холодний відтінок склопакетів Guardian гармонійно інтегрується з навколишнім простором, забезпечуючи природне освітлення та візуальну легкість фасаду.
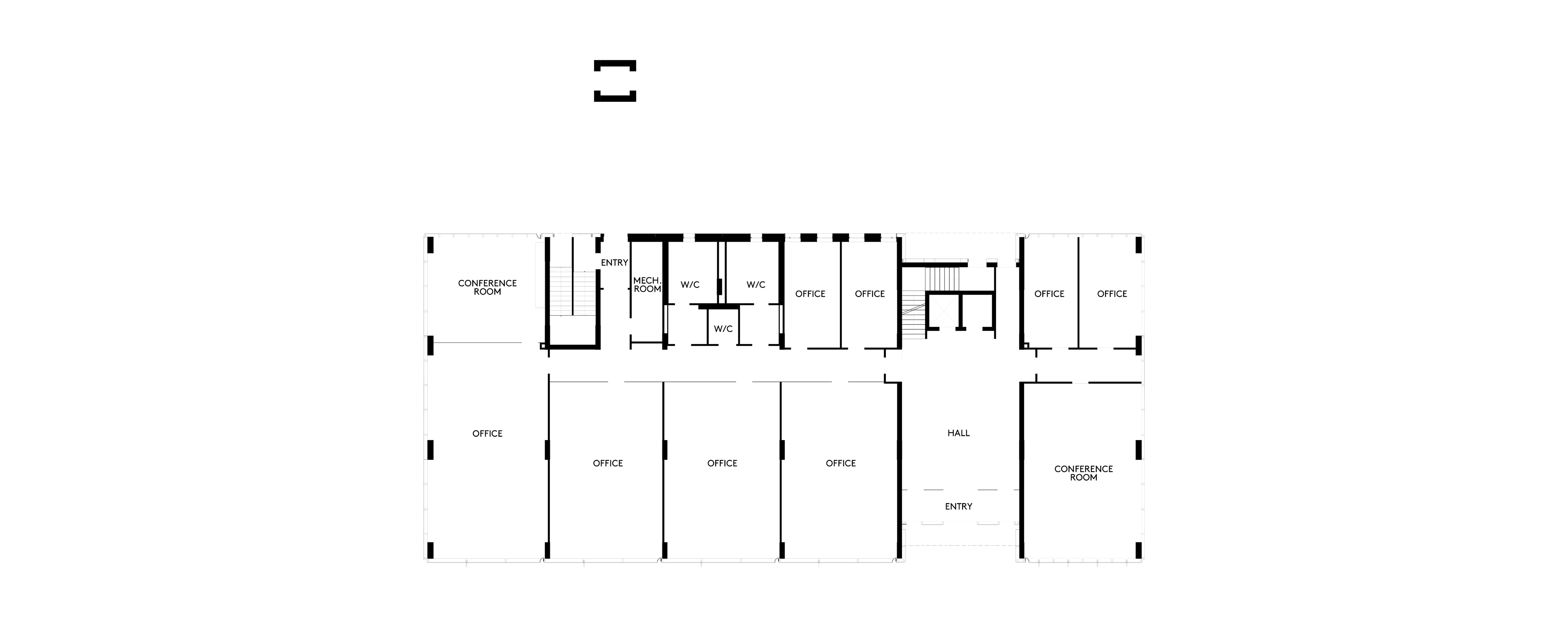
FUNCTIONALITY AND SAFETY:
The office building features a thoughtfully planned layout that meets the needs of modern business. The underground floor includes a large shelter for employees and visitors, offering the distinct advantage of allowing work to continue during air raids. Additionally, this level houses a modern gym, promoting physical activity within the office space.
On the above-ground levels, office spaces are equipped with all necessary technical systems to ensure comfortable working conditions.
ФУНКЦІОНАЛЬНІСТЬ І БЕЗПЕКА:
Офісна будівля має ретельно продумане планування, яке відповідає вимогам сучасного бізнесу. Підземний поверх передбачає велике укриття для працівників та відвідувачів, що має безперечну перевагу — можливість продовжувати роботу під час повітряної тривоги. Також на цьому рівні розташований сучасний тренажерний зал, що дозволяє підтримувати фізичну активність в межах офісного простору.
На наземних поверхах розташовані офісні приміщення, оснащені всіма необхідними технічними системами для забезпечення комфортної роботи.
ECO-FRIENDLINESS AND COMFORT:
The project ensures the creation of a barrier-free environment, guaranteeing easy access to all areas of the building for people with disabilities. Furthermore, the building complies with modern ecological standards through the use of natural materials in both design and landscape green spaces. The eco-parking and recreational areas on the premises enhance the convenience for employees and visitors, creating a pleasant space for work.
The building is equipped with modern air conditioning, lighting, and energy-saving systems, making it economical in operation while ensuring comfort.
ЕКОЛОГІЧНІСТЬ ТА КОМФОРТ:
Проєкт передбачає створення безбар'єрного середовища, що гарантує легкий доступ до всіх частин будівлі для людей з обмеженими можливостями. Крім того, будівля відповідає сучасним екологічним стандартам завдяки використанню природних матеріалів у дизайні та ландшафтному озелененні. Екопарковка та зони для відпочинку на території додатково покращують зручність та створюють приємний простір для роботи.
Будівля оснащена сучасними системами кондиціонування, освітлення та енергозбереження, що робить її економічною в експлуатації та комфортною.
客服
消息
收藏
下载
最近










