查看完整案例

收藏

下载

翻译
The Extension Atelier
Location: Kyiv, Ukraine
Area: 110 sq m / 1,184 sq ft
Іmplementation: September 2025
Photo: Mykhailo Lukashuk
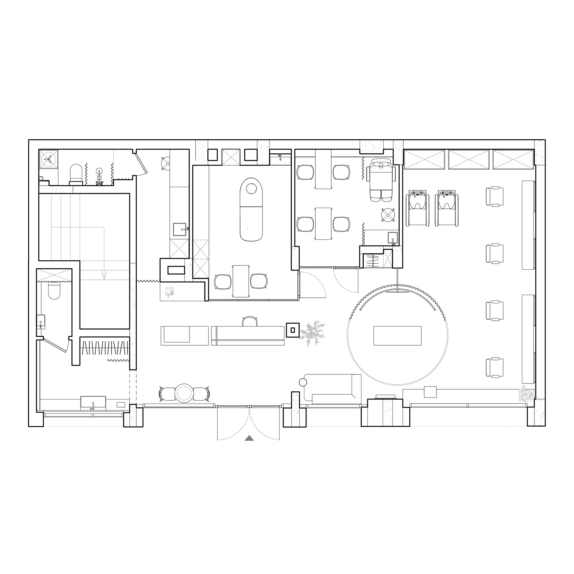
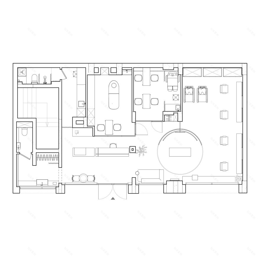
A beauty salon focused on hair extensions, located in the residential complex Unit Home. The project began with an empty shell space. The main task was to create a logical layout with a clear separation between open and private zones - a challenge due to the large number of columns in the center of the room.
The open-plan layout integrates the reception area, hair fitting zone, and stylists’ workspace, creating a cohesive environment that ensures client comfort and supports efficient workflow. Two separate rooms for cosmetology services are set deeper into the space and divided by glass partitions, allowing natural light to flow through and creating a sense of lightness and openness.
One of the challenges was a storage room with a low ceiling but a large window. This space was transformed into a guest restroom with a delicate stone washbasin placed under the window, visually expanded with a large mirror. The restroom became a natural extension of the main hall and was harmoniously integrated into the overall composition.
Since the premises are rented, the designers decided not to invest heavily in wall finishing, focusing instead on furniture and natural materials. The interior combines warm wooden surfaces, stainless steel, and numerous elements made of Ukrainian labradorite stone. Special attention was given to the furniture - most pieces were custom-made, while ready-made items came from Ukrainian brands, adding uniqueness and a contemporary local accent to the space.
The concept of the project combines simplicity of form, harmonious zoning, and comfort for both clients and masters, creating a cohesive, light, and cozy interior where every detail is thoughtfully designed for functionality and aesthetic balance.
客服
消息
收藏
下载
最近






































