查看完整案例

收藏

下载

翻译
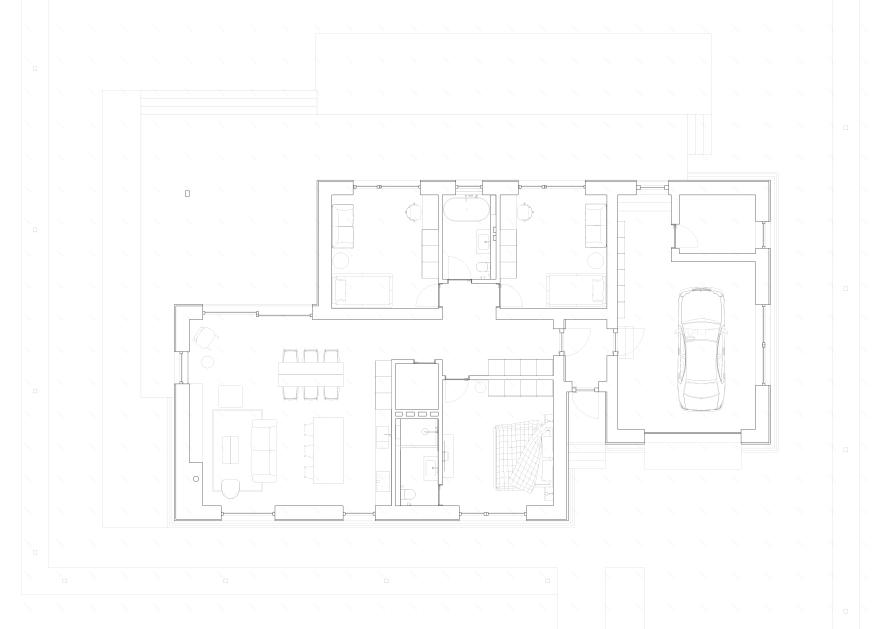
Простий лінійний дім, що склається із двох перетинаючихся об'ємів різної висоти. Низький об'єм включає дві спальні та гараж із технічним приміщенням, високий - мастер-спальню та кухню із вітальнею. Завдяки простій та чіткій лінійній структурі будинок може бути розміщено на будь-якій ділянці та проектно має перспективу для збільшення площі завдяки додаванню необхідних кімнат до перетинаючихся об'ємів
A simple linear house consisting of two intersecting volumes of different heights. The lower volume includes two bedrooms and a garage with a technical room, while the higher volume includes a master bedroom and a kitchen with a living room. Thanks to its simple and clear linear structure, the house can be placed on any site and has the potential to increase the area by adding the necessary rooms to the intersecting volumes
客服
消息
收藏
下载
最近









