查看完整案例

收藏

下载

翻译
VILLAGE #13
Type: tiny house's village
Location: Ukraine
Year: 2021
—
Large green area and small houses create an atmosphere of comfort. Each house is located so that the windows of neighboring houses are not facing each other. It helps to be alone and feel as comfortable as possible.
In the center of town there is a common area: restaurant, swimming pool with terrace, sports ground and fireplace.
Concise forms, simplicity and eco style, that's what comes to mind at first glance at this project.
—
Велика зелена територія та невеличкі будинки створюють атмосферу затишку. Кожен будинок розташовується так, щоб вікна сусідніх будинків не були одне навпроти одного. Це допомагає усамітнитись та відчувати себе максимально комфортно.
В центрі містечка розташована зона загального використання: ресторан, басейн з терасою, спортивний майданчик та вогнище.
Лаконічні форми, простота та еко стиль, ось те, що приходить в голову при першому погляді на цей проєкт.
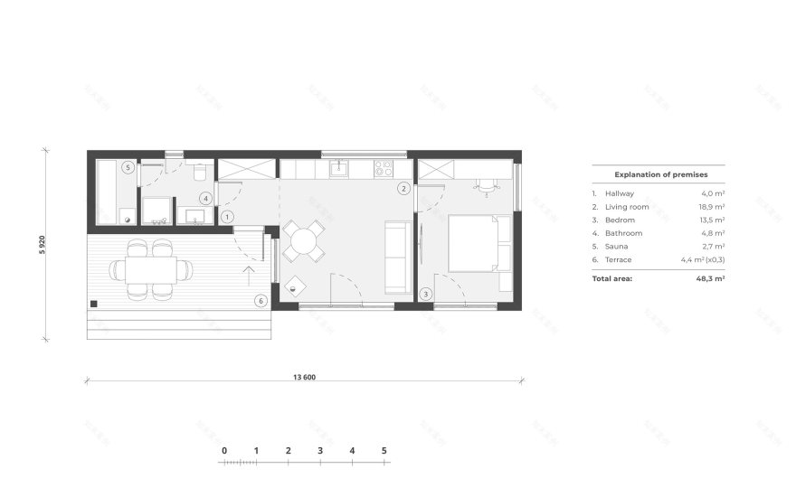
HOUSE TYPE 1A
The house is designed for two people and has a total area of 48.3 square meters. By eliminating corridors, every square meter has been efficiently utilized. The entrance area, including a utility closet, measures 4.0 square meters, while the bathroom with a shower occupies 4.8 square meters. The combined kitchen with a panoramic window, dining area, and living room collectively cover 18.9 square meters. The bedroom has a comfortable size of 13.5 square meters, allowing for a full-size double bed and a working area.
One notable feature of this house is the integrated sauna and a large covered terrace, providing space for socializing with friends and family.
—
Будинок розрахований на проживання 2х людей, загальною площею 48,3 м2. Відмова від коридорів дозволила ефективно використати кожен м2: вхід із технічною шафою 4,0 м2, санвузол із душовою 4,8 м2. Об'єднана кухня з панорамним вікном, столова зона і вітальня разом становлять 18,9 м2. Комфортні розміри спальні 13,5 м2 дозволили розмістити повноцінне двоспальне ліжко і робочу зону. Особливістю цього будинку є інтегрована сауна і велика накрита тераса для посиділок із друзями.
HOUSE TYPE 2A
The house has a total area of 78.9 square meters. It is designed with two separate bedrooms, measuring 11.1 square meters and 15.5 square meters respectively, to accommodate families with children, parents, or large groups. The kitchen, living room, and dining area have a combined space of 30.5 square meters, providing enough room for all residents. There is a cozy area with a fireplace next to the sofa, which can accommodate an additional two sleeping places if needed. The entrance hall, spanning 5.8 square meters, includes a utility closet. The bathroom features a shower and measures 4.8 square meters.
An appealing addition to the house is the integrated sauna and a large covered terrace, allowing for more outdoor leisure time. The large windows blur the boundary between the indoor space and nature, creating a seamless connection.
—
Будинок загальною площею 78,9 м2. Запроєктовано дві окремі спальні 11,1 м2 та 15,5 м2 для родини із дітьми, батьками, чи великої компанії. Кухня-вітальня-столова площею 30,5 м2, достатньо місця, щоб розміститися усім мешканцям. Передбачена затишна зона із каміном біля дивану, що, при потребі, додає ще 2 спальні місця. У передпокої площею 5,8 м2 розташована технічна шафа. Санвузол із душовою 4,8 м2. Приємним доповненням є інтегрована сауна та велика накрита тераса для більшого поводження часу на свіжому повітрі. Великі вікна стираються грань між внутрішнім простором і природою.
CENTRAL BUILDING
The heart of this suburban complex is the central building with a total area of 134.5 square meters. Its distinctive facade emphasizes the entrance area and harmonizes with the landscape. The central building combines all the necessary functions, including:
1) Reception
2) Administration
3) Kitchen
4) Staff rooms
5) Café
Through the terrace doors, access is provided to the summer terrace, where one can enjoy a snack under umbrellas, a swimming pool, and a relaxation area.
—
Серце цього заміського комплексу - центральний корпус загальною площею 134,5 м2. Особливий фасад робить акцент на вхідній групі і перегукується із ландшафтом. Центральний корпус поєднав у собі всі необхідні функції: 1) рецепція; 2) адміністрація; 3) кухня; 4) кімнати для персоналу; 5) кафе. Через терасні двері відкривається доступ до літньої тераси, де можна перекусити під парасолями, басейну та зоною відпочинку.
realization
客服
消息
收藏
下载
最近


























