知末
知末
创作上传
VIP
收藏下载
登录 | 注册有礼

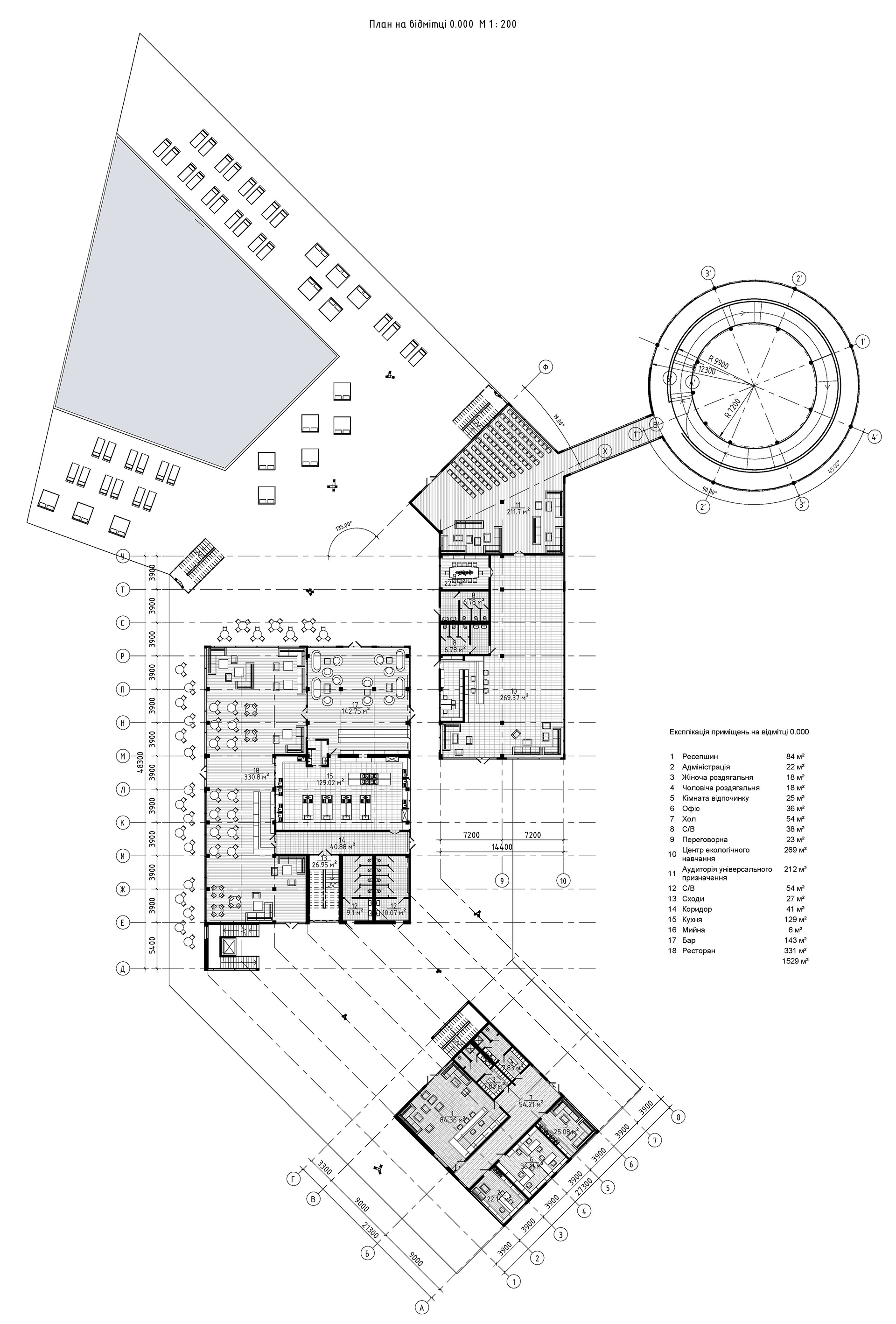
Eco Hotel in Morocco

2024/08/09 18:25:01
查看完整案例
微信扫一扫
收藏
下载
翻译
Eco Hotel in Morocco-0
Eco Hotel in Morocco-1
Eco Hotel in Morocco-2
Eco Hotel in Morocco-3
Eco Hotel in Morocco-4
Eco Hotel in Morocco-5
Eco Hotel in Morocco-6
Eco Hotel in Morocco-7
Eco Hotel in Morocco-8
南京喵熊网络科技有限公司 苏ICP备18050492号-4知末 © 2018—2020 . All photos and trademark graphics are copyrighted by their owners.增值电信业务经营许可证(ICP)苏B2-20201444苏公网安备 32011302321234号
客服
消息
收藏
下载
最近