查看完整案例

收藏

下载

翻译
SITUATION / СИТУАЦІЯ
On February 24, 2022, Ukraine was attacked by the Russian Federation. On the 50th day of the full-scale war, thousands of people lost their homes or could not return. In Ukraine, there is a need in the near future to build new mass housing and quickly.
More and more architects and companies are publishing their proposals and visions. However, for the most part, everything concerns prefabricated modular short-term housing. The Ministry of Community and Territorial Development raises the issue of allocating land and funds for the construction of capital housing for the resettlement of people who have been forced to leave or lose their homes.
Khmelnytsky City Council was one of the first to propose to allocate a plot in the west of the city, between the district of Grechany and the village of Oleshin, and to build housing in a short time.
24-го лютого 2022 року на Україну напала Російська Федерація. На 50-й день повномасштабної війни тисячі людей втратили житло, або не можуть до нього повернутись. В Україні виникає потреба у близькій перспективі швидко будувати нове масове житло.
Все більше архітекторів і будівельних компаній публікують свої пропозиції і бачення. Проте, здебільшого все стосується швидкозбірного модульного короткострокового житла. Міністерство розвитку громад і територій піднімає питання виділення земель і коштів під будівництво капітальних житлових будинків для розселення людей, які вимушено покинули або втратили свої домівки.
Хмельницька міська рада одна з перших звернулася із пропозицією виділити ділянку на заході міста, між мікрорайоном Гречани і селища Олешин, і в короткі терміни спорудити житло.
It should be noted that "mass" and "social" housing does not mean the poor quality. People who need it do not cease to be civilized people who deserve a basic level of comfort. Moreover, the experience of mass housing in post-Soviet countries and countries of Soviet Block teaches us that temporary housing will function for decades and our children, our future, will grow up there. Therefore, the construction of such housing is not just a quick and cheap increase in housing units - it is also a chance to build a NEW Ukraine.
We, the architects from RDAG, decided to help our city and Ukraine in general with what we know and understand - to develop a concept for building this area with the specific principles of social housing.
These materials are designed to help local communities lay the foundations for the development of our country at a high level!
God be with us! Slava Ukraini!
-----------------------------------------------------------------------------------------------------------------------------------------------------------------------
Варто зауважити, що "масове" і "соціальне" житло, не означає однотипне або неякісне. Люди, які його потребують, не перестають бути цивілізованими людьми, які заслуговують на базовий рівень комфорту. Більше того, досвід масовго житла на теренах пострадянських держав і таких країн як Німеччина, Чехія, Литва, Латвія, Естонія та інші вчить нас, що тимчасове житло буде функціонувати десятиліттями, і в ньому будуть зростати наші діти, наше майбутнє. Тому будівництво такого житла - це не просто швидке і дешеве збільшення житлового фонду - це також і шанс будувати НОВУ Україну.
Ми, архітектори з RDAG, вирішили допомогти своєму місту і в цілому Україні тим, що ми вміємо і на чому розуміємось - розробити концепт забудови даної ділянки з виділенням специфічних принципів облаштування соціального житла.
Дані матеріали покликані допомогти місцевим громадам закласти основи розбудуви нашої країни на високому рівні!
З нами Бог! Слава Україні!
WORLD EXPERIENCE / СВІТОВИЙ ДОСВІД
Why social housing is cheaper: Mass housing should be cheaper than commercial, but are all the ways to reduce the cost correct?
- cheap building materials (YES! You need to use locally produced materials);
- the cheapest finishing materials (NO! Finishing should last a reasonable time, not that in a year the building will start to "climb" and turn the image of the quarter into a ghetto);
- simple standard constructions (YES! It is necessary to avoid difficult and expensive decisions (consoles, obtuse and sharp corners, inclined planes));
- lack of landscaping (NO! The environment around the buildings is on a par with the houses, the environment forms the consciousness of residents, children and often determines their path in the future, you can not neglect the quality of the environment);
- use of standard projects (YES and NO! It is definitely necessary to use standard solutions, but not those used 30 - 20 - 10 or even 5 years ago, new solutions are needed, in accordance with modern needs and requirements)
- sealing of housing units (NO! You can not move in the direction of dormitories and "communal", for a long stay each family and individual deserve their own space, better their tiny kitchen with electric stove for 2 burners than a shared kitchen and two gas stoves for 20 families, better a cramped bedroom with a bed than a large room with a sofa bed).
- maximum building density (YES and NO! From the experience of Europe and the USSR in the middle of the twentieth century it follows that high - rise housing is not considered the right path of development due to inconsistency with human scale. But the experience of recent decades in Western Europe suggests that low - rise housing should be built more densely).
- height (NO! houses with a height of 2 - 3 floors are much faster and cheaper to build than 9 floors, in addition, low floors create a more favorable environment for development)
As a result of erroneous priorities - we get a poor living environment with a dubious future.
-----------------------------------------------------------------------------------------------------------------------------------------------------------------------
Чому соціальне житло дешевше: Масове житло повинне бути дешевше за комерційне, але чи всі способи здешевлення правильні?
- дешеві будівельні матеріали (ТАК! Потрібно використовувати матеріали місцевого виробництва);
- найдешевші матеріали оздоблення (НІ! Оздоблення повинно прослужити прийнятний термін, а не щоб через рік споруда почала “облазити” і перетворювати образ кварталу у гетто);
- прості типові конструкції (ТАК! Потрібно уникати складних і дороговартісних рішень (консолі, тупі і гострі кути, похилі площини));
- відсутність благоустрою території (НІ! Середовище навколо будівель стоїть на одному щаблі з оселями, середовище формує свідомість мешканців, дітей і часто визначає їх шлях у майбутньому, не можна нехтувати якістю оточення);
- використання типових проектів (ТАК і НІ! Однозначно необхідно використовувати типові рішення, але не ті, якими користувалися 30 - 20 - 10 і навіть 5 років назад, необхідні нові рішення, відповідно до сучасних потреб і вимог)
- ущільнення житлових одиниць (НІ! Не можна рухатись у напрямку гуртожитків і “комуналок”, для тривалого проживання кожна сім’я і окрема особа заслуговують на власний простір, краще своя малесенька кухня з електроплитою на 2 конфорки, ніж спільна кухня і дві газові плити на 20 сімей, краще тісненька спальня з ліжком, ніж велика кімната з розкладним диваном).
- максимальна щільність забудови (ТАК і НІ! З досвіду Європи і СРСР середини ХХ - го століття випливає, що висотне житло не вважається правильним шляхом розвитку через невідповідність до людського масштабу. А от досвід останніх десятиліть Західної Європи говорить про те, що малоповерхове житло варто будувати щільніше).
- висотність (НІ, будинки висотою 2 - 3 поверхи значно швидше і дешевше будуються, ніж 9 поверхів, просто потрібна територія, крім того низька поверховість формує більш сприятливе для розвитку середовище)
В результаті неправильних пріоритетів – отримуємо неякісне житлове середовище із сумнівним майбутнім.
USSR EXPERIENCE / ДОСВІД СРСР
For more than half a century we have been living in the so-called "Khrushchevs", "Panels", "Little Families", and for at least another half a century in the future they will serve as our homes. This is one of the most famous examples of post-war housing policy in the Soviet Union. The following shortcomings can be briefly deduced:
- similar buildings (throughout the USSR);
- the same type of planning of entire areas, where only relief conditions were taken into account for the most part;
- lack of differentiation of spaces (private / semi-private / semi-public / public);
- functional uniformity, lack of service facilities, daily migration to and from work;
- too large spaces between houses (so-called "yards"), which belong to everyone and at the same time to no one, which leads to their neglect;
- there is no landscaping, and almost nothing has been resolved over time.
- there is no increase in the level of motorization, and accordingly only passes without parking spaces are made;
- apartment planning, which does not allow for quality integration into larger apartments;
- lack of self-government and responsibility of residents for their yards, apartments led to complete anarchy in the treatment of facades and adjacent territory.
Due to the colossal uniformity of the building, residents do not have a sense of belonging, pride or responsibility for their homes and the spaces around them. And from this follow all the further negative consequences in which we live to this day.
-----------------------------------------------------------------------------------------------------------------------------------------------------------------------
Уже більш як півстоліття ми живемо у так званих “Хрущовках”, “Панельках”, “Малосімейках”, і ще як мінімум півстоліття у майбутньому вони служитимуть нам домівками. Це один із найвідоміших прикладів повоєнної житлової політики Радянського союзу. Можна коротко вивести такі недоліки:
- однотипні будівлі (у всьому СРСР);
- однотипне розпланування цілих районів, де в розрахунок приймали здебільшого лише умови рельєфу;
- відсутність диференціації просторів (приватне / напів приватне / напів публічне / публічне);
- функціональна одноманітність, відсутність закладів обслуговування, щоденна міграція до місць роботи і назад;
- занадто великі міжбудинкові простори (так звані "двори"), які належать всім і одночасно нікому, що призводить до їх занедбаності;
- відсутній благоустрій територій, і з часом майже нічого не вирішилось;
- не закладено підвищення рівня автомобілізації, а відповідно виконані лише проїзди без місць для паркування;
- планування квартир, яке не дає можливості якісного об’єднання у більші квартири;
- відсутність самоуправління і відповідальності мешканців за свої двори, помешкання призвели до повної анархії у поводженні із фасадами і прибудинкової території.
Через колосальну однотипність забудови у мешканців відсутнє відчуття приналежності, гордості чи відповідальності за свої будинки і простори біля них. А з цього слідують усі подальші негативні наслідки, в яких ми живемо до сьогодні.
CONCEPT / КОНЦЕПЦІЯ ЗАБУДОВИ
ТЕХНІКО-ЕКОНОМІЧНІ ПОКАЗНИКИ:
Site (Площа ділянки) - 11.96 hectares(га)
Building area (Площа забудови) - 26 438 sqm (м кв)
Residential building area (Площа забудови житловими будинками) - 25 533 sqm (м кв.)
Parking (Кількість паркомісць) - 713
Kindergarten (Дитячий садок) - 85 kids (дітей)
Flats (Кількість квартир) - 1152
- (in houses) в тому числі у секційному - 1032 flats (квартири)
- (in row houses) в блокованому - 120 flats (квартир)
Residents (Кількість мешканців) - 3 000 (мешканців)
Flats area (Площа квартир) - 49 790 sqm (м кв.)
Public rooms (Площа громадських приміщень) - 2 360 sqm (м кв.)
The selected area is located near the part of the city in which the production facilities of enterprises are concentrated.
The plot is free. From the south it borders with the green coastal zone along the river south of the Bug, and from the north - with manor buildings.
We are guided by the principles of modern quality living environment and therefore lay the following basic principles in district planning:
-----------------------------------------------------------------------------------------------------------------------------------------------------------------------
Обрана територія знаходиться поруч із частиною міста в якій зосереджені виробничі споруди підприємств.
Ділянка вільна. З Півдня межує із зеленою прибережною зоною вздовж річки пд Буг, а з Півночі - із садибною забудовою.
Керуємося принципами сучасного якісного житлового середовища і тому закладаємо такі основні принципи в плануванні району:
PUBLIC - SEMI PUBLIC - SEMI PRIVAT - PRIVAT
Spaces must be differentiated. After all, in mass housing in Soviet times, this aspect was omitted and now we feel the shortcomings of this. Be sure to highlight the following spaces: public spaces - squares, parks, streets, alleys, sports grounds, playgrounds - open spaces for all; semi-public - parking between houses, approaches to the main entrances - spaces that anyone can visit, but with a moderate sense of comfort and permissiveness; semi-private - residential yards - spaces exclusively for the residents of the house and their guests; private - courtyards - spaces exclusively for their owners.
This is a very important principle, which in Ukraine, unfortunately, is mostly avoided to this day. It is worth starting to change this trend.
-----------------------------------------------------------------------------------------------------------------------------------------------------------------------
Простори повинні бути диференційовані. Адже в масовому житлі радянського часу цей аспект було опущено і зараз ми відчуваємо недоліки цього. Обов’язково потрібно виділяти такі простори: громадські простори - сквери, парки, вулиці, алеї, спортивні майданчики, дитячі майданчики - відкриті для всіх простори; напівгромадські - парковки між будинками, підходи до головних входів - простори, які може відвідати будь-хто, але з помірним відчуттям комфорту і дозволеності; напів приватні - житлові двори - простори виключно для мешканців будинку і їхніх гостей; приватні - приквартирні дворики - простори виключно для їх власників.
Це дуже важливий принцип, якого в Україні, на жаль, здебільшого уникають і до сьогодні. Варто починати міняти цю тенденцію.
FLOORPLANS / ПЛАНУВАННЯ
The house should have two entrances - one on the side of the street, the other - on the side of the yard. The through passage is an integral part of the differentiation of spaces. Without this, in fact, there is no point in the concept of "yard without cars", because there is no connection between apartments and courtyards.
As a result of the formation of the through passage, the plan of the first floor differs from the typical floor. There are more two - bedroom apartments. It also makes sense because the apartments of the first floor have courtyards and it is logical that these apartments are more spacious (50 - 56 sq.m).
A typical floor consists of very compact one - bedroom apartments (33 - 35 sq.m) and two - bedroom apartments (50 sq.m).
The concept of "number of bedrooms, not rooms" is increasingly appearing in commercial housing. This means the importance not of the number of rooms, but the number of bedrooms, because this is what determines the level of comfort of living. It is better to have a large kitchen with a sofa and TV (living area) and a small bedroom (lounge) than a cramped kitchen and a multifunctional "common room" - which has a sofa that must be unfolded every night and folded every morning.
This concept considers the option of heating from local district boilers with apartment - by - apartment metering, as well as the use of electric stoves in kitchens. This allows the current regulations to meet the standards for such compact apartments. Despite the illusory advantage of individual apartment heating, it must be understood that hundreds of thousands of boilers in hundreds of thousands of homes are a great danger, so the state must change its priorities.
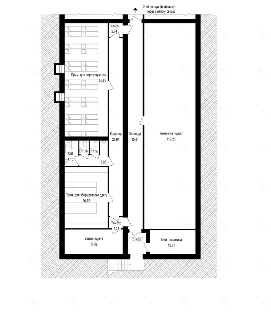
Basements should be equipped as a full - fledged shelter from artillery and air strikes, as well as radiation safety - with toilets, two scattered exits, vestibule locks and a ventilation chamber.
-------------------------------------------------------------------------------------------------------------------------------------------------------------------------
У будинку повинно бути два входи - один зі сторони вулиці, інший - зі сторони подвір’я. Наскрізний прохід є невід’ємною частиною диференціації просторів. Без цього, по суті, немає сенсу у концепції "двір без машин", тому що немає зв’язку між квартирами і подвір’ям.
В результаті утворення наскрізного проходу план першого поверху відрізняється від типового поверху. Тут більше квартир на дві спальні. Це має сенс також і тому, що помешкання першого поерху мають приквартирні дворики і логічно, що ці квартири просторіші (50 - 56 кв.м).
Типовий поверх складається із дуже компактних квартир на одну спальню (33-35 кв.м) і на дві спальні (50 кв.м).
Концепція "кількості спалень, а не кімнат" все частіше з’являється у комерційних житлових об’єктах. Це означає важливість не кількості кімнат, а кількості спалень, адже саме це визначає рівень комфорту житла. Краще мати укрупену кухню з диваном і телевізором (денна зона) і маленьку спальню (відпочинок), аніж тісну кухню і багатофункціональну "загальну кімнату" - в якій стоїть диван, який треба щовечора розкладати на ніч і щоранку складати назад.
В даній концепції розглянуто варіант влаштування опалення від локальних квартальних котелень з поквартирним обліком, а також застосування електроплит у кухнях. Це дозволяє при актуальній нормативній документації виконати норми для настільки компактних квартир. Попри примарну перевагу індивідуального поквартирного опалення потрібно розуміти, що сотні тисяч котлів у сотнях тисяч помешкань становлять велику небезпеку, тому держава повинна змінювати свої пріоритети.
Підвальні приміщення необхідно облаштувати як повноцінне сховище від артилерійських та авіаударів, а також радіаційної безпеки - з туалетами, двома роззосередженими виходами, тамбур-шлюзами і вентиляційною камерою.
THE FUTURE / МАЙБУТНЄ
Experience shows that small apartments need to be expanded over time. And this is possible by combining several apartments into one more spacious apartment. The plans below show an example of the implementation of the principles of flexibility.
Flexibility also applies to the possibility of converting ground floor apartments into public facilities. To do this, the level of the first floor on the side of the street should be as close as possible to the level of the sidewalk to avoid the appearance of terribly large stairs and porches in the future.
Досвід показує, що маленькі квартири з часом потребують розширення. І це можливо за рахунок об’єднання кількох квартир у одне просторіше помешкання. На планах нижче наведено зразок реалізації принципів гнучкості.
Також гнучкість стосується і можливості перетворення квартир перших поверхів у заклади громадського призначення. Для цього рівень першого поверху зі сторони вулиці повинен бути якомога ближчим до рівня тротуару, щоб уникати появу у майбутньому жахливо великих сходів і ґанків.
До і після об’єднання квартир
CONSTRUCTION / КОНСТРУКЦІЇ
This concept is designed for the Podolsk region, which has a well-developed construction of prefabricated elements. To do this, there are many brick factories and factories of reinforced concrete products in the region. The vast majority of the capacity of local construction companies is focused on this type of construction. From 2015 to 2018, Khmelnytsky was among the top 5 cities in Ukraine in terms of the number of housing constructed. In the city of Khmelnytsky in 2016, 495 thousand square meters were commissioned. housing, and 80 - 90% of houses were built according to this constructive scheme.
Construction is almost independent of the season and weather conditions, and it guarantees a unique speed of construction of such buildings (designer).
The exception is the basement floor covering - they must be made of monolithic reinforced concrete to meet the necessary regulatory requirements for stability.
Дана концепція розроблена для Подільського регіону, в якому чудово розвинене будівництво зі збірних елементів. Для цього в регіоні функціонує багато цегляних заводів і заводів залізобетонних виробів. Переважна більшість потужностей місцевих будівельних компаній сконцентрована саме на цьому типі будівництва. З 2015 - го по 2018 - й рік Хмельницький входив у топ 5 міст в Україні за кількістю збудованого житла. В місті Хмельницький в 2016 році в експлуатацію було введено 495 тис. м кв. житла, і 80 - 90% будинків були споруджені саме за такою конструктивною схемою.
Будівництво майже не залежить від пори року і погодних умов, а також це гарантує унікальну швидкість зведення таких будинків (конструктор).
Вийняток складає перекриття підвального поверху - вони повинно виконуватись із монолітного залізобетону, щоб виконувати необхідні нормативні вимоги до стійкості.
RESULT / РЕЗУЛЬТАТ
For many, the effectiveness in the construction of mass housing - is clearly mass, speed, cheapness. That’s right. But an integral part of any housing (including mass) should be the principle of ensuring decent living and full development of future generations who grow up in these homes. Homes.
-------------------------------------------------------------------------------------------------------------------------------------------------------------------------
Для багатьох результативність у питанні будівництва масового житла - це однозначно масовість, швидкість, дешевизна. Так і є. Але невід’ємною складовою будь-якого житла (в тому числі і масового) повинен бути принцип забезпечення гідного проживання мешканців і повноцінного розвитку майбутніх поколінь, які зростають у цих помешканнях. Домівках.
AFTERWORD/ ПІСЛЯСЛОВО
DOMIVKA - the concept developed on the initiative and at the expense of the RDAG team so that any community in Ukraine has a roadmap for fundamentally important spatial planning decisions for the design and construction of capital mass (social, affordable) housing.
This concept is not a panacea and is not a universal solution. Like any concept, it has shortcomings, but its purpose is not to develop an ideal solution, but to articulate and explain the basic principles of this type of housing.
-------------------------------------------------------------------------------------------------------------------------------------------------------------------------
DOMIVKA - концепт розроблений за власною ініціативою і власним коштом команди RDAG для того, щоб будь-яка громада України мала дорожню карту по принципово важливих просторово-планувальних рішеннях для проектування і будівництва капітального масового (соціального, доступного) житла.
Цей концепт не є панацеєю і не є універсальним рішенням. Як і будь-який концепт він має недоліки, але його мета не розробити ідеальне рішення, а озвучити і пояснити базові принципи формування даного типу помешкання.
Team /Команда
RDAG
客服
消息
收藏
下载
最近























