查看完整案例

收藏

下载

翻译
Apartment Project in a Historical Building, Kyiv
This apartment is located in a historical building in the heart of Kyiv. The clients wanted to create a modern, functional space with clear zoning while preserving the character and charm of the original architecture.
Client’s Key Requests:
- A spacious open-plan kitchen and living area, partially separated from the bathrooms.
- Separate toilet and shower rooms.
- A bedroom with a dedicated workspace.
- A functional use of the existing enclosed balcony.
- A future children's room, which will initially serve as a second home office.
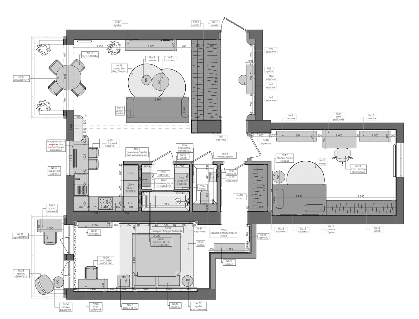
Layout: Before & After
The project includes a comparison of the original layout and the redesigned plan. The main goal was to open up the space, maximize natural light, and organize functional zones logically.
Key Design Solutions:
- Kitchen-Living Room: An open, airy area with plenty of natural light. A partition near the bathroom area helps maintain privacy while visually separating utility spaces.
- Toilet and Shower Room: Separated into two independent rooms for added convenience.
- Bedroom: Combines a sleeping area with a comfortable home office zone.
- Balcony: Transformed into a cozy multifunctional space, perfect for reading, enjoying a cup of coffee, or using the integrated vanity table — an ideal spot for morning routines and organizing accessories.
- Children’s Room / Second Office: A flexible space that will initially function as a second home office, with the potential to be converted into a child’s room in the future.
Usually, I tend to stay more reserved when working on client projects — experience has shown that most clients prefer calm, neutral designs without too much boldness or color.
But this time, something was different. The apartment itself seemed to guide me toward a more expressive and creative direction. As I worked through the concept, I realized I had gone further than usual with the design — more emotion, more character, more experimentation.
At some point, I even caught myself thinking: "Is this really what the client wanted?"
To my surprise — and relief — the clients loved it. Everything was approved as presented, and that unexpected creative freedom turned into a shared satisfaction with the final result.
客服
消息
收藏
下载
最近






















































