查看完整案例


收藏

下载
私人全案定制
PRIVATE CUSTOMIZATION
旧韵新生
项目信息
ABOUT THE PROJECT
项⽬名称 |中海天玺
设计公司 | 赣州.大墨空间全案中心
项⽬地点 | 江西·赣州
项⽬⾯积 | 345㎡
主案设计 | 大墨全案中心设计团队/胡庆波
文稿来源 | 公司原创
设计时间 | 2024年3月
完⼯时间 | 2025年5月
项目施工|赣州大墨装饰工程有限公司
项目监理 | 黄火发
主要材料 | 艺术漆、岩板、艺术玻璃、奢石
施工工艺 | 薄贴、密拼、印花、倒角、无边框
功能设备 | 新风、全屋智能
软装品牌 | ——
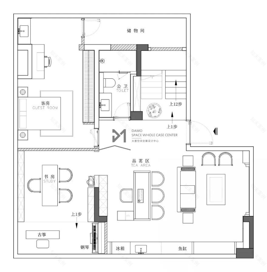
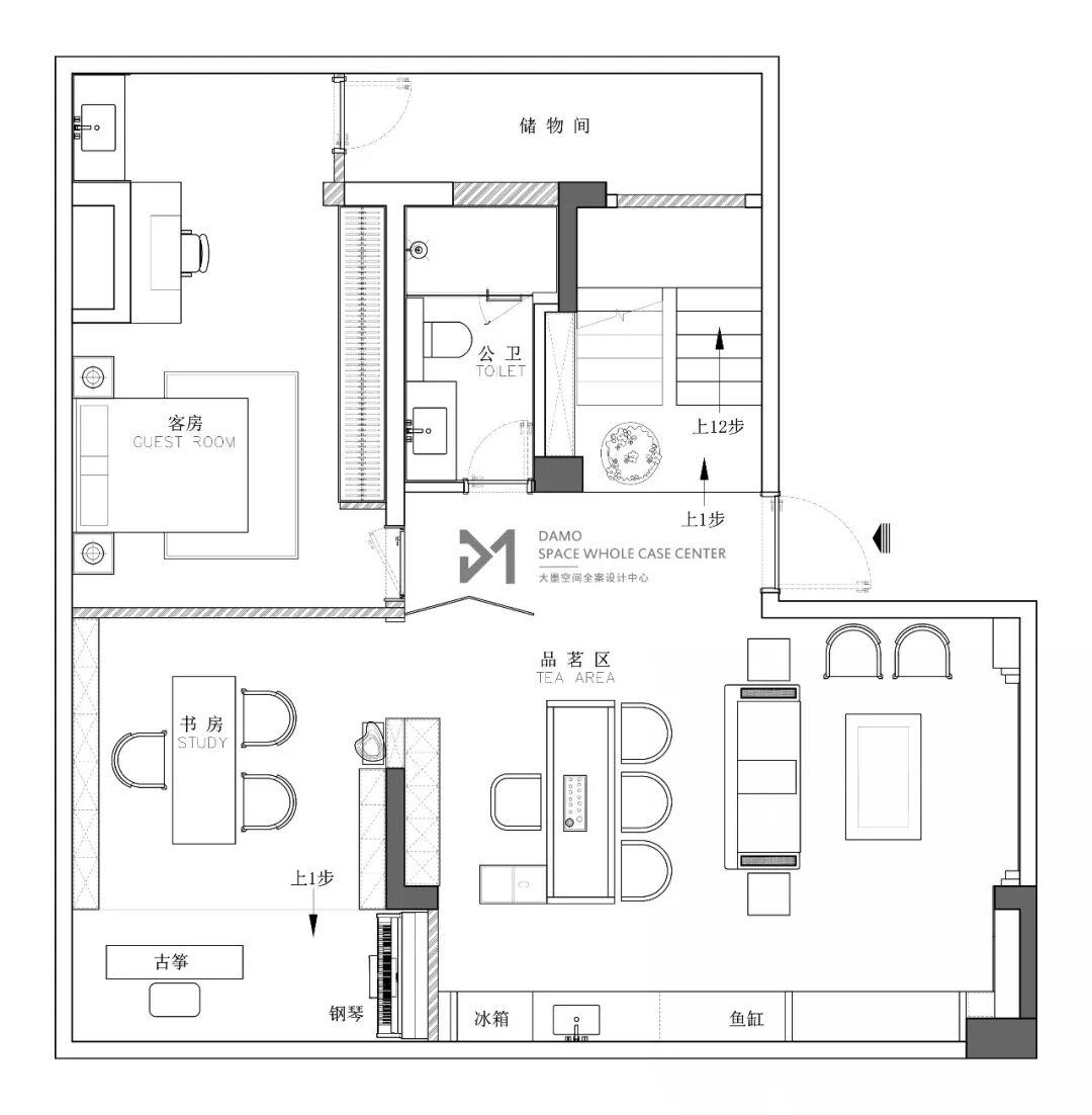
01玄关承礼,刚柔织笺
推开门的那口气,先被这方玄关优雅气韵接住。暖棕胡桃木缠上以天然岩石纹理为蓝本的瓷砖,将刚与柔揉成归家的第一帧体面。印花玻璃藏着的小心思,在织纹肌理中,把“雅致”二字映入每一次推门的瞬间。
02宾至如归, 其乐融融
设计师将不同材质的元素进行搭配,细节到每一片材料的花纹雕刻,不同材质的相互辉映营造出一种独特的和谐氛围,岩板的质感赋予空间稳重感和品质感,而木饰面则为其增添了一份自然的生机与温暖
video
一段实景落地视频是给业主最好的礼物,也是一个团队的实力展现
03茶境寻幽,隔而不孤
这里是他们的音乐天地,也是翻阅艺术书籍的角落,也是亲友小聚畅谈的场所。玻璃隔断让翻书的动静与客厅的笑闹相互映衬,“分而不隔”的松弛感,让两代人的爱好、亲友间的闲谈,都能在此和谐共生。
video 04
私域藏柔,晨昏皆安
床头背景是点睛之笔,采用了带有几何线条肌理的浅灰色硬包,菱形格纹的压纹设计自带秩序感,低调地呼应了中式的对称美学,又不会显得沉闷。
设计师采用“轻法式”+“轻中式“的混搭思路,让安静的空间自带优雅、宁静和温柔;而胡桃木的温润、布艺的柔和、金属的精致、硬包的肌理感,多种材质的碰撞,让整个空间层次饱满又不杂乱。
05书乐共生,合而不扰
结合现场封闭式环境,设计师巧妙的采用透光屏风,光影交错间,使这样一个安静的空间变得灵动、别有洞天的感觉;设计赋予了空间灵魂。把“琴、茶、书”的文人雅趣藏进了空间里,让这里不只是一个功能性的房间,更是可以静心养性的精神角落
▼ Bathroom | 卫生间
延伸阅读
For More Reading
新力渧泊湾 顶层复式 220M²【港式轻奢】
滨江一号 顶复大宅 380M²【现代极简】
江山里 洋房 215M²【别样轻奢】
首套. 跨省全案项目 400m² 现代新中式 私宅
正荣悦玺 大平层 220M²【现代简约】/大 墨 出 品/
公司介绍
Company Profile
大墨空间全案中心,全称赣州大墨装饰工程有限公司,于2013年在赣州成立,专业打造高端住宅、办公环境、商业空间等设计及施工。多年来,公司致力于研究剖析行业现状和客户痛点,在赣州率先倡导全案理念和服务,全方位为客户解决设计难、选材难、价格控制难、施工落地难等痛点。公司秉承着”不走量”原则,专注于为少数人群服务的精致化路线,以确保满足客户高标准的个性化需求。
主案设计师-胡庆波
联系本文作者
发现更多实景案例
ADD:江西省赣州市经开区汉泰·上上城A1—20店铺三楼大墨空间全案中心
TEL:15870708580
图片版权所有
客服
消息
收藏
下载
最近























