查看完整案例

收藏

下载
▲ 东南街角视角
▲ 东侧街道视角
2000年以来,北京公交枢纽逐步走向功能复合化。一方面与轨道交通无缝衔接,另一方面融入商业、酒店、办公等多元业态,在提升土地利用效率的同时,平衡基础设施投资。自2017年起,中国建筑设计研究院与北京市公联公司合作,在北京城市副中心先后设计实施了东夏园、环球影城北、通马路三个综合交通枢纽,探索枢纽与城市的深度融合。
▲ 中国院在北京副中心的部分综合交通枢纽实践项目
环球影城北综合交通枢纽
因紧邻环球度假区北门而得名,与地铁7号线群芳站无缝接驳。凭借这一区位优势,项目引入一座拥有300余间客房的五星级酒店(洲际皇冠假日),以补充环球影城周边的住宿资源。
▲ 街区总平面
▲ 西北鸟瞰视角,远处为环球影城
▲ 东北街角 柴培根 / 摄
▲ 东南街角
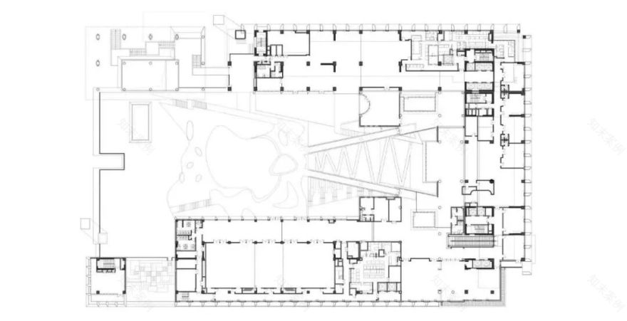
盖的转化:重构功能界面
公交场站对地面层的依赖,使得复合功能通常在垂直方向重构,“盖”因此成为枢纽功能叠合的必然产物——它既是空间要素,也是功能界面。尽管交通功能在2.2万平方米的方正用地中占比有限,但平铺的场站仍需占据较大基底。设计首先在平面层面最大化公共界面:西侧最低等级道路设置公交出入口;南北两侧适度压缩车场,植入商业及供电服务设施;西北角设置与地铁连接的垂直换乘厅。
▲ 枢纽模式演变分析
▲ 体量布局与生成
▲ 开放空间分析
▲ 东西向剖面
▲ 南北向剖面
▲ 设计草图 柴培根 / 绘
在东侧,面对车场与五星酒店入口区的关系,设计通过“盖”的水平扭转形成坡地,在两个核心功能之间构建弹性界面。从剖面看,这种微调重塑了一个承载公共空间的底盘:酒店主体位于盖上,盖的西端微微抬起,容纳枢纽办公功能。
▲ 酒店落客区
▲ 底层架空开放空间
▲ 东南角绿化台地
▲ 通向上盖花园的路径
▲首层平面图
▲ 三层平面图
▲ 剖面图
无界共享:立体花园的营造
上盖空间被定义为绿色花园,既满足五星酒店的环境需求,也在周边尚未成型的街区中提供内向完整的绿洲。它同时是与街道衔接、与街区实现无界共享的开放立体花园。
▲ 上盖花园俯瞰
▲ 上盖花园
上盖与地面的衔接方式因方位和功能而异:东侧,花园沿坡地竹林倾泻而下,延续至酒店入口区,建筑架空处理使花园在多个方向连接城市界面;西南角以堆叠绿台建立路径,结合角部商业引导人流上行;西北角则以半室外棚架空间串联地铁换乘、公交候车、枢纽展厅与上盖花园,一组橙红色楼梯强化了这条路径。
▲ 衔接酒店入口区的竹林坡地
▲ 穿越竹林的云桥
▲ 南侧沿街商业界面
▲ 西南角通向上盖花园的台地景观
化整为零:绿色换乘空间
西北角枢纽换乘厅以15米高的棚架覆盖灰空间,强化枢纽辨识度。更重要的是,这一灰空间改变了传统枢纽高大封闭的换乘厅模式。考虑到公交出行人群无需高铁那般长时间候车,封闭大厅往往能耗高而使用率低。从东夏园枢纽开始,我们便尝试化整为零,仅用小型多功能房提供空调环境,将自然要素引入换乘空间,甚至与车场形成通风廊道,构建匹配公交人流特征、贯彻绿色理念的换乘模式。
▲ 枢纽换乘空间
▲ 西侧公交车进出界面
▲被枢纽厅覆盖、连接上盖花园的彩色楼梯
▲ 枢纽换乘空间
酒店专属要素
45米高的L型客房楼以简洁体量呼应城市街角,通过材料和色彩呈现朝向城市与花园的内外不同表情。生长于枢纽之上的皇冠假日酒店拥有专属空间要素:围绕上盖花园组织公共层,设置室外就餐区、婚礼草坪和儿童活动区;悬浮的大堂吧以竹林为底景;两个庭院嵌入大进深公共层,引入光线、提升环境。两座云桥连接大堂与花园,也将成为婚礼路径的独特体验。顶层差异化处理:东侧设露台酒吧俯瞰环球影城,行政酒廊点亮街角,北翼布置带户内花园的套房。
▲ 酒店3层公共区的庭院
▲ 室外就餐区
▲ 连接酒店公共区与花园的云桥
▲ 室内外交融的酒店公区
▲ 可远眺环球影城的酒店屋顶露台
材料追随尺度
立面材料以工业化幕墙体系为基础,但逻辑从城市与人尺度出发。客房部分外侧采用大尺度GRC窗套,匹配单元化特征,表面细腻压纹;内侧朝花园选用天然竹木板,FRP圆管作为攀爬构件。顶层套房采用小尺寸陶板与陶砖组合,围合院落尺度。南侧商业界面用金属网叠加涂料,便于未来商铺置入标识。酒店入口区采用波纹板吊顶,利用光线提亮架空空间,从外到内反射率渐高。
▲东/北立面GRC幕墙
▲GRC幕墙构造分析
▲ 南立面铝拉网幕墙
▲铝拉网立面构造分析
▲材料组合片段
▲朝向花园的酒店立面
场景共生
环北枢纽以集约复合模式自然生发出多样场景,背后是对绿色、开放城市环境的追求,这也是高质量发展背景下公共建筑设计创新的重要方向。在功能类型驱动下,枢纽以叠合聚落姿态生长完成。城市进程放缓,左邻右舍仍在孕育,我们期待这座建筑所构建的无界共享的友好态势,能在未来得到积极响应。
▲北侧街道视角
▲连通城市的公共空间与上盖花园
柴培根 / 摄
▲连通城市的公共空间
项目地点:北京市通州区
竣工时间:2025年
业主:北京公联鼎成交通枢纽建设发展有限公司
建筑面积:84660㎡(地上47390㎡,地下37270㎡;其中,枢纽交通设施12140㎡,酒店、商业70420㎡,供电所2100㎡)
设计主持:柴培根 周凯 童英姿
建筑专业:李颖 任重 张宏宇 赵毅 叶佳昶 王庆雷 林红
结构专业:范重 王义华 刘学林 谢鹏 刘家名
给排水专业:车爱晶 李伟 安韬 曹为壮
暖通专业:雷博 刘维
电气专业:高洁
智能化专业:霍丹阳
总图专业:刘晓琳
经济专业:丁雨
项目管理:李佳玲 屠欣
室内设计:香港郑中设计事务所(CCD),北京清尚建筑装饰工程有限公司
景观设计:易兰(北京)规划设计股份有限公司
照明顾问:北京西南建业工程设计有限公司
幕墙顾问:北京鸿屹丰彩装饰工程有限公司
机电顾问:柏坚联创工程顾问(北京)有限公司
施工单位:北京建工集团有限责任公司
建筑摄影:李季
中国院2026年度经济工作会圆满召开
“好房子”设计大赛一等奖获得者吕强:用“芯”建造诗意居所
中国院举办2025年度获奖优秀方案设计交流会(第一场)
客服
消息
收藏
下载
最近

















































